Ab 2016 umfangreich saniert, bietet diese Haus auf insgesamt drei Ebenen modernen Wohnkomfort.
So umfasst das Erdgeschoss eine ca. 90 qm große 3 Zimmer-Wohnung mit direktem Zugang zum Garten
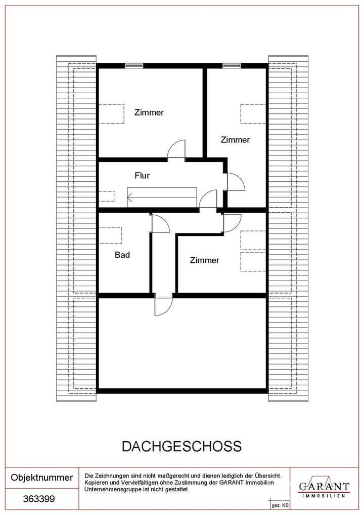
Die Obergeschoss-Wohnung wurde überwiegend in Eigenleistung zu einer Maisonette von annähernd ca. 130 qm ausgebaut und ist über eine separate Außentreppe erreichbar. Hier muss noch das ein oder andere fertiggestellt werden.
Dabei wurden im gesamten Haus u.a. erneuert:
Stromleitungen
Wasserleitungen
Heizungsrohre
Pellettheizung, ausgelagert
Dacheindeckung und isolierung
Fenster
Außenrolllos
Ein besonderes Bonbon ist eine kleine Einlieger-Wohnung mit großer Terrasse, die auch sehr gut als Außenbüro genutzt werden kann.
Die direkt ans Wohnhaus anschließende Scheune ist in einem sehr guten Zustand und wird u.a. anteilig als Garage genutzt.
Der Garten ist weitläufig und unverbaubar.
Zweifamilienhaus mit großem Garten und Scheune in zentraler Lage
72145 Hirrlingen
Die vollständige Adresse der Immobilie erhalten Sie vom Anbieter.
Auf Karte anzeigen
Die vollständige Adresse der Immobilie erhalten Sie vom Anbieter.
Finanzierungszertifikat
In nur zwei Minuten zu Ihrem persönlichen Finanzierungszertifkat.
Infos
| Haustyp | Mehrfamilienhaus |
|---|---|
| Etagenzahl | 3 |
| Wohnfläche ca. | 220 m2 |
| Grundstücksfläche | 711 m2 |
| Bezugsfrei ab | sofort |
| Zimmer | 10 |
| Badezimmer | 3 |
| Garage/Stellplatz | Garage |
| Anzahl Garage/Stellplatz | 2 |
Kosten
| Kaufpreis |
448.000 € |
|---|---|
| Provision |
4,76 % inkl. ges. MwSt. Die Maklercourtage für den Käufer beträgt 4 % aus dem Kaufpreis zuzüglich der gesetzlichen MwSt., somit gesamt 4,76 %. |
Finanzierungsrechner:
Kaufpreis:
600.000 €
Eigenkapital:
600.000 €
Monatliche Rate
0 €
Effektiver Jahreszins
0 %
Sollzinsbindung
10 Jahre
Bausubstanz & Energieausweis
| Baujahr | 1905 |
|---|---|
| Letzte Sanierung | 2022 |
| Bauphase | Haus fertig gestellt |
| Objektzustand | Gepflegt |
| Qualität der Austattung | Normal |
| Heizungsart | Zentralheizung |
| Wesentliche Energieträger | Pelletheizung |
| Energieausweis | liegt vor |
| Energieausweistyp | Verbrauchsausweis |
| Energieverbrauchskennwert | 101,9 kWh/(m²*a) |
| Energieeffizienzklasse | D |
101,9
kWh/(m²*a)
Energieeffizienzklasse D
- A+
- A
- B
- C
- D
- E
- F
- G
- H
- 0
- 25
- 50
- 75
- 100
- 125
- 150
- 175
- 200
- 225
- >250
Beschreibung des Objekts
Ausstattung
EG: 3 Zimmer-Wohnung
OG/DG: 6 Zimmer-Wohnung
Seitentrakt: kleine Einliegerwohnung von ca. 28 qm mit Küche und Bad
Lage
Das Haus befindet sich zentral gelegen in Hirrlingen, am Rande des Landschaftsschutzgebiets Rammert.
Die Infrastruktur ist gut, ein Kindergarten und Grundschule sind vor Ort. Weiterführende Schulen gibt es im nahegelegen Rottenburg.
Die Verkehrsanbindung über die B27 und B28 Richtung Rottenburg/Tübingen/Reutlingen sowie Hechingen/Balingen/Albstadt ist hervorragend ebenso wie die Anbindung an die A81 Richtung Stuttgart.
Es besteht eine Busverbindung nach Rottenburg und Tübingen.
Sonstige Angaben
Energieverbrauchsausweis Energiekennwert: 101,90 kWh/(qm*a) Energieeffizienz: Klasse D (kl.130) Heizung: Zentralheizung mit Pellets Baujahr laut Energieausweis: 1905
* zentrale Lage
* große Scheune
* unverbaubarer, weitläufiger Garten
* solider Gartenschuppen
* zwei Garagen
* Außenstellplätze
Grundriss
Untergeschoss
>
>
Erdgeschoss
>
>
Obergeschoss
>
>
Dachgeschoss
>
>
Dachspitz
>
>
Adresse
72145 Hirrlingen
Interessante Orte
Preis- und Lageinformationen
Preistrend für Bestandsimmobilien in Hirrlingen