Diese Immobilie wird Ihnen präsentiert von:
Alexander Klimitz & Laura Stolke
Shop: 05241 - 211 99 90
Zentrumsnahes Zweifamilienhaus mit schönem Garten und Außenpool
Im Jahr 1955 wurde das Haus als Einfamilienhaus gebaut. Zu einem Zweifamilienhaus wurde es erst durch den Umbau 1980.
Im Jahre 1955/1980 wurde dieses Haus auf einem ca. 781 m² großen Grundstück in ruhiger Wohnlage erbaut. Es erfolgte 1980 ein Anbau zur Erweiterung der Wohnfläche. Ebenso wurden in diesem Jahr die Doppelgarage inkl. Unterkellerung der Garage und der Pool im Garten erstellt.
Insgesamt verfügt die Immobilie über ca. 193 m² Wohnfläche, die sich grundrissgleich auf das Erd- und Obergeschoss verteilt. Ausbaupotenzial findet sich im Dachgeschoss.
Das Erdgeschoss teilt sich auf in:
Wohn-Esszimmer mit Durchgang zur Küche, 1 Elternschlafzimmer, 1 Kinderzimmer und ein großes Tageslichtbad mit Dusche, Badewanne und WC, die Küche mit Zugang zu dem Außenbereich mit Terrasse und Pool.
**Das Erdgeschoss ist frei und kann von den neuen Eigentümern bezogen werden.
Das Obergeschoss, von der Grundfläche gleich, wird etwas anders genutzt.
Hier gibt es keinen Durchbruch, sondern ein zweites Kinderzimmer und statt der Terrasse finden Sie hier außerdem zwei Balkone und ist aktuell vermietet.
Der Garten ist pflegeleicht angelegt und mit dem beheizbaren Pool bestückt.
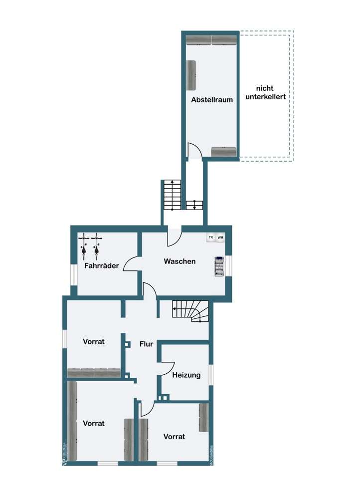
Die Liegenschaft verfügt über ein großes Kellergeschoss mit vielen Räumen und einer zusätzlichen Abstellfläche.
Abgerundet wird das Angebot mit der Doppelgarage (vermietet) und Freiplätzen in der Einfahrt.
Haben wir Sie neugierig gemacht? Dann freuen wir uns darauf, Sie kennenzulernen.
Anfragen können nur mit vollständigen Kontaktdaten und der Telefonnummer bearbeitet werden.
Bitte haben Sie Verständnis dafür, dass eine Besichtigung nur mit einer Finanzierungsbestätigung stattfinden kann. Sollten Sie in diesem Punkt noch Unterstützung brauchen, stellen wir gerne Kontakt zu unseren Kollegen der VON POLL FINANCE her.
Zentrumsnahes Zweifamilienhaus mit schönem Garten und Außenpool
33332 Gütersloh
Die vollständige Adresse der Immobilie erhalten Sie vom Anbieter.
Auf Karte anzeigen
Die vollständige Adresse der Immobilie erhalten Sie vom Anbieter.
Finanzierungszertifikat
In nur zwei Minuten zu Ihrem persönlichen Finanzierungszertifkat.
Infos
| Haustyp | Mehrfamilienhaus |
|---|---|
| Etagenzahl | 4 |
| Wohnfläche ca. | 193 m2 |
| Grundstücksfläche | 781 m2 |
| Zimmer | 8 |
| Schlafzimmer | 5 |
| Badezimmer | 2 |
| Garage/Stellplatz | Carport |
| Anzahl Garage/Stellplatz | 1 |
Kosten
| Kaufpreis |
470.000 € |
|---|---|
| Provision |
Käuferprovision beträgt 3,57 % (inkl. MwSt.) des beurkundeten Kaufpreises |
Finanzierungsrechner:
Kaufpreis:
600.000 €
Eigenkapital:
600.000 €
Monatliche Rate
0 €
Effektiver Jahreszins
0 %
Sollzinsbindung
10 Jahre
Bausubstanz & Energieausweis
| Baujahr | 1955 |
|---|---|
| Letzte Sanierung | 2013 |
| Bauphase | Haus fertig gestellt |
| Objektzustand | Gepflegt |
| Qualität der Austattung | Normal |
| Heizungsart | Zentralheizung |
| Wesentliche Energieträger | Gas |
| Energieausweis | liegt vor |
| Energieausweistyp | Verbrauchsausweis |
| Energieverbrauchskennwert | 166,0 kWh/(m²*a) |
| Energieeffizienzklasse | F |
166,0
kWh/(m²*a)
Energieeffizienzklasse F
- A+
- A
- B
- C
- D
- E
- F
- G
- H
- 0
- 25
- 50
- 75
- 100
- 125
- 150
- 175
- 200
- 225
- >250
Beschreibung des Objekts
Ausstattung
ERDGESCHOSS
- Flurbereich
- Küche
- Wohn-Esszimmer
- Schlafzimmer
- Kinderzimmer
- Terrasse
- Garten
- Außenpool
- Doppelgarage mit Platz für Werkzeuge
OBERGESCHOSS
- Flurbereich
- Küche
- Wohnzimmer
- Schlafzimmer
- 2 Kinderzimmer
- 2 Balkone
DACHGESCHOSS
- Ausbaureserve
KELLERGESCHOSS
- 5 Kellerräume - unterschiedliche Nutzung
- 1 Heizungskeller
- weitere Abstellbereiche
Alle Angaben sind ohne Gewähr und basieren ausschließlich auf Informationen, die uns von unserem Auftraggeber zur Verfügung gestellt wurden. Wir übernehmen keine Gewähr für die Vollständigkeit, Richtigkeit und Aktualität der Angaben.
Lage
Gütersloh, ein starker Standort in Ostwestfalen.
Erleben Sie diese Stadt als attraktiven Kultur-, Bildungs-, Freizeit- und Einkaufsstandort.
Kindergärten, Grundschulen und weiterführende Schulen finden Sie ebenso wie eine rundum ärztliche Versorgung.
Die ansässigen Unternehmen stellen rund 46.000 Arbeitsplätze zur Verfügung. Insbesondere Miele, Bertelsmann und Claas sind weltweit bekannt.
Zahlreiche Freizeitaktivitäten wie Golf, Tennis, Reiten oder Wandern stehen Ihnen in der näheren Umgebung zur Verfügung. Von hier aus können Sie eindrucksvolle Ausflüge in den nahegelegenen Teutoburger Wald, in den Gartenschaupark Rietberg, in die Flora Westfalica in Rheda-Wiedenbrück, ins Theater in Gütersloh oder in die OWL Arena in Halle (Westf.) sowie an viele andere besondere Orte machen - Entschleunigung ist hier anregend leicht!
Die naheliegenden Städte der Umgebung erreichen Sie zeitnah, in ca. 30 Minuten Bielefeld und in ca. 40 Minuten Paderborn. Die Autobahnen A2 und A 33 liegen wenige Autominuten entfernt. Von hier gelangen Sie komfortabel in das Umland. Der nächstgelegene Flughafen ist der etwa 45 Kilometer von Gütersloh entfernte Flughafen Paderborn / Lippstadt.
Das Gütersloher Stadtgebiet verfügt über ein gut ausgebautes Stadtbusnetz. Der Hauptbahnhof ist mit einer guten Verbindung an den Nah- und Fernverkehr angeschlossen.
Sonstige Angaben
GELDWÄSCHE
Als Immobilienmaklerunternehmen ist die von Poll Immobilien GmbH nach § 2 Abs. 1 Nr. 14 und § 11 Abs. 1, 2 Geldwäschegesetz (GwG) dazu verpflichtet, bei der Begründung einer Geschäftsbeziehung die Identität des Vertragspartners festzustellen und zu überprüfen, bzw. sobald ein ernsthaftes Interesse an der Durchführung des Immobilienkaufvertrages besteht. Hierzu ist es erforderlich, dass wir nach § 11 Abs. 4 GwG die relevanten Daten Ihres Personalausweises festhalten (wenn Sie als natürliche Person handeln) – beispielsweise mittels einer Kopie. Bei einer juristischen Person benötigen wir eine Kopie des Handelsregisterauszugs, aus welchem der wirtschaftlich Berechtigte hervorgeht. Das Geldwäschegesetz sieht vor, dass der Makler die Kopien bzw. Unterlagen fünf Jahre aufbewahren muss. Als unser Vertragspartner haben Sie auch eine Mitwirkungspflicht nach § 11 Abs. 6 GwG.
HAFTUNG
Wir weisen darauf hin, dass die von uns weitergegebenen Objektinformationen, Unterlagen, Pläne etc. vom Verkäufer bzw. Vermieter stammen. Eine Haftung für die Richtigkeit oder Vollständigkeit der Angaben übernehmen wir daher nicht. Es obliegt daher unseren Kunden, die darin enthaltenen Objektinformationen und Angaben auf ihre Richtigkeit hin zu überprüfen. Alle Immobilienangebote sind freibleibend und vorbehaltlich Irrtümer, Zwischenverkauf- und Vermietung oder sonstiger Zwischenverwertung.
UNSER SERVICE FÜR SIE ALS EIGENTÜMER
Planen Sie den Verkauf oder die Vermietung Ihrer Immobilie, so ist es für Sie wichtig, deren Marktwert zu kennen. Lassen Sie kostenfrei und unverbindlich den aktuellen Wert Ihrer Immobilie professionell durch einen unserer Immobilienspezialisten einschätzen. Unser bundesweites und internationales Netzwerk ermöglicht es uns, Verkäufer bzw. Vermieter und Interessenten bestmöglich zusammenzuführen.
Grundriss
Kellergeschoss
>
>
Erdgeschoss
>
>
Obergeschoss
>
>
Adresse
33332 Gütersloh
Interessante Orte
Preis- und Lageinformationen
Preistrend für Bestandsimmobilien in Gütersloh