In zentraler Lage von Gießen befindet sich dieses beeindruckende, denkmalgeschützte Mehrfamilienhaus mit historischer Fassade und vielfältiger Nutzungsmöglichkeit. Die Immobilie setzt sich aus einem Vorderhaus mit einem Anbau, einem Hinterhaus und einem Garten zusammen. Separat befindet sich noch eine Garage auf einer Gesamtfläche von 937qm.
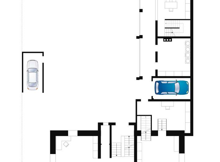
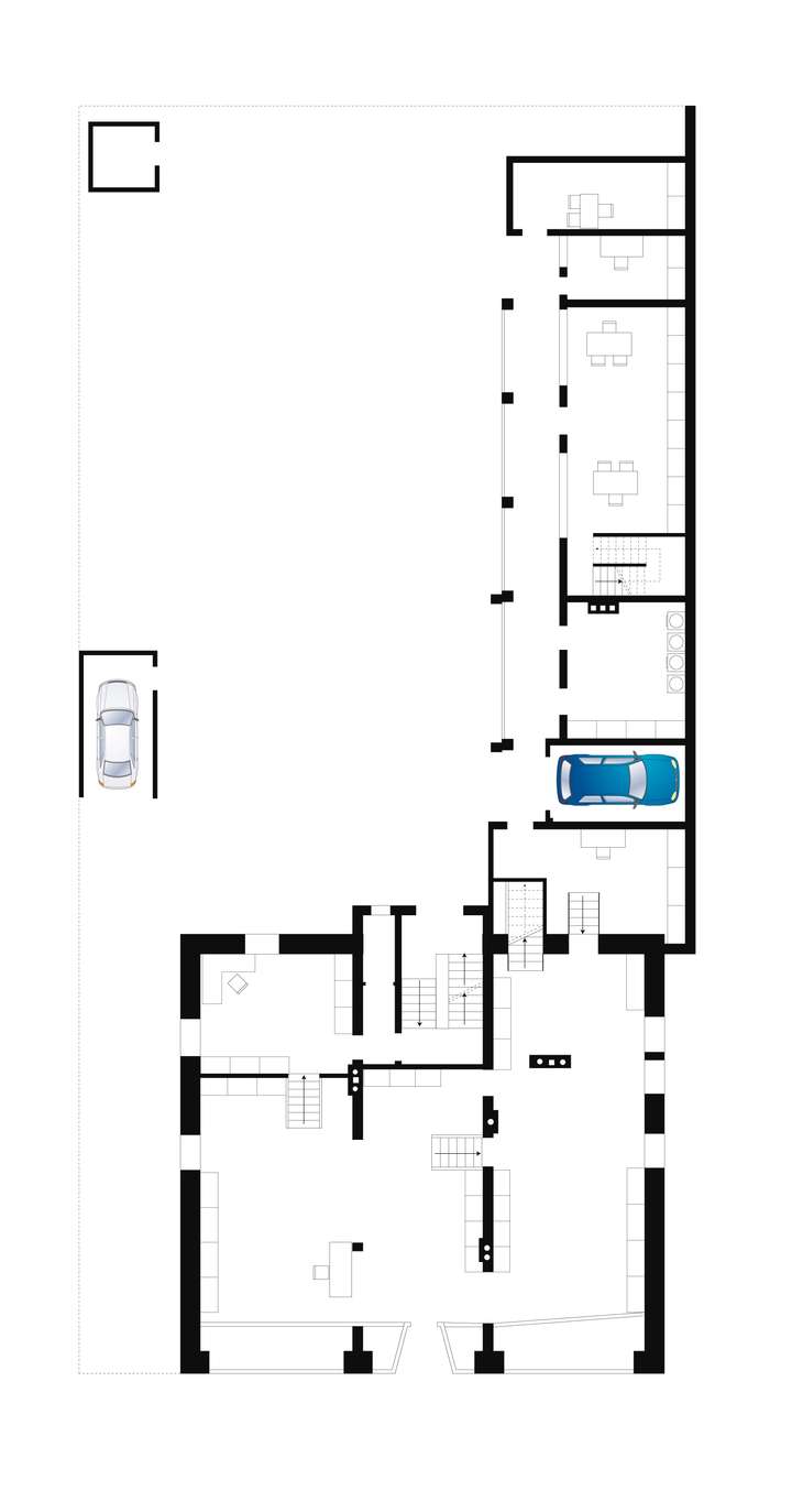
Im Vorderhaus verteilen sich eine Gewerbefläche sowie fünf Wohneinheiten.
Eine großzügige, aktuell vermietete Ladenfläche liegt im Erdgeschoss. Diese Einheit umfasst nicht nur den vorderen Hauptbereich, sondern erstreckt sich zusätzlich auf weitere Räumlichkeiten im Anbau des Erdgeschosses sowie auf Flächen im darüberliegenden Obergeschoss. Diese räumliche Erweiterung bietet dem aktuellen wie auch potenziellen zukünftigen Mieter vielseitige Nutzungs- und Gestaltungsmöglichkeiten. Diese Einheit ist noch bis zum 30.06.2026 vermietet.
Im 1. und 2. Obergeschoss befindet sich jeweils eine großzügige Wohnung auf einer Fläche von ca. 174 m². Besonders charmant sind die erhaltenen Eingangstüren und die großzügige Diele. Von letzterer gelangen Sie in sechs Zimmer, ebenso in das Badezimmer und in die Küche. Dank der sehr guten Raumaufteilung bieten diese Wohnungen eine hervorragende Möglichkeit zur Nutzung als ideale, großzügige Familienwohnung.
Die Wohnung im 1. Obergeschoss verfügt zusätzlich über einen Wintergarten mit angrenzendem Balkon und über ein separates Gäste-WC. Die Wohnung im 2. Obergeschoss bietet ein zusätzliches Badezimmer.
Die Wohnungen stehen aktuell beide leer.
Im 3. Obergeschoss befinden sich 2 Wohnungen und ein separates Zimmer mit WC
Das Zimmer auf der linken Seite verfügt über eine Fläche von ca. 20,35 m². Das Badezimmer ist mit einer Dusche, einem Waschbecken sowie einem WC ausgestattet. Dieses Zimmer steht zurzeit leer.
Die mittig gelegene Einheit bietet drei Zimmer auf einer Wohnfläche von ca. 70,37 m². Diese Wohnung ist vermietet. Eine Diele führt Sie in zwei der Zimmer sowie in die Küche mit angrenzender Abstellkammer. Hinter der Küche befindet sich ein Badezimmer. Das dritte Zimmer erreichen Sie über eines der Durchgangszimmer.
Die Wohnung auf der rechten Seite ist gut geschnitten und besteht aus vier Zimmern, die sich auf eine Gesamtwohnfläche von ca. 84,18 m² verteilen. Auch diese Wohnung ist vermietet. Eine Diele führt in das größte Zimmer, welches gut als Wohnzimmer genutzt werden kann, sowie in das Badezimmer. Über zwei weitere, kleinere Flure erreichen Sie die Küche und die drei weiteren Zimmer.
Das Vorderhaus ist vollständig unterkellert und bietet damit viel zusätzlichen Stauraum.
Das Hinterhaus der Liegenschaft ergänzt das Angebot um weitere Flächen. Dieses Gebäude wurde durch eine nachbarschaftliche Baumaßnahme beschädigt und steht derzeit leer. Es liegt dazu ein Gutachten sowie ein Gerichtsurteil aus dem Jahr 2020 vor. Das Hinterhaus kann saniert oder durch einen evtl. Neubau ersetzt werden. Dies ist mit den entsprechenden Behörden abzustimmen.
Die auf dem Grundstück befindliche Garage ist vermietet.
Top: Ein besonderes Highlight ist der große Garten mit Pavillon. So finden Sie sogar mitten in der Stadt einen schönen Platz zum Entspannen.
Dieses Objekt überzeugt nicht nur durch seine attraktive Innenstadtlage und die denkmalgeschützte Bausubstanz, sondern auch durch die Kombination aus Wohn- und Gewerbeflächen. Es bietet sowohl für Investoren als auch für Eigennutzer mit gewerblichem Interesse eine seltene Gelegenheit, eine ganz besonders charmante Immobilie in bester Lage von Gießen zu erwerben.
Gerne beantworten wir Ihre Fragen zu dieser Kapitalanlage bei einem individuellen Besichtigungstermin.
Im Zuge des Bebauungsplanes der Stadt Gießen liegt bereits ein Vorbescheid einer Neubauplanung unter Einbezug der Bestandsimmobilie aus dem Jahre 2014 vor. Gemäß Bebauungsplan kann das Grundstück wie folgt ausgenutzt werden GRZ 0,4 und GFZ 1,4. ©Claus R. Menges GmbH
Vielseitig nutzbares Investment mit Entwicklungspotenzial:Denkmalgeschütztes Wohn- und Geschäftshaus
Bahnhofstraße 44,
35390 Gießen
Auf Karte anzeigen
Finanzierungszertifikat
In nur zwei Minuten zu Ihrem persönlichen Finanzierungszertifkat.
Infos
| Haustyp | Mehrfamilienhaus |
|---|---|
| Wohnfläche ca. | 523 m2 |
| Grundstücksfläche | 943 m2 |
| Zimmer | 20 |
| Garage/Stellplatz | Garage |
Kosten
| Kaufpreis |
1.650.000 € |
|---|---|
| Provision |
5,95 % inkl. MwSt. vom Kaufpreis |
Finanzierungsrechner:
Kaufpreis:
600.000 €
Eigenkapital:
600.000 €
Monatliche Rate
0 €
Effektiver Jahreszins
0 %
Sollzinsbindung
10 Jahre
Bausubstanz & Energieausweis
| Baujahr | 1877 |
|---|---|
| Heizungsart | Gas-Heizung |
| Wesentliche Energieträger | Gas |
| Energieausweis | laut Gesetz nicht erforderlich |
Beschreibung des Objekts
Lage
Die Bahnhofstraße 44 in Gießen befindet sich in einer der zentralsten und lebendigsten Lagen der Stadt. Als Teil des historischen Stadtkerns verbindet sie den Hauptbahnhof mit der Innenstadt und ist somit ein bedeutender Verkehrsknotenpunkt sowie eine attraktive Adresse für Wohnen und Gewerbe.
Die unmittelbare Umgebung zeichnet sich durch eine vielfältige Infrastruktur aus. Zahlreiche Einkaufsmöglichkeiten, Cafés, Restaurants und Dienstleistungsbetriebe prägen das Straßenbild und bieten eine hohe Aufenthaltsqualität. Die Nähe zum Hauptbahnhof gewährleistet eine exzellente Anbindung an den öffentlichen Nah- und Fernverkehr, so dass sowohl regionale als auch überregionale Ziele schnell erreichbar sind.
Darüber hinaus ist die Bahnhofstraße 44 Teil des hessischen Kulturdenkmals.
Die zentrale Lage in Gießen macht die Adresse sowohl für Investoren als auch für Mieter äußerst attraktiv. Die Kombination aus urbanem Leben, historischer Architektur und hervorragender Erreichbarkeit bietet ideale Voraussetzungen für eine nachhaltige Nutzung und Wertsteigerung der Immobilie.©Claus R. Menges GmbH
Sonstige Angaben
Dieses Angebot ist freibleibend und unverbindlich, Irrtum sowie Zwischenverkauf vorbehalten. Das Objektangebot wurde von uns nach bestem Wissen sorgfältig zusammengestellt. Wir können jedoch nicht gewährleisten, dass alle Angaben vollständig sind. Die Daten wurden vom Verkäufer auf die Richtigkeit hin überprüft. Eine Gewähr dafür kann nicht übernommen werden.
Wir erlauben uns, Sie darauf hinzuweisen, dass alle Texte und Lichtbilder, die in Angeboten, Exposés, auf unserer Internetseite, auf öffentlichen Portalen etc. verwendet werden, urheberrechtlich geschützt sind. Eine Verwendung der Texte und der Lichtbilder ohne unsere Zustimmung stellt eine urheberrechtliche Pflichtverletzung dar, die neben Unterlassungsansprüchen auch Schadenersatzansprüche begründet. Jegliche Nutzung der Texte und Lichtbilder durch Dritte wie z.B. rentumo.de erfolgt ohne unsere Zustimmung und wird untersagt. ©Claus R. Menges GmbH
Unser aktuelles Gesamtangebot finden Sie unter www.cr-menges.de.
Grundriss
50067 Bahnhofstraße 44, 35390
>
>
50067 Bahnhofstraße 44, 35390
>
>
50067 Bahnhofstraße 44, 35390
>
>
50067 Bahnhofstraße 44, 35390
>
>
50067 Bahnhofstraße 44, 35390
>
>
Adresse
Bahnhofstraße 44, 35390 Gießen
Interessante Orte
Preis- und Lageinformationen
Preistrend für Bestandsimmobilien in Gießen