Willkommen zu diesem einzigartigen Mehrfamilienhaus in Schülp, nahe der malerischen Nordseeküste, das Ihnen eine erstklassige Investitionsmöglichkeit bietet. Erbaut im Jahr 1920, vereint dieses großzügige Domizil historischen Charme mit modernen Annehmlichkeiten.
Auf einem weitläufigen Grundstück von ca. 2.370 m² erstreckt sich diese gepflegte Immobilie über drei Etagen und bietet eine beeindruckende Wohnfläche von ca. 280 m². Mit insgesamt sieben Zimmern, darunter vier Schlafzimmer und drei Badezimmer, ist dieses Haus hervorragend für Mehrgenerationen-Wohnen geeignet. Ergänzt wird die Raumaufteilung durch drei Küchen, die alle mit hochwertiger Einbauküche ausgestattet sind.
Die Hauptwohnung besticht durch einen beeindruckenden Wintergarten, der zu entspannten Stunden einlädt. Ein separat zugängliches Apartment bietet zusätzliche Wohnfläche und Privatsphäre. Die Außenbereiche des Hauses bieten mit Terrasse und Balkon zahlreiche Möglichkeiten, die frische Nordseeluft zu genießen.
Ein vierer Carport mit Antitropfblech schützt Ihre Fahrzeuge vor jeglichen Witterungseinflüssen, während ein großer Schuppen ideal als Werkstatt oder zur Aufbewahrung von Gartengeräten dient.
Das Haus wird durch eine effiziente Gaszentralheizung, die erst 2019 installiert wurde, beheizt, was Ihnen moderne Energieeffizienz garantiert. Die Verfügbarkeit der Immobilie kann flexibel nach Vereinbarung erfolgen.
Entdecken Sie dieses bezaubernde Zuhause, das sowohl als komfortables Mehrfamilienhaus als auch als lukrative Investitionsmöglichkeit dient. Lassen Sie sich bei einer persönlichen Besichtigung von seinen zahlreichen Vorzügen überzeugen.
Haus der vielen Möglichkeiten
25764 Schülp
Die vollständige Adresse der Immobilie erhalten Sie vom Anbieter.
Auf Karte anzeigen
Die vollständige Adresse der Immobilie erhalten Sie vom Anbieter.
Finanzierungszertifikat
In nur zwei Minuten zu Ihrem persönlichen Finanzierungszertifkat.
Infos
| Haustyp | Mehrfamilienhaus |
|---|---|
| Etagenzahl | 3 |
| Wohnfläche ca. | 280 m2 |
| Nutzfläche | 30 m2 |
| Grundstücksfläche | 2.370 m2 |
| Bezugsfrei ab | nach Vereinbarung |
| Zimmer | 7 |
| Schlafzimmer | 4 |
| Badezimmer | 3 |
| Anzahl Garage/Stellplatz | 6 |
Kosten
| Kaufpreis |
375.000 € |
|---|---|
| Provision |
3,57% inklusive der gesetzlichen MwSt. |
Finanzierungsrechner:
Kaufpreis:
600.000 €
Eigenkapital:
600.000 €
Monatliche Rate
0 €
Effektiver Jahreszins
0 %
Sollzinsbindung
10 Jahre
Bausubstanz & Energieausweis
| Baujahr | 1920 |
|---|---|
| Objektzustand | Modernisiert |
| Heizungsart | Zentralheizung |
| Wesentliche Energieträger | Gas |
| Energieausweis | liegt vor |
| Energieausweistyp | Bedarfsausweis |
| Energieverbrauchskennwert | 134,7 kWh/(m²*a) |
| Energieeffizienzklasse | E |
134,7
kWh/(m²*a)
Energieeffizienzklasse E
- A+
- A
- B
- C
- D
- E
- F
- G
- H
- 0
- 25
- 50
- 75
- 100
- 125
- 150
- 175
- 200
- 225
- >250
Beschreibung des Objekts
Ausstattung
- eine Hauptwohnung mit Wintergarten
- eine Einliegerwohnung
- ein Appartment
- vierer Carport mit Antitropfblech
- großer Schuppen für Gartengeräte/Werkstatt
- Terrasse und Balkon
- großes Grundstück
- Mehrgenerations geeignet
- große Gründstück
- Gaszentralheizung von 2019
Lage
Das charmante Mehrfamilienhaus befindet sich in der idyllischen Gemeinde Schülp, im Herzen der malerischen Region Dithmarschen, Schleswig-Holstein. Eingebettet in eine ruhige und naturnahe Umgebung, bietet dieses Objekt die perfekte Balance zwischen ländlichem Wohnen und städtischer Anbindung.
Die ausgezeichnete Infrastruktur macht den täglichen Bedarf schnell zugänglich. Nur wenige Kilometer entfernt befinden sich vielfältige Einkaufsmöglichkeiten sowie ein Kindergarten und eine Grundschule, sodass Familien die Vorzüge einer unkomplizierten Alltagsgestaltung genießen können. Weiterführende Bildungseinrichtungen wie eine Realschule sind ebenfalls in kurzer Distanz zu finden, was die Lage besonders attraktiv für Familien mit Kindern macht. Kulturelle und bildende Angebote stehen in der nahegelegenen Stadt Brunsbüttel zur Verfügung, die bequem erreicht werden kann.
Für Pendler bietet die Lage einen idealen Anschluss an das Straßennetz, wobei die Autobahn in etwa 12 Kilometern Entfernung eine hervorragende Anbindung an größere Städte der Region ermöglicht. Die Nähe zur Nordseeküste bietet zudem zahlreiche Freizeitmöglichkeiten in der Natur, von ausgedehnten Spaziergängen bis hin zu sportlichen Aktivitäten.
Entdecken Sie die Lebensqualität und das harmonische Umfeld, das Schülp als Wohnort auszeichnet, und erleben Sie das unvergleichliche Gefühl, in einem freundlichen und lebendigen Gemeindeleben verwurzelt zu sein.
Sonstige Angaben
Die Besichtigung ist jederzeit möglich, jedoch nach vorheriger Terminabsprache! Bitte wahren Sie die Diskretion und sehen Sie vom Betreten des Grundstücks ohne Begleitung des Immobilienberaters ab. Sämtliche Unterlagen und Angaben wurden uns vom Auftraggeber übergeben / mitgeteilt. Für die Richtigkeit dieser Angaben können wir daher keine Gewähr übernehmen. Irrtum und Zwischenverkauf vorbehalten.
Es gelten die Allgemeinen Geschäftsbedingungen.
Finanzierung: Sie haben noch keine Finanzierung? Sprechen Sie uns an wir vermitteln Ihnen gern einen kompetenten Ansprechpartner, der für Sie ein unverbindliches Angebot ausarbeitet.
Bitte haben Sie Verständnis dafür, dass wir nur die E-Mails beantworten, in denen die vollständige Anschrift sowie die Telefonnummer des Absenders angegeben wird.
Weitere Objekte finden Sie auf unserer Homepage www.werth-immobilien.de
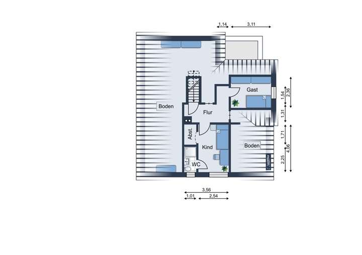
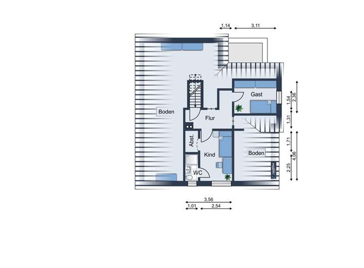
Grundriss
Erdgeschoss-651-HK-25_Erdgesch
>
>
Obergeschoss
>
>
Dachgeschoss-651-HK-25_Dachges
>
>
Adresse
25764 Schülp
Interessante Orte
Preis- und Lageinformationen
Preistrend für Bestandsimmobilien in Schülp