Attraktives Einfamilienhaus mit Einliegerwohnung, Wärmepumpe und Solaranlage in Mülsen OT Thurm
Dieses gepflegte und großzügige Einfamilienhaus mit Einliegerwohnung überzeugt durch seine gehobene Ausstattung, moderne Energieeffizienz und liebevoll instand gehaltene Details. Das dreigeschossige Wohnhaus wurde 1995 erbaut und steht ab dem 1. Oktober 2025 zum Verkauf.
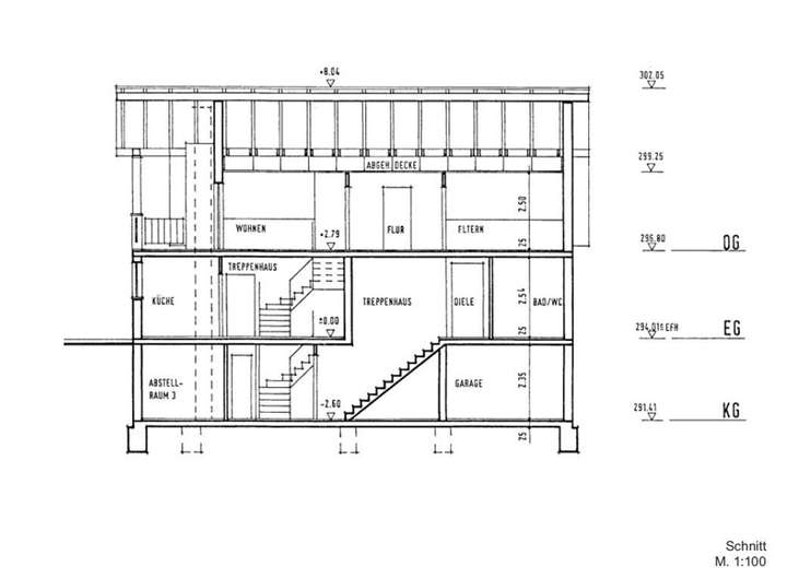
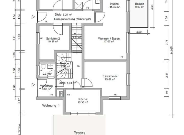
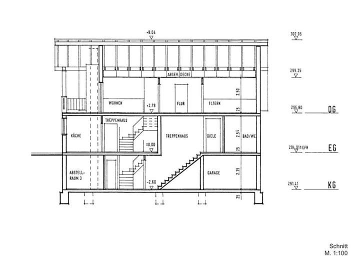
Auf rund siebeneinhalb Zimmer verteilt – auf zwei Wohneinheiten – bietet das Haus ein komfortables Wohnambiente für Familien und Mehrgenerationenwohnen. Zwei moderne Badezimmer sowie ein separates Gäste-WC ergänzen die durchdachte Raumaufteilung. In den Wohnbereichen sorgt eine Fußbodenheizung für angenehme Wärme, während die Schlafräume mit klassischen Heizkörpern ausgestattet sind. Beheizt wird das Gebäude über eine Luftwärmepumpe in Kombination mit einer Solarthermieanlage zur Heizungsunterstützung. Ein aktueller Energiebedarfsausweis liegt vor und ist dem Exposé beigefügt.
Von der Küche der Hauptwohnung gelangt man direkt auf eine großzügige, mit hochwertigem Natursteinzeug belegte Terrasse – ideal für gesellige Stunden im Freien. Sowohl die Hauptwohnung im Obergeschoss als auch die Einliegerwohnung verfügen über Balkone mit witterungsbeständigem Teakholzbelag. Das gepflegte Grundstück mit einer Fläche von ca. 550 m² bietet vielfältige Gestaltungsmöglichkeiten – ob für Blumenbeete, Gemüseanbau oder als Spielfläche für Kinder.
Das Haus ist voll unterkellert und bietet dadurch zusätzlichen Stauraum. Eine Doppelgarage ermöglicht das komfortable Abstellen von zwei Fahrzeugen. Die Einliegerwohnung ist derzeit an eine zuverlässige, langjährige Mieterin vermietet (Kaltmiete: € 400,00 Nebenkosten: € 155,00).
Auf der Südseite des Dachs befindet sich eine Photovoltaikanlage (Baujahr 2011) mit attraktiver Einspeisevergütung: 30 ct/kWh bei Einspeisung und 25 ct/kWh bei Eigenverbrauch. Der durchschnittliche monatliche Ertrag liegt bei rund € 200,00.
Fazit:
Ein modernes und zugleich charmantes Zuhause mit nachhaltiger Energietechnik, gepflegtem Garten und solider Mieterstruktur – ideal für Familien oder Käufer, die Wert auf Energieeffizienz legen und zugleich einen zusätzlichen Mietertrag erzielen möchten.
Modernes Effizienzhaus mit Einliegerwohnung in Mülsen-Thurm
08132 Mülsen
Die vollständige Adresse der Immobilie erhalten Sie vom Anbieter.
Auf Karte anzeigen
Die vollständige Adresse der Immobilie erhalten Sie vom Anbieter.
Finanzierungszertifikat
In nur zwei Minuten zu Ihrem persönlichen Finanzierungszertifkat.
Infos
| Haustyp | Einfamilienhaus |
|---|---|
| Etagenzahl | 3 |
| Wohnfläche ca. | 186 m2 |
| Nutzfläche | 115 m2 |
| Grundstücksfläche | 556 m2 |
| Bezugsfrei ab | ab sofort |
| Zimmer | 7,5 |
| Schlafzimmer | 5 |
| Badezimmer | 3 |
| Garage/Stellplatz | Garage |
| Anzahl Garage/Stellplatz | 1 |
Kosten
| Kaufpreis |
529.000 € |
|---|---|
| Provision |
3,57 % inkl. MwSt. |
Finanzierungsrechner:
Kaufpreis:
600.000 €
Eigenkapital:
600.000 €
Monatliche Rate
0 €
Effektiver Jahreszins
0 %
Sollzinsbindung
10 Jahre
Bausubstanz & Energieausweis
| Baujahr | 1995 |
|---|---|
| Objektzustand | Gepflegt |
| Qualität der Austattung | Gehoben |
| Heizungsart | Zentralheizung |
| Energieausweis | liegt vor |
| Energieausweistyp | Bedarfsausweis |
| Energieverbrauchskennwert | 83,2 kWh/(m²*a) |
| Energieeffizienzklasse | C |
83,2
kWh/(m²*a)
Energieeffizienzklasse C
- A+
- A
- B
- C
- D
- E
- F
- G
- H
- 0
- 25
- 50
- 75
- 100
- 125
- 150
- 175
- 200
- 225
- >250
Beschreibung des Objekts
Ausstattung
- Baujahr 1995, gepflegter Zustand
- Dreigeschossiges Einfamilienhaus mit Einliegerwohnung
- Ca. 550 m² Grundstücksfläche, voll unterkellert
- Siebeneinhalb Zimmer, 2 Badezimmer + Gäste-WC
- Fußbodenheizung in Wohnbereichen, Heizkörper in Schlafräumen
- Luftwärmepumpe + Solarthermieanlage zur Heizungsunterstützung
- Photovoltaikanlage (Bj. 2011) mit Vergütung:
- 30 ct / kWh (Einspeisung)
- 25 ct / kWh (Eigenverbrauch)
- Ø Einnahmen: ca. € 200,00 /Monat
- Großzügige Terrasse mit Natursteinbelag
- Zwei Balkone mit Teakholzbelag
- Doppelgarage + Stellplätze vor dem Haus
- Pflegeleicht angelegtes Grundstück mit Gestaltungspotenzial
- Einliegerwohnung vermietet: € 400,00 Kaltmiete + € 155,00 Nebenkosten
- Energieeffizient und nachhaltig – niedrige Betriebskosten
- Ruhige, familienfreundliche Lage in Mülsen OT Thurm
Lage
Das Einfamilienhaus liegt im ruhigen und beliebten Ortsteil Thurm der Gemeinde Mülsen, nur wenige Minuten östlich von Zwickau. Die Lage vereint ländliche Idylle mit hervorragender Anbindung – ideal für Familien und Berufspendler, die naturnah und dennoch komfortabel wohnen möchten.
Einkaufsmöglichkeiten, Ärzte, Apotheken und Dienstleister befinden sich in unmittelbarer Nähe. Kindertagesstätten, Schulen und die Westsächsische Hochschule in Zwickau sind schnell erreichbar.
Über die B173 und A72 sind Zwickau und Chemnitz in kurzer Zeit erreichbar. Eine gute Busverbindung und der nahe Bahnhof Zwickau sorgen für optimale Mobilität.
Freizeit- und Erholungsmöglichkeiten wie Rad- und Wanderwege, Sportvereine und kulturelle Angebote in Zwickau bieten hohen Lebenskomfort.
Mülsen OT Thurm bietet eine perfekte Kombination aus Ruhe, Natur und urbaner Nähe – ein idealer Wohnort für alle, die Lebensqualität und gute Infrastruktur schätzen.
Sonstige Angaben
Um eine schnelle Bearbeitung zu gewährleisten, übermitteln Sie uns bitte Ihre vollständigen Kontaktdaten mit Telefon-Nr. und E-Mail-Adresse.
Gerne vereinbaren wir einen Besichtigungstermin mit Ihnen und freuen uns über Ihre Kontaktaufnahme.
Wir vermitteln - mit Sicherheit.
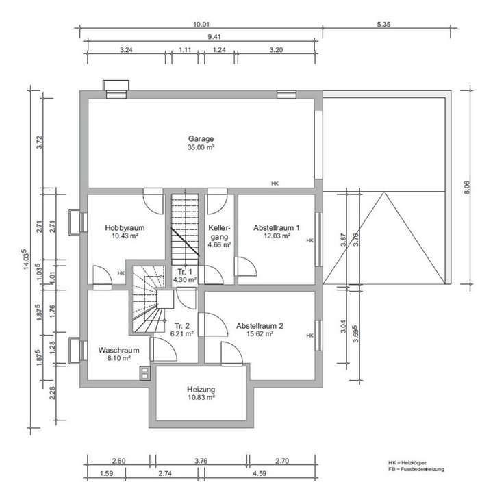
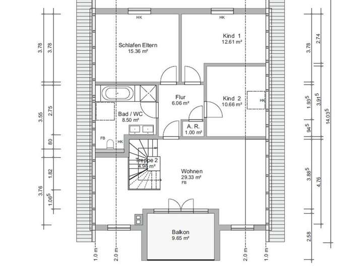
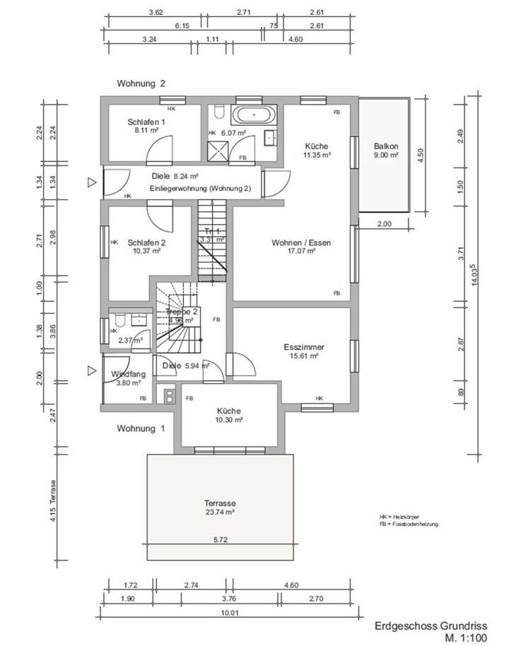
Grundriss
Kellergeschoss
>
>
Erdgeschoss
>
>
Obergeschoss
>
>
Schnitt
>
>
Schnitt 2
>
>
ImmoScout24 Gold Partner
>
>
Immowelt Platin Partner
>
>
Top 10 Immobilienpreis
>
>
Adresse
08132 Mülsen
Interessante Orte
Preis- und Lageinformationen
Preistrend für Bestandsimmobilien in Mülsen