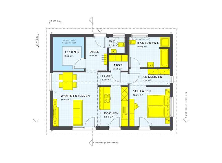
Dieser bezaubernde Bungalow in Telgte ist der Inbegriff puristischen Wohnens. Mit einer durchdachten Wohnfläche von 82 Quadratmetern bietet er alles, was du für ein harmonisches Leben benötigst. Das Walmdach verleiht dem Haus nicht nur eine ansprechende Optik, sondern sorgt auch für ein behagliches Raumklima. Die clevere Gestaltung des Querhauses erweitert den Wohnraum und schafft Platz für ein großzügiges Schlafzimmer, in dem du deine Ruhe finden kannst. Die Eingangsoverdachung mit Walmdach rundet das harmonische Gesamtbild ab und heißt dich stilvoll willkommen.
LivingHaus geht jedoch über den Bau deines Traumhauses hinaus und bietet dir eine Vielzahl an Zusatzleistungen, die dein Wohnerlebnis bereichern. Die hochwertige Traumküche wird perfekt auf deinen Grundriss abgestimmt. Sie vereint modernste Technik, durchdachte Stauraumlösungen und ein ästhetisches Design. So bist du bestens gerüstet, um sofort nach dem Einzug deine kulinarischen Fähigkeiten unter Beweis zu stellen.
Mit dem Living Haus Bau-Cockpit behältst du jederzeit den Überblick über dein Bauprojekt. Die digitale App ermöglicht dir den Zugriff auf Zeitpläne und wichtige Dokumente, sodass du stressfrei und gut organisiert bauen kannst. Der I-KON Ansatz für intelligentes Bauen sorgt dafür, dass dein Zuhause energieeffizient und umweltfreundlich ist - ideal für nachhaltiges Wohnen.
Finanzielle Vorteile bietet dir das Zuhause-Darlehen. Mit bis zu 250.000 Euro zu einem besonders günstigen Zinssatz und staatlichen Förderprogrammen wird der Weg zu deinem Eigenheim noch leichter. Das Zuhause-Paket sorgt für eine hochwertige Grundausstattung, die moderne Böden, edle Türen und stilvolle Sanitäranlagen umfasst.
Solltest du den Innenausbau selbst in die Hand nehmen wollen, steht dir das DIY-Ausbau-Coaching zur Verfügung. In nur drei Tagen zeigen dir Experten, wie du dein Zuhause nach deinen Vorstellungen gestalten kannst. So wird dein Bungalow nicht nur ein Haus, sondern ein Ort, der deine Persönlichkeit widerspiegelt.
Lebensraum für deine Träume: Der individuelle Bungalow von LivingHaus in Telgte
48291 Telgte
Die vollständige Adresse der Immobilie erhalten Sie vom Anbieter.
Auf Karte anzeigen
Die vollständige Adresse der Immobilie erhalten Sie vom Anbieter.
Finanzierungszertifikat
In nur zwei Minuten zu Ihrem persönlichen Finanzierungszertifkat.
Infos
| Haustyp | Bungalow |
|---|---|
| Etagenzahl | 1 |
| Wohnfläche ca. | 82 m2 |
| Nutzfläche | 82 m2 |
| Grundstücksfläche | 330 m2 |
| Zimmer | 2 |
| Schlafzimmer | 2 |
| Badezimmer | 2 |
Kosten
| Kaufpreis |
391.739 € |
|---|
Finanzierungsrechner:
Kaufpreis:
600.000 €
Eigenkapital:
600.000 €
Monatliche Rate
0 €
Effektiver Jahreszins
0 %
Sollzinsbindung
10 Jahre
Bausubstanz & Energieausweis
| Baujahr | unbekannt |
|---|---|
| Bauphase | Haus in Planung (projektiert) |
| Qualität der Austattung | Gehoben |
Beschreibung des Objekts
Ausstattung
Dein zukünftiges Zuhause wird mit hochwertigen Materialien ausgestattet. Die Grundausstattung umfasst moderne Böden, edle Türen und stilvolle Sanitäranlagen, sodass du sofort einziehen und wohlfühlen kannst. Alle Elemente sind optimal aufeinander abgestimmt und werden fix und fertig geliefert. Die individuelle Küche ist ohne unverbindliche Gutscheine direkt im Paket enthalten, was dir den Kaufprozess erleichtert. Durch die Verwendung von modernen Wärmepumpentechniken und die Integration einer PV-Anlage wird dein Haus energieeffizient und umweltfreundlich. Du erhältst eine 30-jährige Garantie auf die Grundkonstruktion und fünf Jahre Gewährleistung auf alle übrigen Bauleistungen. Dank des hohen Vorfertigungsgrades wird der Bauprozess effizient gestaltet und ob Bodenplatte oder Keller, alles kann aus einer Hand abgewickelt werden. Dein Zuhause wird so zum "Wie ich es will Fertighaus".
Lage
Telgte ist eine charmante Stadt, die dir und deiner Familie eine hervorragende Lebensqualität bietet. In der Umgebung findest du zahlreiche Schulen, darunter die Grundschule Telgte und das Gymnasium, die beide sehr gute Bewertungen aufweisen. Kindergärten sind ebenfalls in der Nähe und bieten ein breites Betreuungsangebot für die Kleinsten. Für den täglichen Einkauf stehen dir mehrere Supermärkte wie REWE und Lidl zur Verfügung, die schnell und bequem erreichbar sind.
Ärzte und Apotheken sind in der Stadt gut vertreten, sodass du immer auf eine umfassende Gesundheitsversorgung zählen kannst. Die Verkehrsanbindung ist ideal: Der öffentliche Nahverkehr bringt dich schnell nach Münster, und die Autobahn A1 ist nur wenige Minuten entfernt, was Pendlern einen schnellen Zugang zur Arbeitswelt ermöglicht.
Für Freizeitaktivitäten bietet Telgte eine Vielzahl von Möglichkeiten. Genieße die Natur im nahegelegenen Waldgebiet oder unternehme Ausflüge an die Ems. Der historische Stadtkern mit seinen kleinen Cafés und Geschäften lädt zum Verweilen ein. Für Sportbegeisterte gibt es zahlreiche Sportvereine und Freizeitmöglichkeiten. Telgte ist somit ein perfekter Ort für Familien, Naturliebhaber und Pendler, die ein harmonisches Leben suchen.
Adresse
48291 Telgte
Interessante Orte
Preis- und Lageinformationen
Preistrend für Bestandsimmobilien in Telgte