Diese charmante Doppelhaushälfte in Bad Nenndorf überzeugt durch ihre gemütliche Atmosphäre, solide Bauweise und einer Lage, in der man sich sofort wohl fühlt. Das im Jahr 2000 erbaute Haus bietet auf rund 112 m² Wohnfläche und einem ca. 427 m² großen Grundstück ein ideales Zuhause für Familien, Paare oder Menschen, die ihren Traum vom Eigenheim mit ländlichem Flair verwirklichen wollen. Bereits beim Betreten spürt man die einladende Atmosphäre des Hauses. Im Erdgeschoss öffnet sich ein großzügiger Wohn- und Essbereich mit offener Küche, der durch seine helle und freundliche Gestaltung besticht. Große Fensterflächen lassen viel Tageslicht herein und schaffen ein harmonisches Wohngefühl. Der direkte Zugang zur Terrasse und in den Garten macht diesen Bereich zum Herzstück des Hauses – ideal für gesellige Stunden, entspannte Nachmittage oder das Frühstück im Grünen. Der Garten ist liebevoll angelegt und bietet Raum für Kinder, Hobbygärtner oder einfach zum Genießen. Hinter der Garage befindet sich zudem ein praktischer Geräteschuppen mit zusätzlichem Stauraum. Ein weiteres Zimmer im Erdgeschoss lässt sich flexibel nutzen – ob als Büro, Gästezimmer oder barrierefreies Schlafzimmer. Im Erdgeschoss findet man zudem ein Gäste-WC mit Dusche, das hell und zeitlos gestaltet ist. Im Obergeschoss erwarten Sie drei gemütliche Zimmer, die als Schlaf-, Kinder- oder Arbeitszimmer genutzt werden können. Von hier genießen Sie einen herrlichen Blick über die Felder – besonders bei Sonnenuntergang ein wunderschönes Bild. Das Badezimmer mit Badewanne bietet einen Ort der Entspannung und ist ebenso geschmackvoll ausgestattet. Der ausgebaute Dachboden ist das Highlight des Hauses. Er schafft zusätzlichen Raum für individuelle Ideen: ein Rückzugsort für Hobbys, ein Homeoffice oder ein ruhiger Platz zum Lesen und Entspannen – die Möglichkeiten sind vielfältig. Die Lage des Hauses ist idyllisch: Vor dem Haus fließt ein kleiner Bach, der dem Grundstück einen ganz besonderen Charme verleiht. Das sanfte Plätschern schafft eine Atmosphäre der Ruhe und Geborgenheit – ein Ort, an dem man gerne ankommt. Zur Ausstattung gehören eine Gasheizung, eine Garage sowie zwei Außenstellplätze. Das Haus überzeugt durch seine solide Bauweise, eine gepflegte Substanz und eine warme, wohnliche Ausstrahlung. Diese Doppelhaushälfte ist ein Zuhause mit Herz: gemütlich, gepflegt und gut durchdacht – ein Ort, an dem Wohnen zur Erholung wird. Wir freuen uns auf Ihre Anfragen und darauf, Ihnen das Haus persönlich zu zeigen.
Doppelhaushälfte in familiärer Atmosphäre in Bad Nenndorf
31542 Bad Nenndorf
Die vollständige Adresse der Immobilie erhalten Sie vom Anbieter.
Auf Karte anzeigen
Die vollständige Adresse der Immobilie erhalten Sie vom Anbieter.
Finanzierungszertifikat
In nur zwei Minuten zu Ihrem persönlichen Finanzierungszertifkat.
Infos
| Haustyp | Doppelhaushaelfte |
|---|---|
| Wohnfläche ca. | 111 m2 |
| Grundstücksfläche | 427 m2 |
| Zimmer | 5 |
| Badezimmer | 2 |
| Anzahl Garage/Stellplatz | 3 |
Kosten
| Kaufpreis |
339.000 € |
|---|---|
| Provision |
3.57 % inkl. gesetzl. MwSt. |
Finanzierungsrechner:
Kaufpreis:
600.000 €
Eigenkapital:
600.000 €
Monatliche Rate
0 €
Effektiver Jahreszins
0 %
Sollzinsbindung
10 Jahre
Bausubstanz & Energieausweis
| Baujahr | 2000 |
|---|---|
| Wesentliche Energieträger | Gas |
| Energieausweis | liegt vor |
| Energieausweistyp | Verbrauchsausweis |
| Energieverbrauchskennwert | 100,7 kWh/(m²*a) |
| Energieeffizienzklasse | D |
100,7
kWh/(m²*a)
Energieeffizienzklasse D
- A+
- A
- B
- C
- D
- E
- F
- G
- H
- 0
- 25
- 50
- 75
- 100
- 125
- 150
- 175
- 200
- 225
- >250
Beschreibung des Objekts
Ausstattung
Teppich
Laminat
Fliesen
Lage
Die Doppelhaushälfte befindet sich in einer begehrten Wohnlagen von Bad Nenndorf, einem charmanten Kurort im Landkreis Schaumburg – nur etwa 25 Kilometer westlich der Landeshauptstadt Hannover. Eingebettet zwischen dem Hügelland des Deisters und der weitläufigen Landschaft der niedersächsischen Tiefebene verbindet Bad Nenndorf auf einzigartige Weise Natur, Tradition und Lebensqualität. Die Immobilie liegt in einer ruhigen Sackgasse – ein absoluter Pluspunkt für Familien. Hier können Kinder ungestört spielen und Nachbarn kennen sich noch persönlich. Die Umgebung ist geprägt von gepflegten Einfamilienhäusern und einem hohen Grünanteil. Das Wohnviertel vermittelt ein Gefühl von Sicherheit und Ruhe, ohne auf eine gute Anbindung an das Stadtleben verzichten zu müssen. Einkaufsmöglichkeiten, Kindergärten, Schulen sowie ärztliche Versorgung befinden sich in unmittelbarer Nähe und sind bequem zu Fuß oder mit dem Fahrrad erreichbar. Das Stadtzentrum von Bad Nenndorf mit seinen kleinen Geschäften, Cafés und Restaurants lädt zum Bummeln und Verweilen ein. Gleichzeitig bieten die zahlreichen Freizeit- und Erholungsangebote der Kurstadt – von Wellness-Einrichtungen über Sportvereine bis hin zu Wander- und Radwegen – vielfältige Möglichkeiten für die ganze Familie. Besonders hervorzuheben ist die Nähe zum historischen Kurpark, einem der schönsten Landschaftsparks in Niedersachsen. Mit seinen alten Bäumen, zahlreichen Blumenbeeten und weitläufigen Spazierwegen ist er das grüne Herz der Stadt. Hier finden regelmäßig kulturelle Veranstaltungen, Konzerte und Feste statt. Ein zukunftsweisendes Highlight für Bad Nenndorf ist die bevorstehende Landesgartenschau 2026, die unter dem Motto „Hier blüht Vielfalt“ stattfinden wird. In Vorbereitung auf dieses Großereignis wird die Stadt umfassend verschönert: neue Grün- und Parkanlagen entstehen, moderne Spielplätze und Familienbereiche werden angelegt, und die bestehende Infrastruktur wird nachhaltig verbessert. Die Landesgartenschau wird nicht nur zahlreiche Besucher anziehen, sondern die Attraktivität und Lebensqualität von Bad Nenndorf dauerhaft steigern. Auch die Verkehrsanbindung ist ausgezeichnet: Über die Autobahn A 2 erreichen Sie Hannover in rund 25 Minuten, Bielefeld in etwa 45 Minuten. Der Bahnhof Bad Nenndorf bietet eine direkte S-Bahn-Verbindung nach Hannover und in die Region, sodass Berufspendler ebenso ideale Bedingungen vorfinden wie Familien mit aktivem Alltag. Insgesamt bietet die Lage eine perfekte Balance zwischen Idylle und Infrastruktur, Familienfreundlichkeit und Zukunftsperspektive.
Sonstige Angaben
Der Makler-Vertrag mit uns kommt durch die Bestätigung der Inanspruchnahme unserer Maklertätigkeit in Textform zustande. Die Höhe der Courtage richtet sich nach den ab dem 23.12.2020 in Kraft getretenen gesetzlichen Regelungen zur Teilung der Maklercourtage. Hiernach wird die Courtage regelmäßig für beide Parteien (Eigentümer und Käufer) jeweils 3,57% auf den Kaufpreis einschließlich gesetzlicher Umsatzsteuer betragen und ist bei notariellem Vertragsabschluss verdient und fällig. Die Höhe der Bruttocourtage unterliegt einer Anpassung bei Steuersatz- änderung. Grunderwerbssteuer, Notar- und Gerichtskosten trägt der Käufer. Wir stehen Ihnen mit weiteren Informationen zum Objekt sowie für Besichtigungen gern zur Verfügung. Bitte nehmen Sie unsere Verbraucherinformationen und die allgemeinen Geschäftsbedingungen, die wir Ihnen nachstehend ebenfalls zur Verfügung stellen, zur Kenntnis. Engel & Völkers Immobilien Deutschland GmbH ist Lizenzpartner der Engel & Völkers Residential GmbH. Hinweise: Alle Angaben sind ohne Gewähr und basieren ausschließlich auf Informationen, die uns von unserem Auftraggeber übermittelt wurden. Wir übernehmen keine Gewähr für die Vollständigkeit, Richtigkeit und Aktualität dieser Angaben. Zwischenverkauf bleibt vorbehalten. Sollte das von uns nachgewiesene Objekt bereits bekannt sein, teilen Sie uns dies bitte unverzüglich mit. Die Weitergabe dieses Exposés an Dritte ohne unsere Zustimmung löst gegebenenfalls Courtage- bzw. Schadensersatzansprüche aus. Im Übrigen gelten unsere allgemeinen Geschäftsbedingungen.
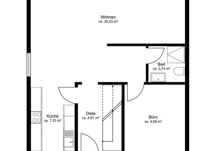
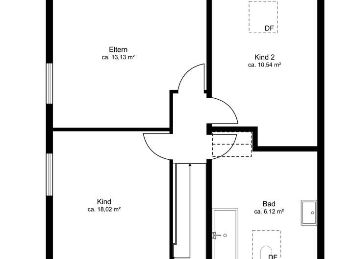
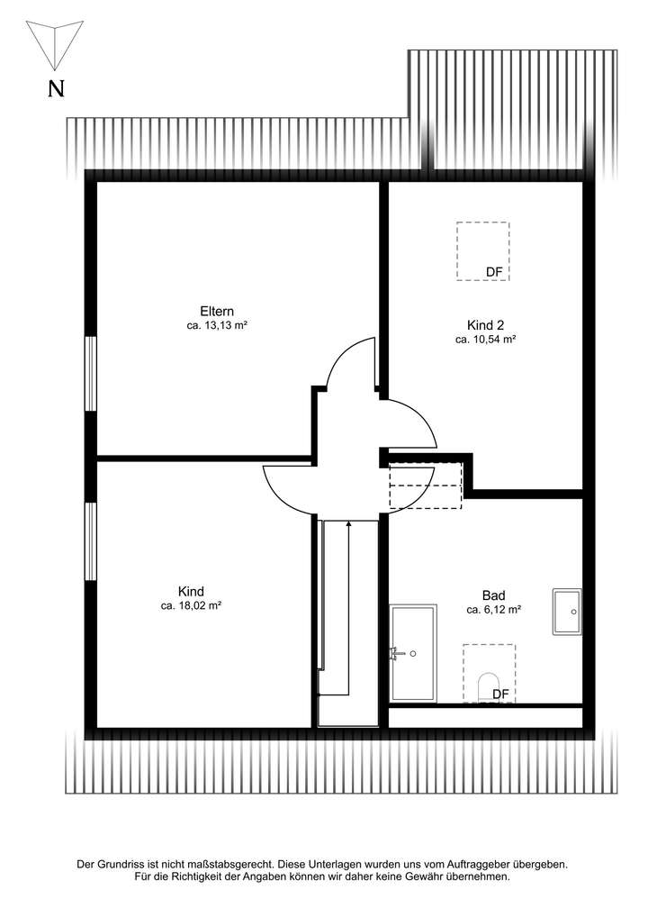
Grundriss
Grundriss Untergeschoss
>
>
Grundriss Obergeschoss
>
>
Adresse
31542 Bad Nenndorf
Interessante Orte
Preis- und Lageinformationen
Preistrend für Bestandsimmobilien in Bad Nenndorf