Dieses charmante Einfamilienhaus aus dem Jahr 1999 überzeugt durch seine massive Bauweise, eine Wohnfläche von ca. 130 m² und ein großzügiges Grundstück von rund 600 m².
Bereits beim Betreten des Hauses werden Sie von einer einladenden Diele empfangen, von der aus das Gäste-WC, der praktische Hauswirtschaftsraum, die Küche und der Wohnbereich erreichbar sind. Das Herzstück des Hauses ist der lichtdurchflutete Wohn- und Essbereich, der mit seiner offenen Gestaltung ein angenehmes Wohngefühl vermittelt. Direkt angrenzend befindet sich die großzügige Küche mit hochwertigen Einbaugeräten und einer praktischen Durchreiche – perfekt für gesellige Stunden mit Familie und Freunden.
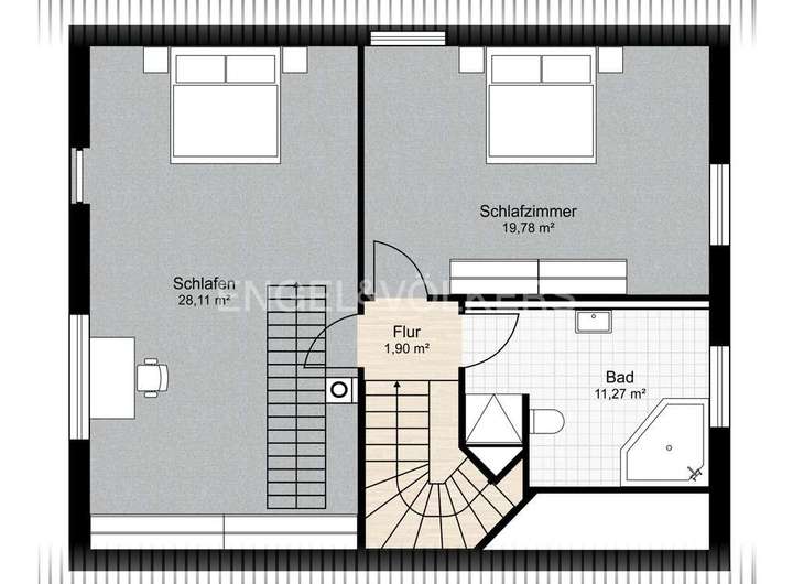
Im Obergeschoss erwarten Sie zwei große Schlafzimmer. Aus dem großen Schlafzimmer führt eine Treppe ins ausgebaute Dachzimmer. Das moderne Designer-Badezimmer mit Wanne und Dusche lässt keine Wünsche offen.
Die Ausstattung:
- doppelt verglaste Kunststofffenster
- Fußbodenheizung in beiden Etagen
- hochwertiger Laminatboden im Erdgeschoss
- heller Teppich und Laminat im Obergeschoss
- gepflegter Garten mit überdachter Terrasse
- Gasheizung aus 2017
- Glasfaseranschluss
Die elegante Optik von Klinkerfassade und Dachpfannen rundet das harmonische Gesamtbild ab.
Ob entspannte Sommerabende auf der West- Terrasse, gemütliche Stunden in der hellen Wohnatmosphäre oder das Arbeiten im Homeoffice – dieses Haus bietet Ihnen alles, was modernes Wohnen ausmacht.
Fazit: Einziehen, wohlfühlen und das Leben genießen!
Traumhaftes Einfamilienhaus in Kisdorf
24629 Kisdorf
Die vollständige Adresse der Immobilie erhalten Sie vom Anbieter.
Auf Karte anzeigen
Die vollständige Adresse der Immobilie erhalten Sie vom Anbieter.
Finanzierungszertifikat
In nur zwei Minuten zu Ihrem persönlichen Finanzierungszertifkat.
Infos
| Haustyp | Einfamilienhaus |
|---|---|
| Etagenzahl | 2 |
| Wohnfläche ca. | 130 m2 |
| Nutzfläche | 25 m2 |
| Grundstücksfläche | 600 m2 |
| Bezugsfrei ab | nach Absprache |
| Zimmer | 3 |
| Schlafzimmer | 2 |
| Badezimmer | 2 |
| Anzahl Garage/Stellplatz | 2 |
Kosten
| Kaufpreis |
549.000 € |
|---|---|
| Provision |
3,57 % inkl. gesetzl. MwSt. |
Finanzierungsrechner:
Kaufpreis:
600.000 €
Eigenkapital:
600.000 €
Monatliche Rate
0 €
Effektiver Jahreszins
0 %
Sollzinsbindung
10 Jahre
Bausubstanz & Energieausweis
| Baujahr | 1999 |
|---|---|
| Objektzustand | Gepflegt |
| Qualität der Austattung | Normal |
| Heizungsart | Gas-Heizung |
| Wesentliche Energieträger | Gas |
| Energieausweis | liegt vor |
| Energieausweistyp | Verbrauchsausweis |
| Energieverbrauchskennwert | 122,3 kWh/(m²*a) |
| Energieeffizienzklasse | D |
122,3
kWh/(m²*a)
Energieeffizienzklasse D
- A+
- A
- B
- C
- D
- E
- F
- G
- H
- 0
- 25
- 50
- 75
- 100
- 125
- 150
- 175
- 200
- 225
- >250
Beschreibung des Objekts
Lage
Das Einfamilienhaus befindet sich in ruhiger Lage, zentral gelegen in Kisdorf und bietet eine gute Anbindung an verschiedene Einrichtungen. Edeka, Aldi und ein Gartenmarkt sind bequem zu Fuß erreichbar. Kindergarten, Schule, Apotheke, Arzt, Sportanlagen und Friseure befinden sich ebenfalls in fußläufiger Entfernung. Die weiterführenden Schulen in Kaltenkirchen oder Henstedt- Ulzburg erreichen Sie mit dem Schulbus, Kisdorf eignet sich perfekt als Wohnort für Familien. Die Autobahn A7 liegt nur wenige Kilometer entfernt und sorgt damit für eine schnelle Erreichbarkeit der umliegenden Städte. Bis zum Flughafen Hamburg Airport fahren Sie
mit dem Auto ca. 30 Minuten. In etwa 45 Minuten sind Sie in der Hamburger Innenstadt. In umgekehrter Fahrtrichtung erreichen Sie in knapp einer Stunde den Ostseestrand. Die Umgebung Kisdorfs ist ländlich geprägt und bietet die perfekte Umgebung um sich zu entspannen und zu erholen.
Sonstige Angaben
Der Makler-Vertrag mit uns kommt durch die Bestätigung der Inanspruchnahme unserer Maklertätigkeit in Textform zustande, wie z.B. insbesondere die Unterschrift des Suchkundenvertrages und/oder des Objekt-Exposés. Die Höhe der Courtage richtet sich nach den ab dem 23.12.2020 in Kraft getretenen gesetzlichen Regelungen zur Teilung der Maklercourtage. Hiernach wird die Courtage regelmäßig für beide Parteien (Eigentümer und Käufer) in Höhe von 3 % zuzüglich Umsatzsteuer in jeweils geltender Höhe, also insgesamt 3,57 % des Kaufpreises einschließlich Umsatzsteuer bei notariellem Vertragsabschluss verdient und fällig. Die Höhe der Bruttocourtage unterliegt einer Anpassung bei Steuersatzänderung. Grunderwerbssteuer, Notar- und Gerichtskosten trägt der Käufer.
Grundriss
Erdgeschoss
>
>
Dachgeschoss
>
>
Adresse
24629 Kisdorf
Interessante Orte
Preis- und Lageinformationen
Preistrend für Bestandsimmobilien in Kisdorf