Dieses ca. 219 m² große Einfamilienhaus auf einem rund 1.655 m² großen Grundstück verbindet komfortables Wohnen mit einer ruhigen Wohnlage und naturnaher Umgebung – in einem der gefragtesten Ortsteile der Gemeinde Schwielowsee. In Geltow, nur unweit von Potsdam entfernt, erwartet Sie ein großzügiges Zuhause mit ausgewogenen Proportionen, hochwertigen Materialien und einer durchdachten Raumaufteilung. Das im Jahr 1994 errichtete Haus präsentiert sich in einem sehr gepflegten Zustand und überzeugt mit solider Bauqualität.
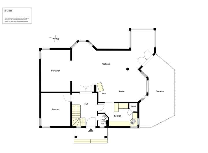
Schon beim Betreten des Hauses beeindruckt der Eingangsbereich mit einer imposanten Deckenhöhe von über 5 Metern, die ein großzügiges und luftiges Raumgefühl vermittelt. Vom Flur aus gelangt man in die Wohnräume des Erdgeschosses, die mit einer angenehmen Raumhöhe von ca. 2,60 m eine behagliche Wohnatmosphäre schaffen. Der weitläufige Wohnbereich mit Kamin bildet das Herzstück des Hauses und schafft ein stilvolles Zentrum für das tägliche Leben. Die Kombination aus edlem Eichenholzparkett und hochwertigen Fliesen verleiht den Räumen Wärme, Struktur und zeitlose Eleganz.
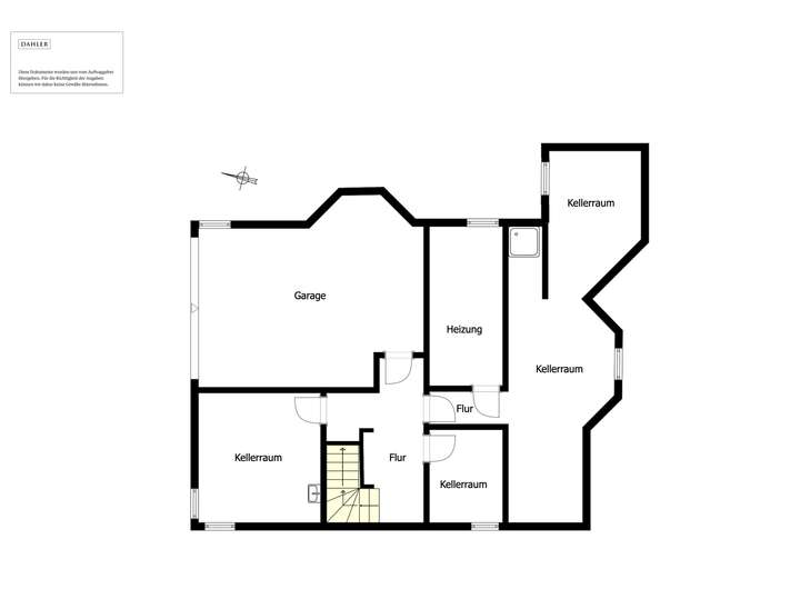
Der helle Küchen- und Essbereich bietet viel Raum für individuelles Familienleben und eröffnet gleichzeitig den Blick ins Grüne. Fünf Zimmer verteilen sich sinnvoll auf die Etagen und ermöglichen eine vielseitige Nutzung – ob als Schlafzimmer, Homeoffice oder Gästezimmer. Ein separater Hauswirtschaftsraum im Kellergeschoss ergänzt den durchdachten Grundriss und bietet zusätzlichen Stauraum.
Zur Ausstattung gehören eine effiziente Zentralheizung in Kombination mit einer angenehmen Fußbodenheizung. Die verbauten Kunststofffenster mit Doppelverglasung sorgen für guten Wärme- und Schallschutz. Der liebevoll angelegte Garten überzeugt mit eigenem Brunnen und automatischer Bewässerung – ideal für alle, die Gartenpflege mit Komfort verbinden möchten. Eine Doppelgarage sowie zwei Außenstellplätze runden das Gesamtangebot ab.
Die Lage vereint ländliche Ruhe mit urbaner Erreichbarkeit: Nur etwa 8 km westlich von Potsdam gelegen, verfügt Geltow über eine gute Infrastruktur mit Einkaufsmöglichkeiten, Kitas, Schulen sowie eine hervorragende Anbindung über die B1 und die A10. Berlin erreichen Sie mit dem Auto in etwa 40 Minuten, der Potsdamer Hauptbahnhof ist nur ca. 15 Minuten entfernt. Der nahegelegene Schwielowsee, die Havel sowie weitläufige Waldgebiete bieten vielfältige Möglichkeiten zur Erholung und Freizeitgestaltung direkt vor der Haustür.
Das Grundstück selbst bietet zudem Potenzial in der zukünftigen Bebaubarkeit und somit in der erweiterten Nutzung. Eine Realteilung wäre hier denkbar und müsste eine Flurstücksgröße von ca. 550 bis 600 m² ergeben, um sich somit nahtlos in die Umgebungsbebauung einzufügen und von der Gemeinde genehmigt zu werden. Die Erschließung des dadurch neu gewonnen Baulandes, würde sodann über die Siedlerstraße erfolgen. Auch wäre es denkbar, selbst eine Nachverdichtung vorzunehmen, sei es als Hobby, oder Gästeflächen, oder aber auch als selbst genutzte Büroflächen. Das hängt ganz von den Vorstellungen Ihrer Familie ab. Eine Bauvoranfrage wurde Eigentümerseitig bereits gestellt.
Diese Immobilie ist ideal für alle, die naturnahes, ruhiges Wohnen mit guter Erreichbarkeit verbinden möchten – ein sehr gepflegtes Zuhause mit Charakter, Komfort und Funktionalität in einer der reizvollsten Regionen des Berliner Umlands.
Grünes Familienidyll am Waldrand – Nur Minuten von Potsdam
14548 Schwielowsee
Die vollständige Adresse der Immobilie erhalten Sie vom Anbieter.
Auf Karte anzeigen
Die vollständige Adresse der Immobilie erhalten Sie vom Anbieter.
Finanzierungszertifikat
In nur zwei Minuten zu Ihrem persönlichen Finanzierungszertifkat.
Infos
| Haustyp | Einfamilienhaus |
|---|---|
| Etagenzahl | 2 |
| Wohnfläche ca. | 219 m2 |
| Grundstücksfläche | 1.655 m2 |
| Bezugsfrei ab | Nach Vereinbarung |
| Zimmer | 5 |
| Schlafzimmer | 3 |
| Badezimmer | 4 |
Kosten
| Kaufpreis |
1.095.000 € |
|---|---|
| Provision |
3,57 % inkl. MwSt. bezogen auf den beurkundeten Kaufpreis |
Finanzierungsrechner:
Kaufpreis:
600.000 €
Eigenkapital:
600.000 €
Monatliche Rate
0 €
Effektiver Jahreszins
0 %
Sollzinsbindung
10 Jahre
Bausubstanz & Energieausweis
| Baujahr | 1994 |
|---|---|
| Objektzustand | Gepflegt |
| Qualität der Austattung | Normal |
| Heizungsart | Fußbodenheizung |
| Wesentliche Energieträger | Öl |
| Energieausweis | liegt vor |
| Energieausweistyp | Verbrauchsausweis |
| Energieverbrauchskennwert | 171,0 kWh/(m²*a) |
| Energieeffizienzklasse | F |
171,0
kWh/(m²*a)
Energieeffizienzklasse F
- A+
- A
- B
- C
- D
- E
- F
- G
- H
- 0
- 25
- 50
- 75
- 100
- 125
- 150
- 175
- 200
- 225
- >250
Beschreibung des Objekts
Ausstattung
* Großzügiges Einfamilienhaus mit ca. 219 m² Wohnfläche
* Baujahr 1994 – solide Bausubstanz und sehr gepflegter Zustand
* Ca. 1.655 m² großes Grundstück in naturnaher, ruhiger Lage
* Beliebter Ortsteil Geltow – nur ca. 8 km westlich von Potsdam
* Angenehme Raumhöhe von ca. 2,60 m in allen Wohnräumen
* Helle und gut geschnittene Raumaufteilung mit fünf Zimmern
* Wohn- und Essbereich mit offenem Grundriss und gemütlichem Kamin
* Hochwertige Ausstattung: Eichenholzparkett und Fliesenböden
* Moderne Kunststofffenster mit Doppelverglasung für Wärme- und Schallschutz
* Fußbodenheizung betrieben über eine effiziente Öl-Zentralheizung
* Separater Hauswirtschaftsraum im Kellergeschoss mit Waschmaschinenanschluss
* Gepflegter Garten mit eigenem Brunnen und automatischer Bewässerung
* Doppelgarage sowie zwei Außenstellplätze auf dem Grundstück
* Potenzial für eine weitere Bebauung vorhanden (100% Bauland)
* Realteilung möglich / Veräußerung als Baugrundstück realisierbar (Kosten/ Umsetzung liegen auf Erwerberseite)
* Ruhige Anwohnerstraße mit hohem Erholungswert in grüner Umgebung
* Nähe zu Schwielowsee, Havel und weitläufigen Wäldern – ideal für Natur- und Freizeitliebhaber
Lage
Südwestlich der Landeshauptstadt Potsdam liegt der idyllische Ort Geltow – ein echtes Kleinod inmitten der Havellandschaft. Auf der einen Seite grenzt die Havel, auf der anderen lädt ein weitläufiges Waldgebiet zu ausgedehnten Spaziergängen und Naturerlebnissen ein.
Nur etwa 8 Kilometer westlich von Potsdam entfernt, überzeugt Geltow durch eine gute Infrastruktur mit zahlreichen Geschäften, Kindertagesstätten und einem modernen Schulcampus. Diese Kombination aus Nahversorgung, Bildungsangeboten und hoher Lebensqualität macht den Ort besonders für Familien attraktiv. Hinzu kommt der große Freizeit- und Erholungswert der Region – mit direkter Nähe zu Wäldern, Wasser und vielfältigen Sportmöglichkeiten.
Geltow liegt direkt an der Bundesstraße B1, die eine schnelle Verbindung nach Potsdam und Brandenburg an der Havel ermöglicht. Eine Besonderheit ist die örtliche Fähre „Caputh“, die Geltow mit dem benachbarten Ortsteil Caputh verbindet – eine charmante Alternative zur Straßenverbindung. Auch Berufspendler profitieren: Die Nähe zu den Bundesautobahnen A10 und A2 sorgt für eine optimale Anbindung an die Metropolregion Berlin.
Die malerische Umgebung mit zahlreichen Seen – darunter der Schwielowsee und der Petzinsee – sowie die umliegenden Wälder laden zu entspannenden Ausflügen in die Natur ein. Trotz der ruhigen Lage ist die Hauptstadt Berlin bequem erreichbar: Der Kurfürstendamm liegt etwa 35 Kilometer entfernt und ist mit dem Auto in rund 40 Minuten, mit öffentlichen Verkehrsmitteln in etwa einer Stunde erreichbar. Die Entfernung zum Flughafen BER beträgt rund 50 Autominuten.
Das Zentrum von Potsdam sowie der Potsdamer Hauptbahnhof sind in nur etwa 15 Minuten mit dem Auto erreichbar. Eine Bushaltestelle ist nur wenige Gehminuten entfernt. Die Buslinien 631 und 580 bieten regelmäßige Verbindungen in die Potsdamer Innenstadt sowie nach Werder (Havel).
Sonstige Angaben
Ihre Werte sind bei uns in besten Händen
DAHLER ist auf die Vermittlung hochwertiger Wohnimmobilien in bevorzugten Lagen spezialisiert. Seit über 30 Jahren wird unser Unternehmen von Kirsten und Björn Dahler geführt und setzt mit Innovationskraft und Servicequalität Maßstäbe in der Branche. Unsere mehr als 90 Standorte in Deutschland und Spanien unterstützen den Erfolg Ihres Immobilienverkaufs nachhaltig und stehen Ihnen in allen Themen rund um den Immobilienverkauf professionell zur Seite.
Unsere Maxime ist es, Ihre Erwartungen beim Immobilienverkauf zu übertreffen und wir freuen uns, Ihnen mit unseren Fach- und Marktkenntnissen und einer kompetenten Beratung zur Seite zu stehen. Unabhängig davon, ob Sie ein Haus oder eine Wohnung verkaufen möchten. Wir verstehen uns als Servicemakler. Denn wer sein Anliegen rund um das Thema Immobilie in unsere Hände legt, vertraut auf den verantwortungsvollen Umgang mit erheblichen materiellen Werten. Diesem Anspruch begegnen wir in allen Phasen des Verkaufs einer Immobilie mit innovativen Serviceleistungen. Dabei stehen profunde Fach- und Marktkenntnisse und eine kompetente Beratung im Vordergrund. Für Immobilienverkäufer sind unsere Services darüber hinaus komplett kostenfrei.
7 Gründe für einen Immobilienverkauf mit DAHLER
01 SPEZIALISIERUNG
Wir sind „Zuhause in besten Lagen“ und konzentrieren uns auf hochwertige Wohnimmobilien in bevorzugten Wohnvierteln.
02 MARKTNÄHE
Der Blick auf kleinste Gebiete ermöglicht unseren Beratern eine profunde Kenntnis ihres Teilmarktes.
03 RESEARCH
Laufende fundierte Marktanalysen bilden die Basis für standortgerechte Werteinschätzungen.
04 FACHEXPERTISE
Umfassende Schulungen aller Mitarbeiter sichern ein gleichbleibend hohes Qualitätsniveau in der Beratung.
05 ERFOLG
Dank eines ausgefeilten Marketingkonzepts erreichen wir eine durchschnittliche Vermarktungsdauer von nur zwei bis drei Monaten.
06 DISKRETION
Auf Wunsch unserer Auftraggeber vermarkten wir jede Immobilie unter Wahrung höchster Diskretion.
07 NETZWERK
Zuhause kann überall sein. Deshalb machen wir Ihr Angebot überregional bekannt und platzieren es in über 90 Standorten.
Grundriss
Grundriss Erdgeschoss
>
>
Grundriss Obergeschoss
>
>
Grundriss Kellergeschoss
>
>
Adresse
14548 Schwielowsee
Interessante Orte
Preis- und Lageinformationen
Preistrend für Bestandsimmobilien in Schwielowsee