Zum Verkauf steht ein Grundstück mit kleinem Altbestand mit einer Fläche von ca. 787 m2 in attraktiver Lage von Rodgau-Jügesheim (Hessen).
Für dieses Grundstück liegt bereits eine Baugenehmigung wie folgt vor:
Ein 10-Familienhaus
Tiefgarage
2 Stellplätze
24 Fahrradstellplätze
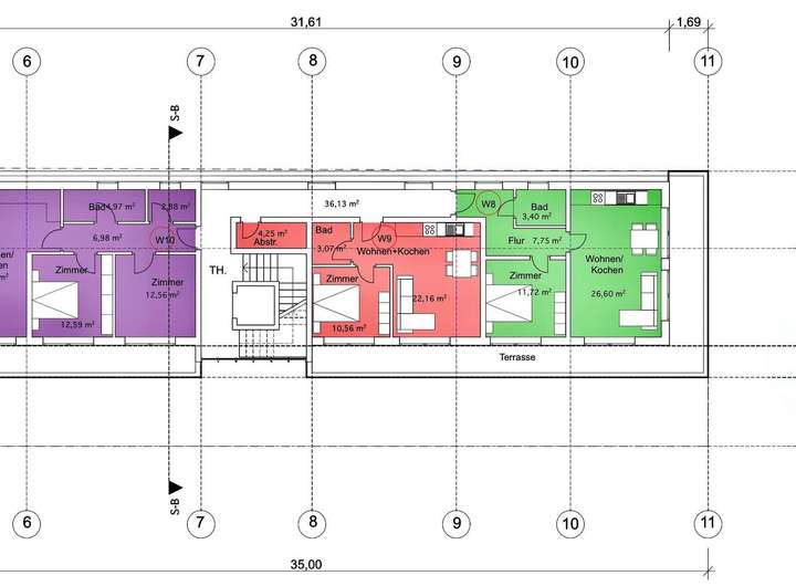
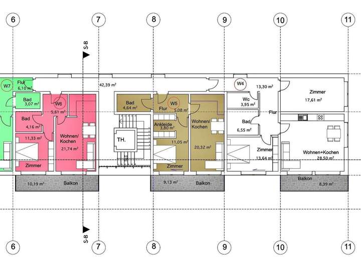
Wohnfläche ca. 575,54 m2, aufgeteilt wie folgt:
Wohnung 1 = 65,40 m2
Wohnung 2 = 42,76 m2
Wohnung 3 = 48,26 m2 + 8,93 m2 (17,87 m2) Terrasse
Wohnung 4 = 83,56 m2 + 4,19 m2 (8,39 m2) Balkon
Wohnung 5 = 44,89 m2 + 4,56 m2 (9,13 m2) Balkon
Wohnung 6 = 42,84 m2 + 5,09 m2 (10,19 m2) Balkon
Wohnung 7 = 44,82 m2 + 6,26 m2 (12,53 m2) Balkon
Wohnung 8 = 44,81 m2 + 10,81 m2 (21,62 m2) Terrasse
Wohnung 9 = 39,47 m2 + 4,48 m2 (8,97 m2) Terrasse
Wohnung 10 = 63,65 m2 + 10,76 m2 (21,53 m2) Terrasse
Die Möglichkeit die Tiefgarage in ein Keller umzuwandeln besteht.
Alle relevanten Baupläne, Genehmigungen und Unterlagen sind vollständig vorhanden und können auf Wunsch eingesehen werden.
Diese Gelegenheit eignet sich ideal für Investoren, Bauträger oder private Bauherren, die ein genehmigtes Projekt ohne lange Planungsphase übernehmen möchten.
Das Baugrundstück bietet potenziellen Käufern die Möglichkeit, in eine vielversprechende Immobilie zu investieren und von einer hohen Rendite zu profitieren.
Grundstück mit Baugenehmigung für ein 10-Familienhaus
63110 Rodgau
Die vollständige Adresse der Immobilie erhalten Sie vom Anbieter.
Auf Karte anzeigen
Die vollständige Adresse der Immobilie erhalten Sie vom Anbieter.
Finanzierungszertifikat
In nur zwei Minuten zu Ihrem persönlichen Finanzierungszertifkat.
Infos
| Vermarktungsart | Kaufen |
|---|---|
| Grundstücksfläche | 787 m2 |
| Verfügbar ab | November 2025 |
Kosten
| Miete pro Jahr |
899.000 € |
|---|---|
| Provision | Nein |
Finanzierungsrechner:
Kaufpreis:
600.000 €
Eigenkapital:
600.000 €
Monatliche Rate
0 €
Effektiver Jahreszins
0 %
Sollzinsbindung
10 Jahre
Beschreibung des Objekts
Lage
Das Baugrundstück für ein Mehrfamilienhaus befindet sich in einem begehrten Stadtteil von Rodgau in einer A-Lage. Der Stadtteil zeichnet sich durch seine angenehme Atmosphäre und die gepflegte Umgebung aus. In der direkten Nähe befinden sich verschiedene Einkaufsmöglichkeiten, Restaurants und Schulen, die eine hohe Lebensqualität bieten. Zudem ist die Anbindung an öffentliche Verkehrsmittel sehr gut, was die Erreichbarkeit der umliegenden Städte erleichtert.
Rodgau-Jügesheim, die Stadt in der sich die Immobilie befindet, liegt im Rhein-Main-Gebiet in unmittelbarer Nähe zu großen Städten wie Frankfurt am Main und Darmstadt. Die Stadt selbst bietet eine gute Infrastruktur mit zahlreichen Freizeit- und Erholungsmöglichkeiten sowie einem breit gefächerten Bildungsangebot. Durch die gute Anbindung an Autobahnen und den öffentlichen Nahverkehr ist Rodgau ein beliebter Wohnort für Pendler und Familien.
Die Region um Rodgau ist geprägt von einer ausgezeichneten Wirtschaftsstruktur und einer Vielzahl von kulturellen Veranstaltungen. Die Nähe zum Flughafen Frankfurt und zu internationalen Unternehmen macht die Gegend besonders attraktiv für Investoren und Geschäftsleute. Zudem bietet die umliegende Natur zahlreiche Möglichkeiten für Outdoor-Aktivitäten und Erholung. Insgesamt zeichnet sich die Region durch ihre Vielseitigkeit und Lebensqualität aus, was das Baugrundstück zu einer attraktiven Investitionsmöglichkeit macht.
Sonstige Angaben
HAFTUNG: Wir weisen darauf hin, dass die von uns weitergegebenen Objektinformationen, Unterlagen, Pläne etc. vom Verkäufer bzw. Vermieter stammen. Eine Haftung für die Richtigkeit oder Vollständigkeit der Angaben übernehmen wir daher nicht. Es obliegt unseren Kunden, die darin enthaltenen Objektinformationen und Angaben auf ihre Richtigkeit hin zu überprüfen. Alle Immobilienangebote sind freibleibend und vorbehaltlich Irrtümer, Zwischenverkauf- und Vermietung oder sonstiger Zwischenverwertung.
Grundriss
Grundriss EG
>
>
Grundriss 1.OG
>
>
Grundriss Staffelgeschoss DG
>
>