In einem kleinen „Neubaugebiet“ in idyllischer und sonniger Lage von Breitenstein entsteht diese DHH mit sonniger Terrasse und Garten.
Das Haus ist mit 6 lichtdurchfluteten, großzügigen Zimmern geplant und mit 139 m² Wohnfläche.
Es besteht die Möglichkeit für eine Garage.
DHH 2:
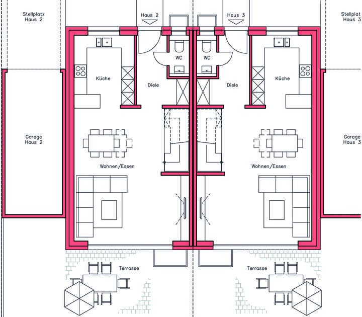
Über die Diele im Erdgeschoss betreten Sie das Haus. Hier befinden sich die Garderobe und das Gäste-WC. An den offen geplanten Küchenbereich schließt sich der Wohn-Essbereich des Hauses an, der dank viel bodentiefer Verglasung angenehm hell und freundlich wirkt. Von hier aus gelangen Sie auf die Sonnenterrasse und in den Garten.
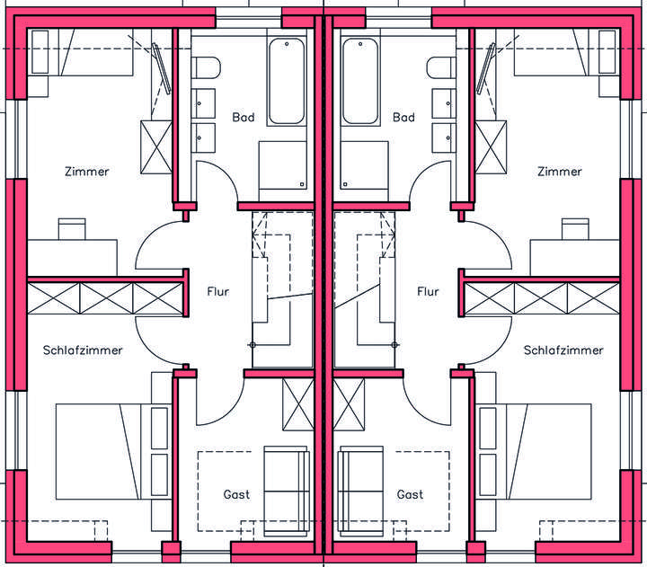
2 Schlafzimmer sowie ein Gäste-/Homeoffice-Zimmer haben wir im Obergeschoss für Sie geplant. Nebenan befindet sich das moderne Tageslichtbad mit bodengleicher Dusche, Wanne, WC und zwei Waschbecken.
Das ausgebaute Dachgeschoss mit dem Studiozimmer eignet sich ideal für einen separaten Kinderbereich - oder das Home-Office.
Der große Hobbykeller im Untergeschoss ist vielseitig nutzbar und wird mit Lichtschacht im Wohnraumstandard ausgebaut. Nebenan sind der Kellerraum sowie Waschküche/Technikraum vorgesehen.
Eine Fußbodenheizung im ganzen Haus sorgt für ein angenehmes Wohnraumklima.
"Gelegenheit für die junge Familie" Sonnige DHH in ruhiger und beliebter Lage von Breitenstein
71093 Weil im Schönbuch
Die vollständige Adresse der Immobilie erhalten Sie vom Anbieter.
Auf Karte anzeigen
Die vollständige Adresse der Immobilie erhalten Sie vom Anbieter.
Finanzierungszertifikat
In nur zwei Minuten zu Ihrem persönlichen Finanzierungszertifkat.
Infos
| Haustyp | Doppelhaushaelfte |
|---|---|
| Etagenzahl | 2 |
| Wohnfläche ca. | 139 m2 |
| Grundstücksfläche | 195 m2 |
| Zimmer | 6 |
| Schlafzimmer | 4 |
| Badezimmer | 1 |
| Garage/Stellplatz | Garage |
| Anzahl Garage/Stellplatz | 1 |
Kosten
| Kaufpreis |
719.000 € |
|---|---|
| Provision | Nein |
Finanzierungsrechner:
Kaufpreis:
600.000 €
Eigenkapital:
600.000 €
Monatliche Rate
0 €
Effektiver Jahreszins
0 %
Sollzinsbindung
10 Jahre
Bausubstanz & Energieausweis
| Baujahr | 2026 |
|---|---|
| Bauphase | Haus in Planung (projektiert) |
| Qualität der Austattung | Gehoben |
| Heizungsart | Fußbodenheizung |
Beschreibung des Objekts
Ausstattung
Das Haus ist komplett bezugsfertig geplant. Alle Bodenbeläge und Malerarbeiten sind im Preis enthalten. Die DHH wird in sehr guter Massivbauweise (Stein auf Stein) mit 3-fach Verglasung, Parkettboden, elektrischen Rollläden, Fußbodenheizung, Luft-Wasser-Wärmepumpe und Photovoltaik-Anlage nach GEG 2024 erstellt. Energieeffizienzklasse A+.
Lage
Breitenstein, ein attraktiver Ortsteil von Weil im Schönbuch, vereint ruhiges, naturnahes Wohnen mit hervorragender Erreichbarkeit der umliegenden Städte wie Böblingen, Tübingen und Stuttgart. Die grüne Umgebung lädt zu Spaziergängen, Radtouren und Erholung ein – ideal für alle, die dem Alltagsstress entfliehen möchten, ohne auf eine gute Infrastruktur zu verzichten.
Kindergarten (mit Ganztagsbetreuung) sowie Grundschule sind in wenigen Minuten zu Fuß erreichbar, weiterführende Schulen befinden sich in den Nachbarorten.
Sonstige Angaben
Rufen Sie uns gleich an und vereinbaren Sie einen individuellen Besichtigungstermin.
Wir freuen uns von Ihnen zu hören!
Eigene Wünsche können in der Aufteilung noch berücksichtigt werden.
"Ideal für junge Familien, die in beliebter und ruhiger Lage modern und mit Sonnengarten wohnen möchten!"
Grundriss
Lageplan
>
>
Erdgeschoss
>
>
Obergeschoss
>
>
Dachgeschoss
>
>
Untergeschoss
>
>
Schnitt
>
>
Grundstück/Haus gesucht!
>
>
Adresse
71093 Weil im Schönbuch
Interessante Orte
Preis- und Lageinformationen
Preistrend für Bestandsimmobilien in Weil im Schönbuch