Willkommen in diesem besonderen Anwesen, einem ehemaligen Forsthaus mit Geschichte, Charakter und großem Entwicklungspotenzial.
Auf einem weitläufigen Grundstück mit großzügigen Wiesenflächen und teils altem Baumbestand finden Sie hier einen Ort, an dem Ruhe, Natur und Freiheit zu Hause sind.
Das solide errichtete Haus befindet sich in einem funktionstüchtigen, aber renovierungsbedürftigen Zustand. Die Bausubstanz ist gut und bietet eine hervorragende Grundlage für individuelle Modernisierungen und Ausbauideen. Eine ca. 60 qm große Bühne eröffnet zusätzlichen Raum für kreative Projekte oder weiteren Wohnraum. Ein Gewölbekeller rundet das Ganze ab.
Neben einer Öl-Zentralheizung verfügt das Objekt über eine Feststoffheizung, die nach Nachrüstung eines Filtereinsatzes mit Holz betrieben werden kann. Für moderne Ansprüche ist bereits ein Glasfaseranschluss vorhanden.
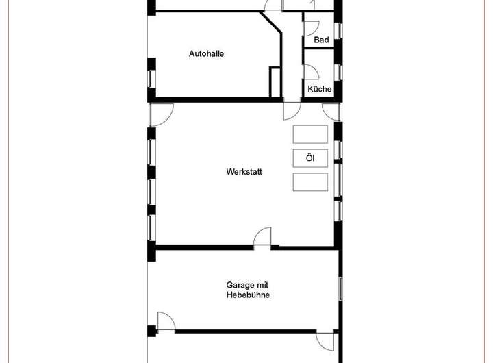
Die großzügigen Garagen bieten ausreichend Platz auch für größere Fahrzeuge wie z.B. ein Wohnmobil und sind als Werkstatt oder Hobbyraum nutzbar, inklusive einer PKW-Hebebühne.
Das Anwesen liegt idyllisch im Außenbereich, umgeben von Natur und Weite, ideal für Familien, Selbstständige, Naturfreunde oder Tierliebhaber, die das Besondere suchen und eigene Ideen verwirklichen möchten.
Hier wartet ein Ort mit Geschichte und Zukunft, bereit, von Ihnen neu belebt zu werden.
Idyllisches Anwesen - Wohnen, Arbeiten und Leben in Harmonie mit der Natur!
89558 Böhmenkirch
Die vollständige Adresse der Immobilie erhalten Sie vom Anbieter.
Auf Karte anzeigen
Die vollständige Adresse der Immobilie erhalten Sie vom Anbieter.
Finanzierungszertifikat
In nur zwei Minuten zu Ihrem persönlichen Finanzierungszertifkat.
Infos
| Haustyp | Einfamilienhaus |
|---|---|
| Etagenzahl | 2 |
| Wohnfläche ca. | 257 m2 |
| Nutzfläche | 262 m2 |
| Grundstücksfläche | 27.368 m2 |
| Bezugsfrei ab | sofort |
| Zimmer | 9 |
| Badezimmer | 3 |
| Garage/Stellplatz | Garage |
| Anzahl Garage/Stellplatz | 2 |
Kosten
| Kaufpreis |
595.000 € |
|---|---|
| Provision |
3,57 % inkl. ges. MwSt. Die Maklercourtage für den Käufer beträgt 3 % aus dem Kaufpreis zuzüglich der gesetzlichen MwSt., somit gesamt 3,57 %. |
Finanzierungsrechner:
Kaufpreis:
600.000 €
Eigenkapital:
600.000 €
Monatliche Rate
0 €
Effektiver Jahreszins
0 %
Sollzinsbindung
10 Jahre
Bausubstanz & Energieausweis
| Baujahr | 1876 |
|---|---|
| Objektzustand | Renovierungsbedürftig |
| Qualität der Austattung | Einfach |
| Heizungsart | Zentralheizung |
| Wesentliche Energieträger | Öl |
| Energieausweis | liegt vor |
| Energieausweistyp | Bedarfsausweis |
| Energieverbrauchskennwert | 328,2 kWh/(m²*a) |
| Energieeffizienzklasse | H |
328,2
kWh/(m²*a)
Energieeffizienzklasse H
- A+
- A
- B
- C
- D
- E
- F
- G
- H
- 0
- 25
- 50
- 75
- 100
- 125
- 150
- 175
- 200
- 225
- >250
Beschreibung des Objekts
Ausstattung
* Einbauküche
* zwei Garagen
* Hebebühne
* Carport
* mehrere Außenstellplätze
* mehrere Schuppen
* Glasfaseranschluss
Lage
Das Objekt befindet sich im Außenbereich von Böhmenkirch-Steinenkirch.
Sonstige Angaben
Energiebedarfsausweis Energiekennwert: 328,16 kWh/(qm*a) Energieeffizienz: Klasse H (gr.250) Heizung: Zentralheizung mit Öl Baujahr laut Energieausweis: 1876
2 x Garage, 1 x Carport
Grundriss
Erdgeschoss
>
>
Obergeschoss
>
>
Dachgeschoss
>
>
Adresse
89558 Böhmenkirch
Interessante Orte
Preis- und Lageinformationen
Preistrend für Bestandsimmobilien in Böhmenkirch