Hier können Sie ein schönes Grundstück in Stadtbergen, OT Deuringen, erwerben. Das angebotene Grundstück hat eine ideale Größe von 536 Quadratmetern und eignet sich perfekt z.B. für ein Einfamilienhaus mit zwei Vollgeschossen und einem Dachgeschoß.
Da es in diesem Bereich von Deuringen keinen Bebauungsplan gibt, erfolgt die Einschätzung nach § 34 BauGB. Hierbei muss sich ein Gebäude in die Umgebung einfügen, also gebaut werden, wie die umliegenden Häuser. Hinsichtlich eines Kellers müssen die örtlichen Gegebenheiten (Boden, Wasser, etc.) beachtet werden. Es gelten hier die städtischen Satzungen (Einfriedung, Stellplatzsatzung, etc.).
Die Satzungen finden Sie online, wenn Sie „Bauvorschriften Stadtbergen“ in die Suchmaschine eingeben.
Der Altbestand auf dem Grundstück besteht aus einem Einfamilienhaus mit Nebengebäude aus den 1930er Jahren.
Das bestehende Gebäude ist sanierungsbedürftig. Unser Energieberater informiert Sie gerne über Kosten und Förderungen.
Das Haus steht leer!
Lassen Sie sich diese einzigartige Gelegenheit nicht entgehen, in eines der begehrtesten Viertel von Stadtbergen zu ziehen.
Fordern Sie jetzt unser umfangreiches Exposé mit weiteren Fotos und Lageplan über das Kontaktformular an und überzeugen Sie sich selbst von den Vorzügen der Lage und des näheren Umfeldes.
Wir beraten Sie gerne persönlich.
Wir weisen freundlich darauf hin, dass wir die Angaben über die Immobilie von der Verkäuferseite erhalten haben und für Vollständigkeit und Richtigkeit keine Haftung übernehmen können.
Ideal geschnittenes, schönes Grundstück mit Altbestand!
86391 Stadtbergen
Die vollständige Adresse der Immobilie erhalten Sie vom Anbieter.
Auf Karte anzeigen
Die vollständige Adresse der Immobilie erhalten Sie vom Anbieter.
Finanzierungszertifikat
In nur zwei Minuten zu Ihrem persönlichen Finanzierungszertifkat.
Infos
| Vermarktungsart | Kaufen |
|---|---|
| Grundstücksfläche | 536 m2 |
| Erschließung | Erschlossen |
| Empfohlene Nutzung | Einfamilienhaus |
| Bebaubar nach | wie Nachbarbebauung |
| Verfügbar ab | Nach Vereinbarung |
Kosten
| Miete pro Jahr |
395.000 € |
|---|---|
| Provision |
3,57% inkl. MwSt. |
Finanzierungsrechner:
Kaufpreis:
600.000 €
Eigenkapital:
600.000 €
Monatliche Rate
0 €
Effektiver Jahreszins
0 %
Sollzinsbindung
10 Jahre
Beschreibung des Objekts
Lage
Dieses Grundstück befindet sich in einer Tempo-30-Zone der idyllischen Gemeinde Stadtbergen, im charmanten Ortsteil Deuringen.
Die Lage bietet die perfekte Balance zwischen naturnahem Wohnen und städtischer Infrastruktur. In unmittelbarer Nähe finden Sie malerische Wanderwege durch das Naherholungsgebiet des Naturparks Augsburg - Westliche Wälder. Die ruhige Umgebung ist ideal für Familien und Naturliebhaber, die den Feierabend in einer entspannten Atmosphäre genießen möchten.
Trotz der ländlichen Idylle müssen Sie auf die Vorzüge der urbanen Umgebung nicht verzichten. In Stadtbergen sind alle wichtigen Einrichtungen für den täglichen Bedarf vorhanden, darunter Einkaufsmöglichkeiten, Schulen, Ärzte und Sporteinrichtungen. Die gute Verkehrsanbindung erlaubt es, das Zentrum von Augsburg schnell zu erreichen, sei es mit dem Auto oder den öffentlichen Verkehrsmitteln, die regelmäßig verkehren.
Insgesamt bietet diese Lage eine hervorragende Kombination aus Ruhe und Erholung im Grünen sowie der Nähe zu einer pulsierenden Stadt, was sie für Bewohner aus allen Lebenslagen attraktiv macht.
Sonstige Angaben
Sie denken über Verkauf oder Vermietung einer Immobilie nach?
Bei uns dreht sich alles um Immobilien...
Wir sind für Sie da.
Ausgezeichneter Immobilienmakler:
IMMOLICHT Immobilien zählt laut dem Magazin FOCUS auf Basis einer unabhängigen Datenerhebung zu Deutschlands empfohlenen Immobilienmaklern und erhielt die Auszeichnung TOP Immobilienmakler 2025 sowie in den Jahren 2024, 2023, 2022, 2021, 2020, 2019, 2018 und erstmals 2017.
Mehr Infos hier: www.immolicht.de
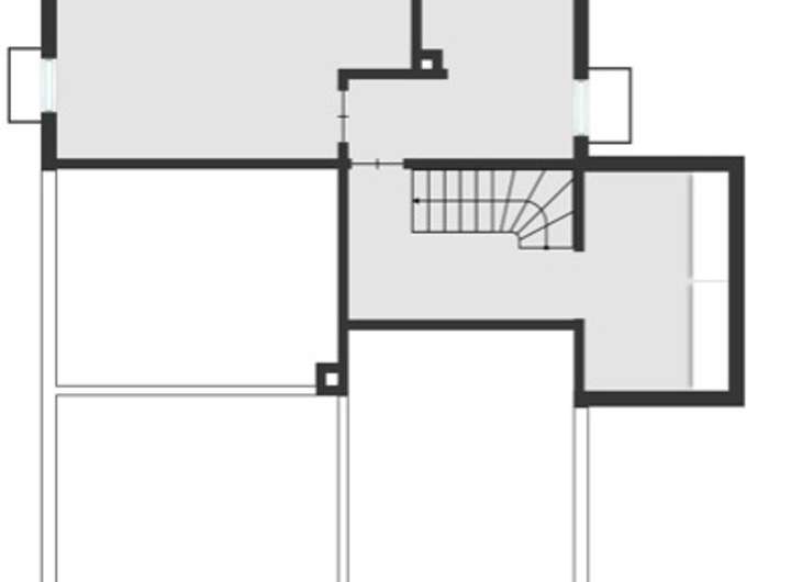
Grundriss
EG Altbestand
>
>
DG Altbestand
>
>
KG Altbestand
>
>