Dieses gepflegte Einfamilienhaus mit zusätzlicher Einliegerwohnung wurde im Jahr 1974 auf einem ca. 670 qm großen Grundstück in ruhiger, zentraler Lage von Drosendorf errichtet und 2022 teilsaniert.
Das Objekt überzeugt durch seine vielseitige Nutzungsmöglichkeit - ideal für Familien, Mehrgenerationenwohnen oder als renditestarke Kapitalanlage mit zwei separaten Wohneinheiten.
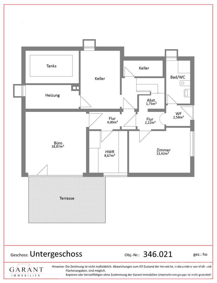
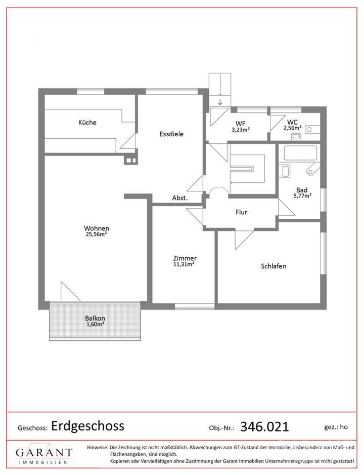
Die Gesamtwohnfläche von rund 181 qm verteilt sich auf eine Einliegerwohnung im Untergeschoss mit Terrasse und eine großzügige Erdgeschosswohnung mit Balkon. Das Dachgeschoss ist teil ausgebaut und bietet zusätzlichen Wohnraum mit vielfältigen Nutzungsmöglichkeiten. Jede Einheit ist separat erschlossen und verfügt über eigene Stromkreise sowie interessante Ausstattungsmerkmale.
Das Haus präsentiert sich in einem gepflegten Zustand mit moderner Raumaufteilung und hellen Wohnbereichen. Neben einer Doppel-Garage und einem weiteren Stellplatz bietet das Objekt einen schön angelegten Garten - ein ideales Zuhause in angenehmer Nachbarschaft und naturnaher Umgebung.
Charmantes Einfamilienhaus mit Einliegerwohnung und Doppelgarage in ruhiger Lage
96117 Memmelsdorf
Die vollständige Adresse der Immobilie erhalten Sie vom Anbieter.
Auf Karte anzeigen
Die vollständige Adresse der Immobilie erhalten Sie vom Anbieter.
Finanzierungszertifikat
In nur zwei Minuten zu Ihrem persönlichen Finanzierungszertifkat.
Infos
| Haustyp | Einfamilienhaus |
|---|---|
| Etagenzahl | 1 |
| Wohnfläche ca. | 181 m2 |
| Grundstücksfläche | 670 m2 |
| Bezugsfrei ab | Nach Absprache |
| Zimmer | 6 |
| Garage/Stellplatz | Garage |
| Anzahl Garage/Stellplatz | 2 |
Kosten
| Kaufpreis |
510.000 € |
|---|---|
| Provision |
2,97 % inkl. ges. MwSt. Die Maklercourtage für den Käufer beträgt 2,5 % aus dem Kaufpreis zuzüglich der gesetzlichen MwSt., somit gesamt 2,97 %. |
Finanzierungsrechner:
Kaufpreis:
600.000 €
Eigenkapital:
600.000 €
Monatliche Rate
0 €
Effektiver Jahreszins
0 %
Sollzinsbindung
10 Jahre
Bausubstanz & Energieausweis
| Baujahr | 1974 |
|---|---|
| Letzte Sanierung | 2022 |
| Bauphase | Haus fertig gestellt |
| Objektzustand | Gepflegt |
| Qualität der Austattung | Normal |
| Heizungsart | Zentralheizung |
| Wesentliche Energieträger | Öl |
| Energieausweis | liegt vor |
| Energieausweistyp | Verbrauchsausweis |
| Energieverbrauchskennwert | 134,6 kWh/(m²*a) |
| Energieeffizienzklasse | E |
134,6
kWh/(m²*a)
Energieeffizienzklasse E
- A+
- A
- B
- C
- D
- E
- F
- G
- H
- 0
- 25
- 50
- 75
- 100
- 125
- 150
- 175
- 200
- 225
- >250
Beschreibung des Objekts
Ausstattung
* Korkfußböden im Untergeschoss
* Hochwertige PV-Anlage auf Gebäude und Garagen
* Zwei Garagen mit elektr. Torantrieb im Kaufpreis enthalten
* Verglaster Balkon (als Wintergarten nutzbar)
* Einliegerwohnung (zur Vermietung geeignet)
* Haus-Gasanschluss zur Nutzung vorbereitet
Lage
Das Einfamilienhaus mit Einliegerwohnung befindet sich in Drosendorf einer charmanten Gemeinde im Landkreis Bamberg. Die Umgebung ist geprägt von gepflegten Einfamilienhäusern; ideal für Familien, Paare oder alle, die naturnah wohnen und dennoch gut angebunden sein möchten.
Im Ort befinden sich ein Kindergarten, eine Grundschule und Jugendhaus. Auch eine Gastwirtschaft mit Biergarten ist fußläufig erreichbar. Eine öffentliche Busverbindung sorgt für eine gute Erreichbarkeit der umliegenden Orte. Die Hauptgemeinde Memmelsdorf (OFr.) ist nur wenige Kilometer entfernt und bietet sämtliche Einkaufsmöglichkeiten, Ärzte und weitere Einrichtungen des täglichen Bedarfs. Über die Autobahnen A70 und A73 bestehen zudem schnelle Verbindungen nach Bamberg, Nürnberg und Schweinfurt.
Die Lage vereint somit Ruhe, Wohnqualität und gute Erreichbarkeit; ein attraktiver Standort für Familien und Kapitalanleger gleichermaßen.
Sonstige Angaben
Energieverbrauchsausweis Energiekennwert: 134,60 kWh/(qm*a) Energieeffizienz: Klasse E (kl.160) Heizung: Zentralheizung mit Öl Baujahr laut Energieausweis: 1974
2 x Garage, 1 x Stellplatz außen
Hinweis:
Das Gebäude ist derzeit noch nicht leergeräumt. Vorhandene Einrichtungsgegenstände können nach Absprache mit dem Eigentümer kostenlos übernommen werden. Innenbilder werden auf Anforderung unmittelbar zugesandt.
Haben Sie schon eine geprüfte Finanzierung? Gerne vermitteln wir
Ihnen einen seriösen Finanzierungspartner mit Top-Konditionen.
Sie haben selbst ein oder mehrere Objekte zu verkaufen? Gerne
übernehme ich das für Sie. Sprechen Sie mich hierzu gerne an.
Grundriss
Plan-EG
>
>
Plan-UG
>
>
Plan-DG
>
>
Adresse
96117 Memmelsdorf
Interessante Orte
Preis- und Lageinformationen
Preistrend für Bestandsimmobilien in Memmelsdorf