Dieses im Jahr 2022 erbaute Reiheneckhaus hält einige Überraschungen bereit. Große helle Räume und eine schöne Einliegerwohnung mit separatem Außeneingang. Das Haus kann aber auch komplett genutzt werden, weil das Ober- und Dachgeschoß durch eine Innentreppe verbunden sind. Sie können sofort einziehen!!
- Hochwertige Massivbauweise
- Bodenbeläge: großformatige Fliesen, Laminat
- Fußbodenheizung, Radiatoren in den Schlafräumen
- Kunststofffenster 2-fach verglast
- elektrische Rollläden
- Elektrische Dachfenster mit Rollläden
- PV-Vorbereitung
- Terrasse mit Natursteinen
- 1 Garage, 1 Außenstellplatz
- Großzügiger Wohn-, Ess- und Küchenbereich im EG mit bodentiefen Fenstern
- Direkter Zugang von EG zur Terrasse und in den Garten
- Zwei große Zimmer im OG mit bodentiefen Fenstern
- Master-Bad im OG mit Wanne, bodengleicher Dusche und Doppelwaschtisch
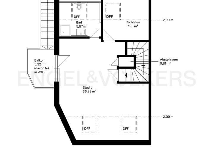
- Einliegerwohnung im DG mit großem Wohn-/ und Essbereich mit Zugang zum Balkon
- Zusätzliches Schlafzimmer und Bad mit bodengleicher Dusche im DG
- Kinderbetreuung, Schulen, Geschäfte, Ärzte und Bahnhof fußläufig erreichbar
Ihr neuer Lieblingsort - Modernes Reiheneckhaus in begehrter Lage
85560 Ebersberg
Die vollständige Adresse der Immobilie erhalten Sie vom Anbieter.
Auf Karte anzeigen
Die vollständige Adresse der Immobilie erhalten Sie vom Anbieter.
Finanzierungszertifikat
In nur zwei Minuten zu Ihrem persönlichen Finanzierungszertifkat.
Infos
| Haustyp | Reiheneckhaus |
|---|---|
| Etagenzahl | 3 |
| Wohnfläche ca. | 163 m2 |
| Nutzfläche | 15 m2 |
| Grundstücksfläche | 341 m2 |
| Zimmer | 4,5 |
| Schlafzimmer | 3 |
| Badezimmer | 2 |
| Garage/Stellplatz | Garage |
| Anzahl Garage/Stellplatz | 1 |
Kosten
| Kaufpreis |
995.000 € |
|---|---|
| Preis für Garage/Stellplatz | 25.000 € |
| Provision |
3.57 % Der Makler-Vertrag mit uns und/oder unserem Beauftragten kommt durch die Beauftragung der Maklertätigkeit in Textform (z.B. E-Mail mit Bestätigung der gewollten Inanspruchnahme) zustande. Die Höhe der Courtage richtet sich.... |
Finanzierungsrechner:
Kaufpreis:
600.000 €
Eigenkapital:
600.000 €
Monatliche Rate
0 €
Effektiver Jahreszins
0 %
Sollzinsbindung
10 Jahre
Bausubstanz & Energieausweis
| Baujahr | 2022 |
|---|---|
| Bauphase | Haus fertig gestellt |
| Objektzustand | Neuwertig |
| Heizungsart | Zentralheizung |
| Wesentliche Energieträger | Gas |
| Energieausweis | liegt vor |
| Energieausweistyp | Bedarfsausweis |
| Energieverbrauchskennwert | 65,1 kWh/(m²*a) |
| Energieeffizienzklasse | B |
65,1
kWh/(m²*a)
Energieeffizienzklasse B
- A+
- A
- B
- C
- D
- E
- F
- G
- H
- 0
- 25
- 50
- 75
- 100
- 125
- 150
- 175
- 200
- 225
- >250
Beschreibung des Objekts
Lage
In wenigen Gehminuten erreicht man den Bahnhof für S-Bahnen und auch das Zentrum. Ebersberg, „Die Perle des Münchner Ostens“- mit seinen ca. 12.210 Einwohnern ist die Kreisstadt des gleichnamigen Landkreises im Regierungsbezirk Oberbayern und liegt direkt südlich des Ebersberger Forstes. Der nördlich von Ebersberg liegende Forst ist eines der größten zusammenhängenden Waldgebiete Süddeutschlands. Ebersberg befindet sich nur rund 30 km östlich der Landeshauptstadt München, die mit der S-Bahn, Regionalbahn und über die B 304 oder die A 94 gut zu erreichen ist Die Stadt liegt 32 km nördlich von Rosenheim, sowie 47 km vom Flughafen München entfernt. Die Infrastruktur ist hervorragend. Die Kreisstadt bietet mit moderner Kreisklinik, verschiedenen Allgemein-/Fachärzten, mehreren Apotheken, Einkaufszentrum und historischer Innenstadt rund um den Marienplatz sämtliche Vorteile des urbanen Lebens. Sie sind schnell in der Natur, die Wege sind kurz, der Alltag weniger hektisch, alles ist ein wenig
entspannter. Es gibt viele Rad- und Wanderwege. Zum Golfspielen laden in der Nähe zwei 18-Loch Golfplätze ein. Das Kulturleben ist vielfältig mit dem “Alten Kino”, dem “Alten Speicher”, dem Klosterbauhof mit Open- Air-Bühne, u.v.m. Für die Kleinen gibt es mehrere Krippen und Kindergärten, Grund- /Mittel- und Realschule sind vor Ort, 2 Gymnasien in den Nachbarorten.
Sonstige Angaben
Der Makler-Vertrag mit uns und/oder unserem Beauftragten kommt durch die Beauftragung der Maklertätigkeit in Textform (z.B. E-Mail mit Bestätigung der gewollten Inanspruchnahme) zustande. Die Höhe der Courtage richtet sich nach den ab dem 23.12.2020 in Kraft getretenen gesetzlichen Regelungen zur Teilung der Maklercourtage. Hiernach wird die Courtage regelmäßig für beide Parteien (Eigentümer und Käufer) jeweils in Höhe von 3 % zuzüglich Umsatzsteuer in jeweils geltender Höhe, derzeit also insgesamt 3,57 % des Kaufpreises einschließlich Umsatzsteuer bei notariellem Vertragsabschluss verdient und fällig. Die Höhe der Bruttocourtage unterliegt einer Anpassung bei Steuersatzänderung. […] Grunderwerbssteuer, Notar- und Gerichtskosten trägt der Käufer. Alle Angaben sind ohne Gewähr und basieren ausschließlich auf Informationen, die uns von unserem Auftraggeber übermittelt wurden. Wir übernehmen keine Gewähr für die Vollständigkeit, Richtigkeit und Aktualität dieser Angaben. Zwischenverkauf bleibt vorbehalten. Sollte das von uns nachgewiesene Objekt bereits bekannt sein, teilen Sie uns dies bitte unverzüglich mit. Die Weitergabe dieses Exposés an Dritte ohne unsere Zustimmung löst gegebenenfalls Courtage- bzw. Schadensersatzansprüche aus. Im Übrigen gelten die beigefügten allgemeinen Geschäftsbedingungen für die Rechtsbeziehung zwischen Ihnen und E&V München-Südost Immobilien GmbH.
Adresse
85560 Ebersberg
Interessante Orte
Preis- und Lageinformationen
Preistrend für Bestandsimmobilien in Ebersberg