Seltene Chance im ursprünglichen Beuerberg
Zum Verkauf kommt hier ein Stück Beuerberger Geschichte. Geplant und erbaut Anfangs der 1950er Jahre, hat das Gebäude viele Jahre als Familiensitz gute Dienste geleistet und könnte einige Beuerberger Geschichten erzählen. Aber Lebenswege ändern sich, Menschen finden Heimat an anderen Orten und so darf dieses Grundstück und mit ihm vielleicht auch das Haus nun wieder einer neuen Familie, einem neuen Zweck dienen und neue Wohnträume realisieren. Das Grundstück lässt auf etwa 897 Quadratmetern so einiges an Wohnwünschen zu, sei es, dass es neu bebaut werden soll oder dass man mit Liebe, Geld und Muskelkraft dem alten Gebäude wieder neues Leben einhauchen will. Das Haus ist von der augenscheinlichen Substanz her in einem durchaus sanierungswerten Zustand. Es wurde - für die damalige Zeit nicht ganz selbstverständlich - recht gut und solide erbaut, auch wenn heute der erste Eindruck das rein optisch nicht vermittelt. Das Erdgeschoss steht seit vielen Jahren leer und wurde nur sporadisch für Besuche genutzt, das Obergeschoss ist seit vielen Jahren an eine nette Seniorin vermietet, die sich nach Kräften um die Liegenschaft kümmert. Ergänzt wird das Wohnhaus von einer freistehenden Doppelgarage.
Gerne zeigen wir Ihnen Haus und Grundstück und unterstützen Sie in Ihren Überlegungen. Wir sind nur einen Anruf entfernt und freuen uns von Ihnen zu hören.
Wunderbares Grundstück in extrem seltener Lage in Beuerberg, mit sanierungsfähigem Altbestand
82547 Eurasburg
Die vollständige Adresse der Immobilie erhalten Sie vom Anbieter.
Auf Karte anzeigen
Die vollständige Adresse der Immobilie erhalten Sie vom Anbieter.
Finanzierungszertifikat
In nur zwei Minuten zu Ihrem persönlichen Finanzierungszertifkat.
Infos
| Vermarktungsart | Kaufen |
|---|---|
| Grundstücksfläche | 897 m2 |
| Verfügbar ab | nach Absprache |
Kosten
| Miete pro Jahr |
825.000 € |
|---|---|
| Provision |
3,57% Käuferprovision (inkl. 19% MwSt.) |
Finanzierungsrechner:
Kaufpreis:
600.000 €
Eigenkapital:
600.000 €
Monatliche Rate
0 €
Effektiver Jahreszins
0 %
Sollzinsbindung
10 Jahre
Beschreibung des Objekts
Lage
Beuerberg ist ein malerischer Ortsteil der Gemeinde Eurasburg im oberbayerischen Landkreis Bad Tölz-Wolfratshausen und liegt eingebettet im Loisachtal, rund 50 Kilometer südlich von München. Die Lage zeichnet sich durch ihre Ruhe, die landschaftliche Schönheit sowie die Nähe zu den Alpen aus – der Ort befindet sich circa fünf Kilometer östlich vom Starnberger See und bietet einen reizvollen Blick auf das bayerische Voralpenland. Die Autobahn A 95 München–Garmisch-Partenkirchen ist nur drei Kilometer entfernt und ermöglicht eine schnelle Anbindung an München und das Oberland.
Das aktive Dorfleben in Beuerberg wird von zahlreichen Vereinen, kleinen Einkaufsmöglichkeiten, Gasthäusern sowie einer historischen Bäckerei und Biometzgerei bereichert. Das etwa 900 Jahre alte Kloster Beuerberg ist sowohl kultureller als auch gesellschaftlicher Mittelpunkt und verleiht dem Ort eine besondere Atmosphäre. Die Freizeitmöglichkeiten sind durch die Nähe zu den Erholungsgebieten rund um den Starnberger See und zahlreiche Wander- und Radwege entlang der Loisach äußerst vielfältig. Überregional bekannt wurde Beuerberg in den 1960er Jahren als Drehort für die berühmten „Lausbubengeschichten“ von Ludwig Thoma:
https://www.toelzer-land.de/a-der-lausbubengeschichten-rundweg#:~:text=In%20den%2060er%2DJahren%20wurde,auf%20dem%20Pfad%20der%20Filmgeschichte.
Die Gemeinde Eurasburg insgesamt bietet eine naturnahe und familienfreundliche Umgebung mit Grundschule und Kindergarten im direkten Umfeld. Mit ca. 4.400 Einwohnern und 52 Ortsteilen verbinden sich hier Tradition, Natur und beste Lebensqualität in unmittelbarer Nähe zur Metropolregion München.
Sonstige Angaben
Hinweise
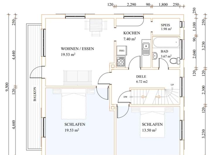
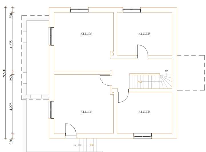
Bitte beachten Sie die Hinweise zu Ihrem Widerrufsrecht und unsere Allgemeinen Geschäftsbedingungen. Da wir Objektangaben nicht selbst ermitteln, übernehmen wir hierfür keine Gewähr. Alle Maßangaben sind unverbindliche Werte bzw. Rohbaumaße aus den Eigentümerplänen oder dessen Angaben. Dieses Exposé ist nur für Sie persönlich bestimmt. Grundrisse und Grafiken sind weder maßhaltig noch verbindlich und dienen lediglich der Veranschaulichung. Sie können eine Besichtigung nicht ersetzen. Eine Weitergabe an Dritte ist an unsere ausdrückliche Zustimmung gebunden und unterbindet nicht unseren Provisionsanspruch bei Zustandekommen eines Vertrags. Alle Gespräche sind über unser Büro zu führen. Bei Zuwiderhandlung behalten wir uns Schadenersatz bis zur Höhe der Provisionsansprüche ausdrücklich vor. Zwischenverkauf ist nicht ausgeschlossen.
FINANZIERUNG benötigt? Sprechen Sie uns darauf an! Mit unserem Netzwerk aus erfahrenen und zuverlässigen, bankenunabhängigen Baufinanzierungsspezialisten helfen wir Ihnen gerne weiter.