Diese charmante Doppelhaushälfte in Wandlitz bietet Ihnen und Ihrer Familie ein behagliches Zuhause mit hoher Wohnqualität in ruhiger und naturnaher Umgebung. Das im Jahr 1999 in massiver Bauweise errichtete Haus befindet sich in einem sehr gepflegten Zustand und überzeugt durch seine durchdachte Raumaufteilung sowie liebevolle Details.
Auf einem rund 579 m² großen Grundstück gelegen, verfügt die Immobilie über eine Wohnfläche von ca. 137 m², verteilt auf drei Etagen. Im Erdgeschoss erwartet Sie ein großzügiger Wohn- und Essbereich mit direktem Zugang zur sonnigen Westterrasse und dem gepflegten Garten – der perfekte Ort zum Entspannen und Wohlfühlen. Die separate, voll ausgestattete Einbauküche sowie ein praktischer Abstellraum ergänzen die Etage. Ein modernes Duschbad mit WC rundet das Erdgeschoss funktional ab.
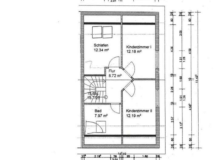
Über eine stilvolle Wendeltreppe gelangen Sie in das 1. Obergeschoss, das drei gut geschnittene Zimmer – ideal als Schlaf-, Kinder- oder Arbeitszimmer – sowie ein helles Tageslichtbad mit Badewanne und WC bietet.
Der ausgebaute Spitzboden mit einer Fläche von rund 21,8 m² schafft zusätzlichen Wohnraum – perfekt als Homeoffice, Gästezimmer oder privater Rückzugsort.
Der nach Westen ausgerichtete Garten lädt mit seiner ruhigen Atmosphäre und gepflegten Bepflanzung zum Verweilen ein. Zwei praktische Gartenschuppen bieten zusätzlichen Stauraum für Geräte, Fahrräder oder saisonales Mobiliar.
Diese Doppelhaushälfte in Wandlitz vereint Wohnkomfort, Funktionalität und Lagequalität – ideal für alle, die ein gepflegtes Zuhause in unmittelbarer Nähe zu Berlin suchen.
---
This semi-detached house in Wandlitz offers a warm and inviting home for families, couples, or anyone seeking a peaceful lifestyle close to nature. Built in 1999 with solid construction, the property is in excellent condition and stands out for its functional layout and well-maintained character.
Situated on a 579 m² plot, the house provides approximately 137 m² of living space spread across three floors. On the ground floor, you’ll find a spacious living and dining area with direct access to the sunny west-facing terrace and the beautifully maintained garden – the perfect place to relax and unwind. A fully equipped separate kitchen, a storage room, and a modern shower bathroom complete this level.
A spiral staircase leads to the first floor, which features three well-proportioned rooms suitable as bedrooms, children’s rooms, or home offices, along with a bright daylight bathroom featuring a bathtub and WC.
The converted attic floor adds around 21.8 m² of extra living space – ideal as a guest room, home office, or private retreat.
Outside, the west-facing garden provides a peaceful oasis to escape everyday life. Two garden sheds at the rear of the property offer ample storage for tools, bicycles, and outdoor equipment.
This semi-detached house for sale in Wandlitz near Berlin perfectly combines comfort, functionality, and an attractive location — an ideal opportunity for those seeking a high-quality home within easy reach of the capital.
Zu verkaufen! 5-Zimmer-Doppelhaus-Hälfte mit viel Potential in Wandlitz!
16348 Wandlitz
Die vollständige Adresse der Immobilie erhalten Sie vom Anbieter.
Auf Karte anzeigen
Die vollständige Adresse der Immobilie erhalten Sie vom Anbieter.
Finanzierungszertifikat
In nur zwei Minuten zu Ihrem persönlichen Finanzierungszertifkat.
Infos
| Haustyp | Doppelhaushaelfte |
|---|---|
| Wohnfläche ca. | 137 m2 |
| Grundstücksfläche | 579 m2 |
| Zimmer | 5 |
| Schlafzimmer | 4 |
| Badezimmer | 2 |
| Garage/Stellplatz | Carport |
Kosten
| Kaufpreis |
489.000 € |
|---|---|
| Provision |
3,57% inkl. gesetzl. MwSt. Hinweis: Bitte beachten Sie, dass dieses Angebot für Sie als Käufer provisionspflichtig ist. Nach Abschluss eines notariellen Kaufvertrages ist eine Provision von 3% zzgl. 19% gesetzlicher Mehrwertsteuer auf den beurkundeten Kaufpreis (entspricht einer Gesamtprovision von 3,57% inkl. 19% gesetzlicher Mehrwertsteuer auf den beurkundeten Kaufpreis) an JN Real Estate (Inhaber Jochen Nipp) zur Zahlung fällig. |
Finanzierungsrechner:
Kaufpreis:
600.000 €
Eigenkapital:
600.000 €
Monatliche Rate
0 €
Effektiver Jahreszins
0 %
Sollzinsbindung
10 Jahre
Bausubstanz & Energieausweis
| Baujahr | 1999 |
|---|---|
| Bauphase | Haus fertig gestellt |
| Objektzustand | Gepflegt |
| Qualität der Austattung | Normal |
| Heizungsart | Fußbodenheizung |
| Wesentliche Energieträger | Gas |
| Energieausweis | liegt vor |
| Energieausweistyp | Verbrauchsausweis |
| Energieverbrauchskennwert | 79,7 kWh/(m²*a) |
| Energieeffizienzklasse | C |
79,7
kWh/(m²*a)
Energieeffizienzklasse C
- A+
- A
- B
- C
- D
- E
- F
- G
- H
- 0
- 25
- 50
- 75
- 100
- 125
- 150
- 175
- 200
- 225
- >250
Beschreibung des Objekts
Ausstattung
Wohnfläche: 137,21 m2
Grundstücksfläche: 579,00 m2
Kaufpreis: 489.000,00 €
Etagenzahl: 3
Status: bezugsfrei/gepflegt
Baujahr: 1999
Zimmer: 5
Schlafzimmer: 4
Einbauküche: ja
Bodenbelag: Laminat/Teppich/Fliesen
Fenster: Holzfenster
Türen: Holztüren
Garten: ja
Terrasse: ja
Keller: nein
Dachboden: ja
Stellplatz: Carport + Außenstellplatz
Heizung: Gas-Heizung
Energieausweis: Verbrauchsausweis
Energiekennwert: 79,67 kWh/ (m².a) inkl. Warmwasser/Heizung
---
Living area: 137.21 m²
Plot size: 579.00 m²
Purchase price: €489,000.00
Number of floors: 3
Condition: Vacant / well-maintained
Year of construction: 1999
Rooms: 5
Bedrooms: 4
Fitted kitchen: Yes
Flooring: Laminate / carpet / tiles
Windows: Wooden windows
Doors: Wooden doors
Garden: Yes
Terrace: Yes
Basement: No
Attic: Yes
Parking: Carport + outdoor parking space
Heating: Gas heating
Energy certificate: Energy consumption certificate
Energy efficiency rating: 79.67 kWh/(m²·a), including hot water and heating
Lage
Diese Doppelhaushälfte in Wandlitz überzeugt durch ihre idyllische und zugleich bestens angebundene Wohnlage vor den Toren Berlins. Das Umfeld ist geprägt von gepflegten Einfamilienhäusern, viel Grün und einer ruhigen Nachbarschaft – ideal für Familien, Paare oder Berufspendler, die ein Haus in Wandlitz kaufen und das Leben im Grünen genießen möchten.
Die Lage der Immobilie verbindet naturnahes Wohnen mit urbaner Erreichbarkeit: Der Bahnhof Wandlitz ist in nur etwa vier Gehminuten erreichbar und bietet eine direkte Anbindung an den S-Bahnhof Berlin-Karow sowie Busverbindungen nach Bernau und in die Umgebung. Für Autofahrer ist die Anbindung an die A114 und A11 besonders attraktiv – so gelangen Sie in rund 30 Minuten bequem in die Berliner Innenstadt.
Auch die Infrastruktur lässt keine Wünsche offen. In unmittelbarer Nähe befinden sich eine Grundschule und ein Gymnasium, mehrere Einkaufsmöglichkeiten, Ärzte, Apotheken und Freizeitangebote. Der beliebte Wandlitzsee und der nahegelegene Liepnitzsee bieten hervorragende Möglichkeiten zum Baden, Spazierengehen oder einfach zum Entspannen in der Natur – ein echtes Plus für alle, die Wert auf Lebensqualität legen.
Die Kombination aus ruhiger Lage, guter Verkehrsanbindung und hoher Wohnqualität macht diese Immobilie in Wandlitz zu einer hervorragenden Wahl für alle, die das Beste aus Stadt- und Landleben verbinden möchten.
---
This semi-detached house in Wandlitz offers the perfect balance between peaceful countryside living and excellent urban connectivity. Nestled in a quiet neighborhood surrounded by well-kept single-family homes and lush greenery, the area provides a relaxed and family-friendly atmosphere — ideal for couples, families with children, or professionals seeking a high-quality residence close to Berlin.
Despite its idyllic setting, the property benefits from an excellent infrastructure. The Wandlitz train station is only about a four-minute walk away, providing direct access to Berlin-Karow S-Bahn station and convenient bus connections to Bernau and other nearby towns. For drivers, the A114 and A11 motorways are just a few minutes away, ensuring quick and easy access to Berlin’s city center in around 30 minutes.
Families will appreciate the proximity to both a primary school and a secondary school, all within walking distance. Several shopping facilities, restaurants, medical services, and recreational activities can also be found nearby. The scenic Wandlitz Lake and Liepnitz Lake invite you to swim, walk, or simply unwind in a tranquil natural environment — offering a real holiday feeling right on your doorstep.
With its combination of a quiet residential atmosphere, excellent transport connections, and high living comfort, this property in Wandlitz represents an outstanding opportunity for those wishing to enjoy the best of both worlds — the calm of nature and the proximity to Berlin.
Sonstige Angaben
BESICHTIGUNG: Für ein persönliches Gespräch und zur individuellen Abstimmung eines Besichtigungstermins stehen wir Ihnen gerne unter 0176 83020410 persönlich zur Verfügung.
---
VIEWING: For a personal conversation and to individually coordinate a viewing appointment, we are available personally on +49 176 83020410.
Adresse
16348 Wandlitz
Interessante Orte
Preis- und Lageinformationen
Preistrend für Bestandsimmobilien in Wandlitz