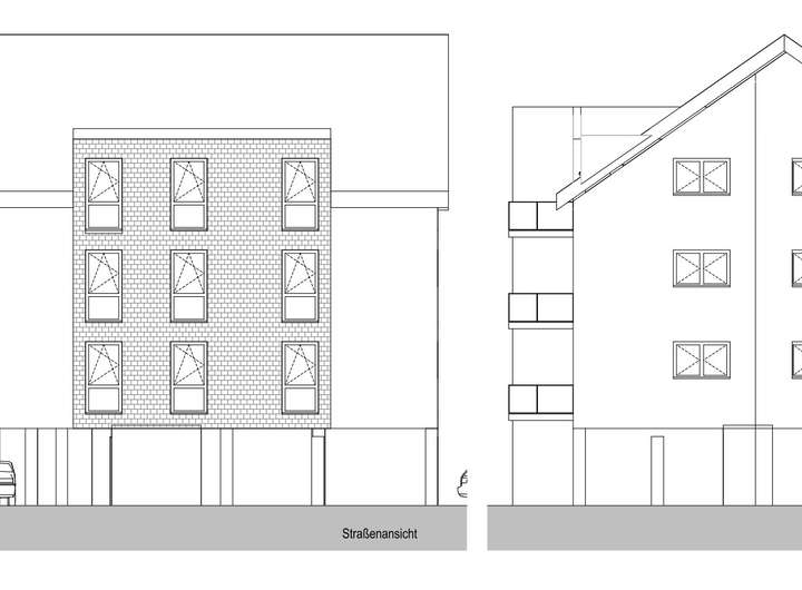
Zum Verkauf steht ein attraktives Baugrundstück in Dortmund-Mengede, für das bereits ein vollständig genehmigter Bauantrag zur Errichtung eines modernen Mehrfamilienhauses vorliegt. Das geplante Gebäude umfasst sechs großzügig geschnittene Wohneinheiten sowie eine Tiefgarage im Erdgeschoss. Die Planung wurde wirtschaftlich und architektonisch durchdacht, sodass ein zügiger und kalkulationssicherer Projektstart möglich ist.
Durch die Kombination aus genehmigter Planung, klarer Struktur und einer hervorragend nachgefragten Lage bietet dieses Projekt ideale Voraussetzungen für alle, die in ein marktfähiges Wohnbauvorhaben investieren oder ein neues Bauprojekt im Bestand aufbauen möchten.
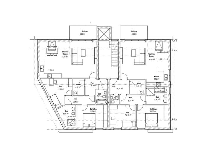
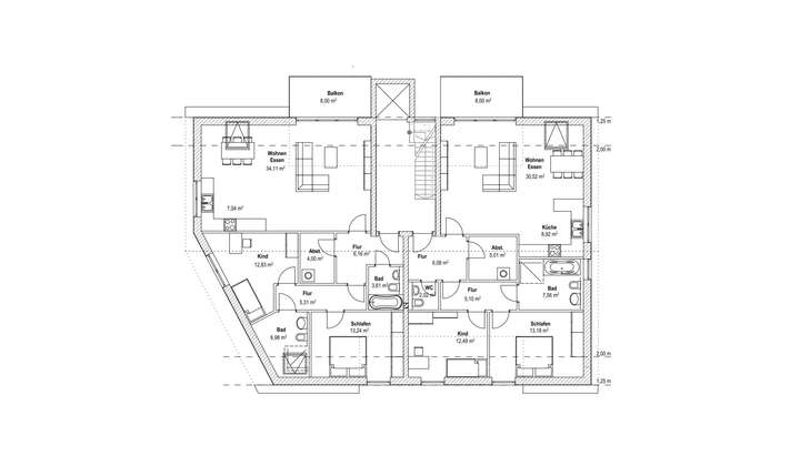
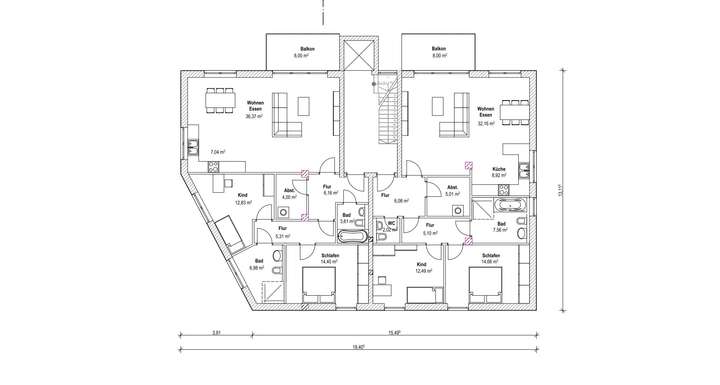
Wohnungsaufteilung & Grundrissstruktur
Die genehmigte Planung sieht sechs moderne Wohneinheiten vor, die jeweils über großzügige Wohnbereiche, helle Raumaufteilungen und gut nutzbare Grundrissstrukturen verfügen. Alle Einheiten sind auf zeitgemäße 3-Zimmer-Konzepte ausgelegt und bieten durch ihre Schnittführung eine hohe Vermietungsattraktivität.
Erdgeschoss / Tiefgarage
Überdachte Tiefgarage mit mehreren PKW-Stellplätzen
Technik- und Funktionsräume
Direkter Zugang zum Treppenhaus
BGF EG/TG: ca. 400 m²
1. Obergeschoss
WE 1: ca. 96,00 m²
WE 2: ca. 98,70 m²
2. Obergeschoss
WE 3: ca. 96,00 m²
WE 4: ca. 98,70 m²
Dachgeschoss
WE 5: ca. 92,88 m²
WE 6: ca. 95,28 m²
Gesamtwohnfläche: 577,56 m²
Ausstattung jeder Einheit:
Großer Wohn-/Essbereich
Küche
Schlafzimmer
Kinder-/Gästezimmer
Bad (teilweise mit zusätzlichem WC)
Abstellraum
Balkon
Funktionale Flure (mit klarer Raumführung)
Dank der einheitlichen Struktur sind Umsetzung und Kostenplanung effizient, während die Wohnungsgrößen optimal auf den lokalen Miet- und Kaufmarkt abgestimmt sind.
Lagevorteile für Investoren und Bauträger
* Stabile Miet- und Kaufpreissituation
* Sehr gute ÖPNV-Anbindung
* Einkaufsmöglichkeiten, Schulen und Nahversorgung im unmittelbaren Umfeld
* Urbanes Umfeld mit hoher Nachfrage nach modernen Mietwohnungen
* Attraktive Rahmenbedingungen für Entwickler und Bestandshalter
Investmentpotenzial
* Einzelvertrieb der Wohnungen (WEG-Aufteilung)
* Langfristige Vermietung und Bestandsaufbau
Projektvorteile
* Genehmigter Bauantrag
* Hohe Flächeneffizienz
* Attraktive Wohnungsgrößen
* Tiefgarage
* Gute Lage in einem stark nachgefragten Wohngebiet
* Flexibilität in der späteren Vermarktung oder Bestandshaltung
Dieses Grundstück mit vollständig genehmigtem Mehrfamilienhaus-Projekt bietet eine seltene Gelegenheit, ein marktfähiges, klar strukturiertes und sofort umsetzbares Bauvorhaben in einer begehrten Lage zu realisieren.
Gerne stellen wir Ihnen sämtliche Planunterlagen, Berechnungen und Visualisierungen zur Verfügung und stehen für Rückfragen oder eine persönliche Projektvorstellung gerne bereit.
Seltene Gelegenheit: Neubauprojekt für 6 Wohneinheiten in gefragter Wohnlage
44359 Dortmund
Die vollständige Adresse der Immobilie erhalten Sie vom Anbieter.
Auf Karte anzeigen
Die vollständige Adresse der Immobilie erhalten Sie vom Anbieter.
Finanzierungszertifikat
In nur zwei Minuten zu Ihrem persönlichen Finanzierungszertifkat.
Infos
| Vermarktungsart | Kaufen |
|---|---|
| Grundstücksfläche | 961 m2 |
| Erschließung | Erschlossen |
| Empfohlene Nutzung | Mehrfamilienhaus |
| Bebaubar nach | wie Nachbarbebauung |
| Verfügbar ab | ab sofort |
Kosten
| Miete pro Jahr |
399.000 € |
|---|---|
| Provision |
5,975 % 5,975 % Käuferprovision inkl. MwSt., verdient und fällig mit Beurkundung des notariellen Kaufvertrages. |
Finanzierungsrechner:
Kaufpreis:
600.000 €
Eigenkapital:
600.000 €
Monatliche Rate
0 €
Effektiver Jahreszins
0 %
Sollzinsbindung
10 Jahre
Beschreibung des Objekts
Lage
Das Grundstück liegt im beliebten Dortmunder Stadtteil Mengede, einem gewachsenen Wohn- und Geschäftsumfeld im Nordwesten der Ruhrmetropole. Der Stadtteil zeichnet sich durch seine gute Balance zwischen urbanem Leben und angenehmer Wohnqualität aus. In unmittelbarer Umgebung finden sich Mehrfamilienhäuser, kleine Fachgeschäfte, Dienstleister sowie gastronomische Angebote, die zur lebendigen Nachbarschaft beitragen.
Für Familien besonders attraktiv: Direkt angrenzend befindet sich eine Grundschule, weitere Bildungseinrichtungen wie Kindergärten und weiterführende Schulen sind ebenfalls schnell erreichbar. Einkaufsmöglichkeiten für den täglichen Bedarf – von Supermärkten bis hin zu kleinen Fachhändlern – liegen in fußläufiger Distanz. Ärzte, Apotheken und weitere Einrichtungen der Nahversorgung runden das Angebot ab.
Die Anbindung an den öffentlichen Nahverkehr ist hervorragend: Bushaltestellen und S-Bahn-Verbindungen sorgen für schnelle Wege ins Dortmunder Zentrum sowie in die umliegenden Städte. Mit dem Auto erreichen Sie in wenigen Minuten die Autobahnen A2 und A45, wodurch auch Pendler und Gewerbetreibende von der Lage profitieren.
Insgesamt bietet die Umgebung eine ideale Kombination aus zentraler Infrastruktur, urbanem Flair und guter Erreichbarkeit – ein Standort, der sowohl für Wohnprojekte als auch für gewerbliche Nutzung ein überzeugendes Entwicklungspotenzial bereithält.
Sonstige Angaben
GELDWÄSCHE:
Als Immobilienmaklerunternehmen ist die Main Immobilien Compass nach § 2 Abs. 1 Nr. 14 und § 11 Abs. 1, 2 Geldwäschegesetz (GwG) dazu verpflichtet, bei der Begründung einer Geschäftsbeziehung die Identität des Vertragspartners festzustellen und zu überprüfen, bzw. sobald ein ernsthaftes Interesse an der Durchführung des Immobilienkaufvertrages besteht. Hierzu ist es erforderlich, dass wir nach § 11 Abs. 4 GwG die relevanten Daten Ihres Personalausweises festhalten (wenn Sie als natürliche Person handeln) – beispielsweise mittels einer Kopie. Bei einer juristischen Person benötigen wir eine Kopie des Handelsregisterauszugs, aus welchem der wirtschaftlich Berechtigte hervorgeht. Das Geldwäschegesetz sieht vor, dass der Makler die Kopien bzw. Unterlagen fünf Jahre aufbewahren muss. Als unser Vertragspartner haben Sie auch eine Mitwirkungspflicht nach § 11 Abs. 6 GwG.
HAFTUNG: Wir weisen darauf hin, dass die von uns weitergegebenen Objektinformationen, Unterlagen, Pläne etc. vom Verkäufer bzw. Vermieter stammen. Eine Haftung für die Richtigkeit oder Vollständigkeit der Angaben übernehmen wir daher nicht. Es obliegt daher unseren Kunden, die darin enthaltenen Objektinformationen und Angaben auf ihre Richtigkeit hin zu überprüfen.
Grundriss
GR_1u2OG
>
>
GR_DG
>
>