Dieses großzügige Einfamilienhaus mit einer Wohnfläche von ca. 198 m² vereint modernen Wohnkomfort mit einer behaglichen, familienfreundlichen Atmosphäre. Der hinter dem Haus liegende Garten, mit Süd-Ost-Ausrichtung bietet dabei den idealen Rückzugsort für entspannte Stunden im Freien. Zwei Garagen und einem Stellplatz direkt vor dem Haus sorgen für höchsten Komfort im Alltag.
Schon beim Betreten des Hauses empfängt Sie ein lichtdurchfluteter, geräumiger Eingangsbereich, der den Blick direkt in den Garten lenkt und ein Gefühl von Offenheit und Zuhause vermittelt.
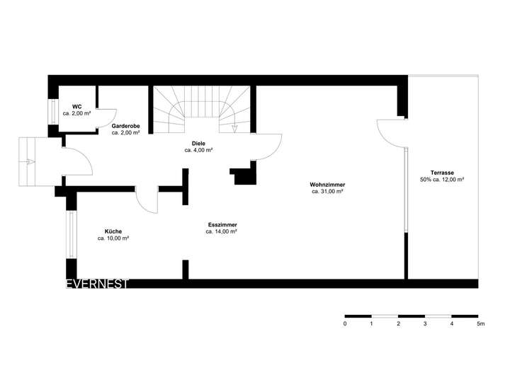
Im Erdgeschoss erwarten Sie eine großzügige Wohnlandschaft mit Küche, Ess- und Wohnzimmer in offenem Grundriss. Diese harmonische Raumgestaltung schafft ein warmes, einladendes Ambiente – perfekt für gemeinsame Stunden mit Familie und Freunden.
Die voll ausgestattete Küche ist dabei der ideale Ort für kulinarische Kreativität und gemütliches Familienleben und bietet alles, was man sich wünschen kann, um jeden Morgen gemeinsam in den Tag zu starten.
Ein Gäste-WC im Eingangsbereich rundet das Erdgeschoss ideal ab und unterstreicht die gastfreundliche Gestaltung des Hauses.
Im ersten Obergeschoss befindet sich das Elternschlafzimmer mit begehbarem Kleiderschrank sowie das erste von insgesamt drei potenziellen Kinderzimmern. Das großzügige Badezimmer ist sowohl mit einer Badewanne als auch mit einer Dusche ausgestattet – ein Ort zum Entspannen und Wohlfühlen.
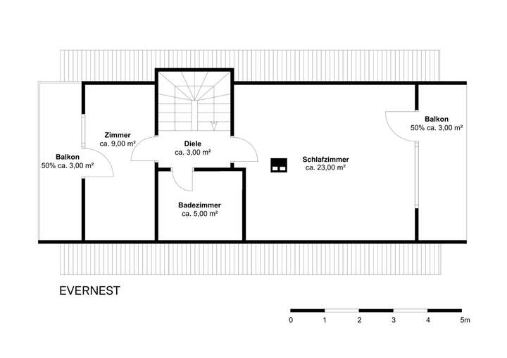
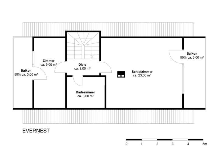
Im zweiten Obergeschoss befinden sich zwei weitere Zimmer sowie ein zusätzliches Badezimmer – ideal als Kinder-, Jugend- oder Arbeitszimmer.
Fast alle Räume verfügen über einen Balkon, der zu kleinen Auszeiten an der frischen Luft einlädt
Im Kellergeschoss befindet sich ein weiteres Highlight des Hauses: eine Sauna, die zum Abschalten und Erholen einlädt. Hier lässt sich wunderbar dem Alltagsstress entfliehen.
Dieses Haus bietet auf allen Ebenen durchdachte Raumkonzepte, hochwertige Ausstattung und viel Platz – ideal für Familien, die Komfort, Privatsphäre und Lebensqualität schätzen.
Überzeugen Sie sich selbst und vereinbaren Sie noch heute Ihren persönlichen Besichtigungstermin.
Ihr Familienparadies mit Garten im Speckgürtel von Köln
50226 Frechen
Die vollständige Adresse der Immobilie erhalten Sie vom Anbieter.
Auf Karte anzeigen
Die vollständige Adresse der Immobilie erhalten Sie vom Anbieter.
Finanzierungszertifikat
In nur zwei Minuten zu Ihrem persönlichen Finanzierungszertifkat.
Infos
| Haustyp | Reiheneckhaus |
|---|---|
| Etagenzahl | 2 |
| Wohnfläche ca. | 198 m2 |
| Grundstücksfläche | 360 m2 |
| Zimmer | 6 |
| Badezimmer | 2 |
| Anzahl Garage/Stellplatz | 3 |
Kosten
| Kaufpreis |
835.000 € |
|---|---|
| Provision |
3.57 % inkl. MwSt. Bei Abschluss eines notariellen Kaufvertrages ist eine Käuferprovision vom Käufer in Höhe von 3.57 % inkl. MwSt. aus dem Kaufpreis fällig. |
Finanzierungsrechner:
Kaufpreis:
600.000 €
Eigenkapital:
600.000 €
Monatliche Rate
0 €
Effektiver Jahreszins
0 %
Sollzinsbindung
10 Jahre
Bausubstanz & Energieausweis
| Baujahr | 1981 |
|---|---|
| Objektzustand | Gepflegt |
| Qualität der Austattung | Normal |
| Wesentliche Energieträger | Öl |
| Energieausweis | liegt vor |
| Energieausweistyp | Verbrauchsausweis |
| Energieverbrauchskennwert | 284,3 kWh/(m²*a) |
| Energieeffizienzklasse | H |
284,3
kWh/(m²*a)
Energieeffizienzklasse H
- A+
- A
- B
- C
- D
- E
- F
- G
- H
- 0
- 25
- 50
- 75
- 100
- 125
- 150
- 175
- 200
- 225
- >250
Beschreibung des Objekts
Ausstattung
Sauna
Garten
Terrassen
2 Bäder
Badewanne
Gäste WC
Einbaukücke
Markengeräte
2 Garagen
1 Stellplatz
Lage
Das Haus liegt in Frechen-Königsdorf, einem ruhigen und familienfreundlichen Stadtteil. Einkaufsmöglichkeiten, Schulen, Kindergärten und Freizeitangebote sind schnell und auch zu Fuß erreichbar. Die Anbindung an die A4 sowie öffentliche Verkehrsmittel gewährleisten eine bequeme Erreichbarkeit von Köln und Umgebung.
Die Nachbarschaft ist geprägt von gepflegten Einfamilienhäusern und grünen Grundstücken – ideal für ein entspanntes Wohnen in stadtnaher Lage.
Grundriss
Erdgeschoss
>
>
1.Obergeschoss
>
>
Dachgeschoss
>
>
Kellergeschoss
>
>
Adresse
50226 Frechen
Interessante Orte
Preis- und Lageinformationen
Preistrend für Bestandsimmobilien in Frechen