Dieses Zuhause überzeugt durch klare Architektur, durchdachte Raumlösungen und ein Wohnkonzept, das Stil und Funktionalität perfekt vereint. Mit rund 160 m² Wohnfläche bietet es Großzügigkeit auf allen Ebenen - und wirkt dank der mittig integrierten, geraden Treppe 🌀 noch offener und weitläufiger.
Im Erdgeschoss entsteht durch die strukturierte Grundrissgestaltung ein Höchstmaß an Komfort und Alltagstauglichkeit. Der offene Wohn- und Essbereich 🍽️ mit angrenzender Küche bildet das Herzstück des Hauses. Große bodentiefe Fensterflächen 🪟 fluten die Räume mit Tageslicht und öffnen den Blick nach draußen 🌿 - hier verschmelzen Innen- und Außenbereich zu einem harmonischen Ganzen.
Das einladende Entree mit großzügiger Diele heißt Bewohner und Gäste gleichermaßen willkommen und zeigt bereits beim Eintreten, was dieses Zuhause ausmacht: Helligkeit, Offenheit und Stil.
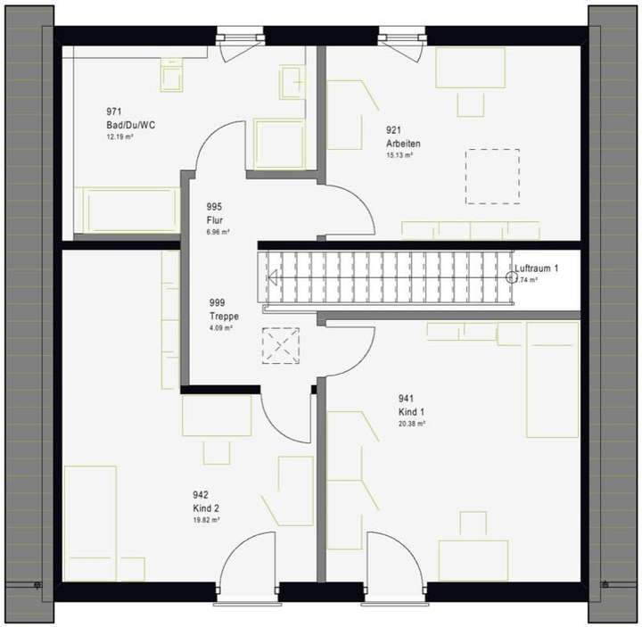
Unter dem modernen Pultdach 🏠 gruppieren sich im Obergeschoss Arbeits-, Kinder- und Badezimmer 🛁 harmonisch um den zentralen Treppenaufgang - durchdacht, funktional und mit Liebe zum Detail geplant.
👉 Ein Zuhause, das mit Klarheit, Raumgefühl und modernem Design überzeugt - perfekt für Familien, die Wert auf Qualität und Atmosphäre legen. 💫
🏡 Klare Linien & optimale Raumplanung ✨
04626 Schmölln
Die vollständige Adresse der Immobilie erhalten Sie vom Anbieter.
Auf Karte anzeigen
Die vollständige Adresse der Immobilie erhalten Sie vom Anbieter.
Finanzierungszertifikat
In nur zwei Minuten zu Ihrem persönlichen Finanzierungszertifkat.
Infos
| Haustyp | Einfamilienhaus |
|---|---|
| Etagenzahl | 2 |
| Wohnfläche ca. | 149 m2 |
| Nutzfläche | 149 m2 |
| Grundstücksfläche | 700 m2 |
| Zimmer | 5 |
| Schlafzimmer | 1 |
| Badezimmer | 1 |
Kosten
| Kaufpreis |
287.039 € |
|---|
Finanzierungsrechner:
Kaufpreis:
600.000 €
Eigenkapital:
600.000 €
Monatliche Rate
0 €
Effektiver Jahreszins
0 %
Sollzinsbindung
10 Jahre
Bausubstanz & Energieausweis
| Baujahr | unbekannt |
|---|---|
| Bauphase | Haus in Planung (projektiert) |
| Objektzustand | Erstbezug |
| Qualität der Austattung | Gehoben |
| Heizungsart | Wärmepumpe |
Beschreibung des Objekts
Ausstattung
Sie können dieses Haus als reines AUSBAUHAUS zum "selbst ausbauen" oder als "bezugsfertig" erwerben. Ich erstelle Ihnen ein detailliertes und individuelles Angebot, bei dem ich Ihre persönlichen Wünsche berücksichtige und auf eine faire und realistische Kalkulation achte. Zu einer ausführlichen Beratung nehme ich mir sehr gern Zeit für Sie!
Folgendes ist in diesem Angebot (Ihr technikfertiges Haus) bereits enthalten:
- modernes Niedrigenergie-Ausbauhaus
- 3-fach verglaste Wärmeschutzfenster (weiß)
- Aluminium-Rollläden
- FREIRAUM-Deckenhöhe 2,75m
- modernes Haustürelement (weiß)
- mineralischer Struktur-Außenputz (weiß)
- Dacheindeckung in versch. Farben zur Auswahl
- Bodenplatte (mit Baugrunduntersuchung und Bodengutachten)
- Baukran und Baugerüst
- Luft-Wasser Wärmepumpe inkl. Fußbodenheizung und Montage
- integrierte Be- und Entlüftungsanlage
- Holztreppe
- Elektroinstallation im Haus
- Sanitär-Rohinstallation
- Dämm- und Beplankungsmaterial (inkl. Bodentreppe)
- Architektenleistung (Genehmigungsplanung und Bauantrag)
- Versicherungspaket (für 1 Jahr)
zzgl. Grundstückskaufpreis, sollten Sie noch kein Grundstück besitzen, Sonderwünsche, Restausbau und Baunebenkosten:
Restausbau:
- Materialien für den Innenausbau (Böden, Türen, Fliesen, Sanitärobjekte usw.)
- Innen-Ausbau (Trockenbau, Malerarbeiten, Fliesen- und Fußböden usw.)
Baunebenkosten:
- Baustelleneinrichtung
- Hausanschlusskosten
- Erdarbeiten
- Außenanlage
Sonstige Angaben
Ihr kompetenter Ansprechpartner für Ihr Traumhaus
Sie suchen nach einem zuverlässigen Partner für den Bau oder die Planung Ihres Traumhauses? Dann sind Sie bei mir genau richtig!
Als erfahrener Ansprechpartner begleite ich Sie von der ersten Idee bis zur Fertigstellung - individuell, persönlich und kompetent.
Mit mir bauen Sie nicht einfach ein Haus - Sie verwirklichen Ihr einzigartiges Traumhaus, das perfekt zu Ihren Wünschen, Ihrem Lebensstil und Ihrem Budget passt. Ob moderne Architektur, klassischer Stil oder maßgeschneiderte Sonderlösungen: Ich unterstütze Sie dabei, Ihre Wohnträume Realität werden zu lassen.
Ihre Vorteile auf einen Blick:
Persönliche Beratung und individuelle Planung
Fachliche Kompetenz und langjährige Erfahrung
Verlässliche Begleitung von der Idee bis zum Einzug
Maßgeschneiderte Lösungen für Ihr Traumhaus
Bauen Sie mit mir Ihr individuelles Traumhaus - Schritt für Schritt, professionell und stressfrei.
Kontaktieren Sie mich jetzt für ein unverbindliches Gespräch und starten Sie den Weg in Ihr neues Zuhause!
Grundriss
Erdgeschoss
>
>
Obergeschoss
>
>
Adresse
04626 Schmölln
Interessante Orte
Preis- und Lageinformationen
Preistrend für Bestandsimmobilien in Schmölln