Diese außergewöhnliche Maisonette vereint Großzügigkeit, Licht und Wohnkomfort auf besondere Weise. Hohe Decken, große Fensterflächen und eine offene Galerie schaffen ein helles, luftiges Ambiente mit modernem Loft-Charakter.
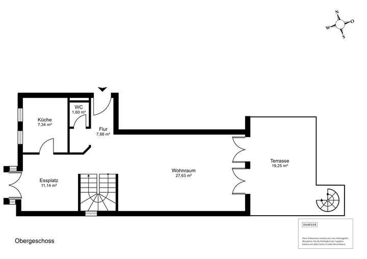
Der Essbereich mit bodentiefen Fenstern und Blick ins Grüne grenzt direkt an die separate Küche – ideal für Familien und Genießer. Das weitläufige Wohnzimmer öffnet sich zur sonnigen Dachterrasse in Südost-Ausrichtung. Über eine charmante Wendeltreppe gelangt man in den privaten Garten mit direktem Zugang zur idyllischen Würm – ein echtes Unikat.
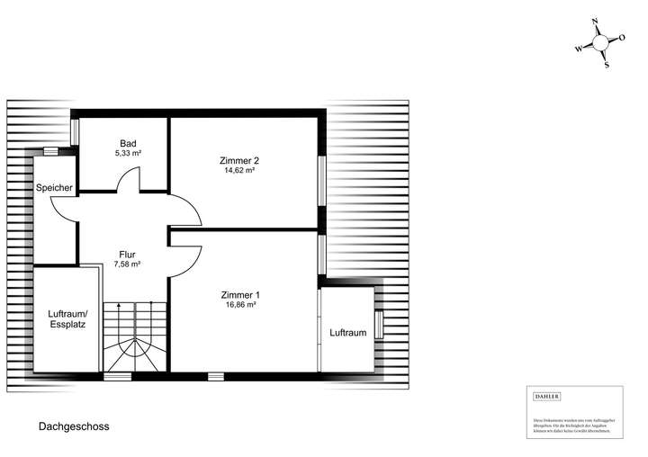
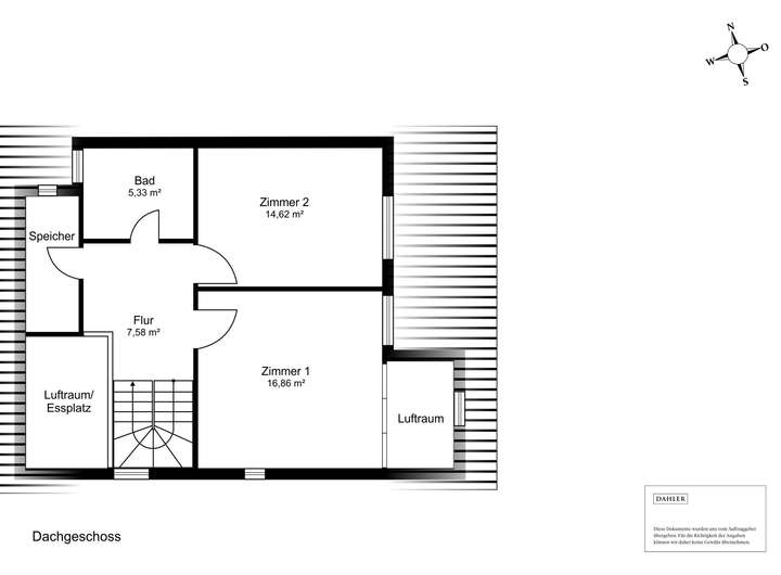
Zwei Schlafzimmer, ein helles Tageslichtbad mit Wanne, ein vielseitig nutzbarer Abstellraum sowie komfortable Stellplätze (Tiefgarage und Außen) runden das Angebot ab.
Eine Maisonette mit Charakter – ruhig gelegen, lichtdurchflutet und mit einem ganz besonderen Bezug zur Natur.
Wohnen mit Freiraum – Maisonette an der Würm mit Garten & viel Licht
82131 Gauting
Die vollständige Adresse der Immobilie erhalten Sie vom Anbieter.
Auf Karte anzeigen
Die vollständige Adresse der Immobilie erhalten Sie vom Anbieter.
Finanzierungszertifikat
In nur zwei Minuten zu Ihrem persönlichen Finanzierungszertifkat.
Infos
| Wohnungskategorie | Maisonette |
|---|---|
| Etage | 2 von 2 |
| Wohnfläche ca. | 111 m2 |
| Nutzfläche | 8,4 m2 |
| Zimmer | 4 |
| Badezimmer | 1 |
| Garage/Stellplatz | Tiefgarage |
| Anzahl Garage/Stellplatz | 1 |
Kosten
| Kaufpreis |
695.000 € |
|---|---|
| Hausgeld |
565 € |
| Provision |
2,5 % inkl. der gesetzl. MwSt., bezogen auf den Kaufpreis |
Finanzierungsrechner:
Kaufpreis:
600.000 €
Eigenkapital:
600.000 €
Monatliche Rate
0 €
Effektiver Jahreszins
0 %
Sollzinsbindung
10 Jahre
Bausubstanz & Energieausweis
| Baujahr | 1981 |
|---|---|
| Heizungsart | Zentralheizung |
| Wesentliche Energieträger | Erdgas leicht |
| Energieausweis | liegt vor |
| Energieausweistyp | Verbrauchsausweis |
| Energieverbrauchskennwert | 137,0 kWh/(m²*a) |
| Energieeffizienzklasse | E |
137,0
kWh/(m²*a)
Energieeffizienzklasse E
- A+
- A
- B
- C
- D
- E
- F
- G
- H
- 0
- 25
- 50
- 75
- 100
- 125
- 150
- 175
- 200
- 225
- >250
Beschreibung des Objekts
Ausstattung
Die Maisonette überzeugt mit Licht, Atmosphäre und durchdachter Architektur. Großflächige Fenster, charmante Lichtöffnungen und eine offene Galerie schaffen ein außergewöhnlich helles, großzügiges Wohngefühl.
Die separate, U-förmige Küche ist ideal angebunden an den Essbereich – perfekt für gemeinsames Kochen und gesellige Abende. Helle Bodenbeläge verleihen den Räumen eine freundliche, einladende Note.
Praktische Details wie ein Abstellraum mit Tageslicht, zusätzlicher Stauraum unter der Treppe und ein eigener Kellerraum sorgen für hohen Alltagskomfort. Eine moderne Freisprechanlage sowie Tiefgaragen- und Außenstellplätze runden das Angebot ab.
Lage
auting vereint das Beste aus zwei Welten – naturnahes Wohnen im Grünen und die Nähe zur Münchner City. Nur wenige Gehminuten zur S-Bahn, kurze Wege zu Einkauf, Schulen und Freizeit, und der Starnberger See liegt fast vor der Haustür. Ein idealer Ort für alle, die Lebensqualität und Ruhe schätzen.
Grundriss
Obergeschoss
>
>
Dachgeschoss
>
>
Adresse
82131 Gauting
Interessante Orte
Preis- und Lageinformationen
Preistrend für Bestandsimmobilien in Gauting