Dieses reizvolle Reiheneckhaus im malerischen Dillinger Stadtteil Hausen präsentiert sich als harmonisches Zusammenspiel aus Wohnkomfort und einer ruhigen, naturnahen Umgebung. Mit einer Wohnfläche von rund 129 m² auf einem ca. 291 m² großen Grundstück bietet das Haus genug Raum, um sich zu entfalten und ein beständiges Zuhause zu schaffen.
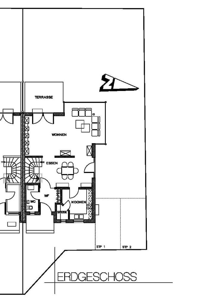
Bereits im Erdgeschoss empfängt Sie ein Eingangsbereich, von dem aus alle Wohnräume bequem erreichbar sind. Ein praktisches Gäste-WC sorgt hier für zusätzlichen Komfort im Alltag. Die Küche ist angenehm dimensioniert und verfügt über eine angrenzende Speisekammer, in der Vorräte und Küchenutensilien ordentlich verstaut werden können – ein Detail, das für spürbare Ordnung und kurze Wege sorgt. Besonders schön gestaltet ist der offene Wohn- und Essbereich, der durch seine klare Raumaufteilung sowohl kommunikative als auch ruhige Wohnzonen ermöglicht. Während der Essbereich ideal zum geselligen Beisammensein geeignet ist, bietet der Wohnbereich Raum für Entspannung und gemütliche Stunden. Große Fensterflächen lassen viel Licht herein und schaffen eine warme, wohnliche Atmosphäre. Von hier aus gelangen Sie zudem direkt über die Terrasse in den Garten, wo sich der Alltag in der schönen Jahreszeit fast wie von selbst nach draußen verlagert.
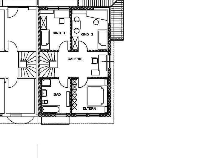
Im Obergeschoss erwarten Sie drei gut geschnittene Schlafzimmer, die flexibel genutzt werden können – ob als Kinderzimmer, Schlafraum, Gästezimmer oder Homeoffice. Die Räume bieten viel Helligkeit und vermitteln ein harmonisches Wohngefühl. Ergänzt wird diese Ebene durch ein Tageslichtbad, das mit einer Badewanne für entspannte Momente sowie einer separaten Dusche für den schnellen Start in den Tag ausgestattet ist.
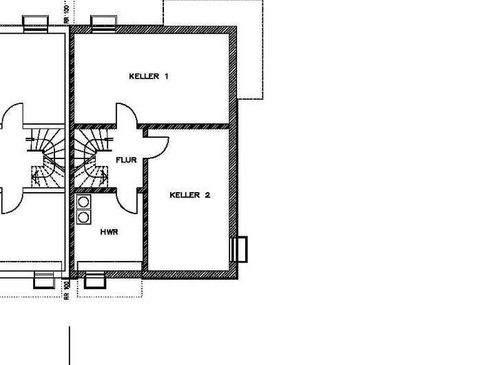
Ein weiteres Plus ist der Keller, der vielfältige Nutzungs- und Abstellmöglichkeiten bereithält. Ob Hobbyraum, Vorratsfläche oder Werkstatt – hier findet sich zusätzlicher Platz für individuelle Ideen.
Die Immobilie wird zurzeit vermietet, was sie zugleich zu einer attraktiven Kapitalanlage macht.
Wer also ein Zuhause sucht, das Ruhe, Wohnqualität und ein gepflegtes Umfeld miteinander verbindet oder nach einer wertstabilen Investition Ausschau hält, findet in diesem Reiheneckhaus im Dillinger Stadtteil Hausen gelegen ein rundum überzeugende Chance.
Zentrales Wohnen in einer ruhigen Umgebung
89407 Dillingen an der Donau
Die vollständige Adresse der Immobilie erhalten Sie vom Anbieter.
Auf Karte anzeigen
Die vollständige Adresse der Immobilie erhalten Sie vom Anbieter.
Finanzierungszertifikat
In nur zwei Minuten zu Ihrem persönlichen Finanzierungszertifkat.
Infos
| Haustyp | Reiheneckhaus |
|---|---|
| Wohnfläche ca. | 128 m2 |
| Grundstücksfläche | 291 m2 |
| Zimmer | 4 |
| Schlafzimmer | 3 |
| Badezimmer | 1 |
Kosten
| Kaufpreis |
410.000 € |
|---|---|
| Provision |
2,5 % inkl. ges. MwSt. Die Käuferprovision beträgt 2,50 % inkl. MwSt. vom Kaufpreis. Die Käuferprovision ist verdient und fällig mit notarieller Beurkundung. Die Immobilienabteilung der VR-Bank Donau-Mindel eG hat einen provisionspflichtigen Maklervertrag in gleicher Höhe mit dem Verkäufer abgeschlossen. |
Finanzierungsrechner:
Kaufpreis:
600.000 €
Eigenkapital:
600.000 €
Monatliche Rate
0 €
Effektiver Jahreszins
0 %
Sollzinsbindung
10 Jahre
Bausubstanz & Energieausweis
| Baujahr | 1997 |
|---|---|
| Bauphase | Haus fertig gestellt |
| Objektzustand | Gepflegt |
| Heizungsart | Zentralheizung |
| Wesentliche Energieträger | Gas |
| Energieausweis | liegt vor |
| Energieausweistyp | Verbrauchsausweis |
| Energieverbrauchskennwert | 74,6 kWh/(m²*a) |
| Energieeffizienzklasse | B |
74,6
kWh/(m²*a)
Energieeffizienzklasse B
- A+
- A
- B
- C
- D
- E
- F
- G
- H
- 0
- 25
- 50
- 75
- 100
- 125
- 150
- 175
- 200
- 225
- >250
Beschreibung des Objekts
Ausstattung
Folgende Renovierungen und Modernisierungen wurden in den letzten Jahren durchgeführt:
• 2025: Gartenhaus renoviert
• 2024: Erneuerung Gastherme mit Warmwasserspeicher
• 2024: Erneuerung Kamin
• 2022: Erneuerung Terrasse
• 2011: Fassadenanstrich
Lage
Dillingen an der Donau, eine charmante Stadt im Herzen Schwabens, bietet die ideale Umgebung für Familien, die Wert auf Bildung und Freizeit legen. Die Immobilie liegt etwa 2,0 km westlich vom Stadtzentrum, in dem Stadtteil Hausen, und bietet somit eine angenehme Balance zwischen Ruhe und Nähe zu wichtigen Einrichtungen. In der Nähe finden Sie eine Vielzahl an Einkaufsmöglichkeiten, wie Supermärkte, Bäckereien und Drogeriemärkte, sowie verschiedene Bildungs- und Gesundheitseinrichtungen. Darüber hinaus bietet der Ort eine gute Verkehrsanbindung mit Bushaltestellen in unmittelbarer Nähe und einer Zugstation etwa 2,3 km entfernt. In der Umgebung finden Sie zudem zahlreiche Freizeit- und Naherholungsmöglichkeiten, wie Parks, Fitnessstudios, Restaurants und kulturelle Einrichtungen.
Sonstige Angaben
Alle Angaben in den Exposés sind ohne Gewähr und basieren ausschließlich auf Informationen, die uns von unserem jeweiligen Auftraggeber übermittelt wurden.
Wir übernehmen keine Gewähr für die Vollständigkeit, Richtigkeit und Aktualität dieser Angaben.
Weitere Dokumente
EnergieausweisGrundriss
Grundriss EG
>
>
Grundriss OG
>
>
Grundriss KG
>
>
Adresse
89407 Dillingen an der Donau
Interessante Orte
Preis- und Lageinformationen
Preistrend für Bestandsimmobilien in Dillingen an der Donau