Dieser historische Vierseitenhof aus ca. 1880 bietet ein außergewöhnliches Ensemble mit authentischem ländlichem Charakter und hervorragendem Entwicklungspotenzial.
Auf einer beeindruckenden Grundstücksfläche von rund 6.900 m² vereinen sich Wohnhaus, Nebengebäude, Scheunen und weitläufige Außenbereiche zu einem vielseitig nutzbaren Hof, der sowohl für private als auch gewerbliche oder landwirtschaftliche Konzepte ideal geeignet ist.
Das charmante Haupthaus verfügt über eine Wohnfläche von etwa 100 m², verteilt auf 5 Zimmer, und ist damit perfekt für kleine Familien oder Paare, die großzügiges Wohnen mit historischem Ambiente verbinden möchten. Die Immobilie wurde im Laufe der Zeit immer wieder modernisiert, so wurde die Gas-Brennwertheizung vor ca. 15 Jahren erneuert, was eine solide und effiziente Wärmeversorgung gewährleistet. Das Gebäude ist teilunterkellert und bietet somit praktischen Stauraum sowie weitere Nutzungsmöglichkeiten.
Ein besonderes Highlight des Hofes ist das Nebengebäude auf der linken Seite, das sich hervorragend für den Ausbau zu einem Büro, Atelier oder Gästehaus eignet. Mit etwas gestalterischer Kreativität kann hier ein zusätzlicher Wohn- oder Arbeitsbereich entstehen, ideal für Wohnen und Arbeiten an einem Ort.
Die groß dimensionierte Scheune beeindruckt mit ihren weit geöffneten, hohen Toren und bietet reichlich Platz für Fahrzeuge aller Art, landwirtschaftliche Geräte oder auch für Hobbywerkstätten, Lagerflächen oder Tierhaltung. Die solide Bausubstanz und die enorme Raumhöhe eröffnen vielfältige Umnutzungsmöglichkeiten.
Zur rechten Hand finden Sie die alten Stallungen und kleine Räumlichkeiten, die perfekt als Aufbewahrungsort für Mülltonnen oder Sonstiges dienen.
Hinter dem geschlossenen Vierseitenhof erstreckt sich eine riesige Freifläche, die dem Anwesen eine außergewöhnliche Großzügigkeit verleiht. Von hier aus genießt man einen weiten Fernblick über die umliegende Landschaft, perfekt für Tierhaltung, Gartenbau, Erholung oder den Ausbau weiterer Nutzungskonzepte.
Die Fläche schafft zudem eine natürliche Privatsphäre, die dem gesamten Hof eine einzigartige, abgeschlossene Atmosphäre verschafft.
Insgesamt präsentiert sich dieser Vierseitenhof als seltenes Gesamtensemble mit historischem Charme, solider Grundsubstanz und hervorragenden Perspektiven. Ob als repräsentativer Wohnsitz, landwirtschaftlicher Betrieb, Ort für Selbstversorger oder als Projekt für kreative Köpfe, dieses Objekt bietet Raum für Visionen und individuelle Gestaltungsmöglichkeiten.
Historischer 4-Seitenhof | Bauernhof in ruhiger Lage
14974 Ludwigsfelde
Die vollständige Adresse der Immobilie erhalten Sie vom Anbieter.
Auf Karte anzeigen
Die vollständige Adresse der Immobilie erhalten Sie vom Anbieter.
Finanzierungszertifikat
In nur zwei Minuten zu Ihrem persönlichen Finanzierungszertifkat.
Infos
| Haustyp | Bauernhaus |
|---|---|
| Etagenzahl | 2 |
| Wohnfläche ca. | 115 m2 |
| Grundstücksfläche | 6.854 m2 |
| Zimmer | 5 |
| Schlafzimmer | 4 |
| Badezimmer | 1 |
| Garage/Stellplatz | Garage |
| Anzahl Garage/Stellplatz | 8 |
Kosten
| Kaufpreis |
599.000 € |
|---|---|
| Provision |
3,57 % Bei Abschluss eines notariellen Kaufvertrages wird eine vom Käufer an du Chesne Immobilien Group zu entrichtende Provision in Höhe von 3,57% des tatsächlichen Kaufpreises inkl. Gesetzlicher MwSt. |
Finanzierungsrechner:
Kaufpreis:
600.000 €
Eigenkapital:
600.000 €
Monatliche Rate
0 €
Effektiver Jahreszins
0 %
Sollzinsbindung
10 Jahre
Bausubstanz & Energieausweis
| Baujahr | 1880 |
|---|---|
| Objektzustand | Gepflegt |
| Heizungsart | Gas-Heizung |
| Wesentliche Energieträger | Gas |
| Energieausweis | liegt zur Besichtigung vor |
Beschreibung des Objekts
Lage
Der Bauernhof liegt im ruhigen, ländlichen Ortsteil Kerzendorf bei Ludwigsfelde und bietet eine idyllische Dorflage mit guter regionaler Anbindung.
Über die K 7241 erreicht man schnell das Zentrum von Ludwigsfelde sowie die umliegenden Ortsteile, auch größere Fahrzeuge können problemlos an- und abfahren.
Kerzendorf ist durch die Buslinien 701 und 709 gut an den öffentlichen Nahverkehr angebunden. Vom Bahnhof Ludwigsfelde bestehen zudem Regionalzugverbindungen nach Berlin, Potsdam und in die Region; ergänzend stehen Mobilstationen mit Sharing-Angeboten zur Verfügung.
Einkaufsmöglichkeiten und Versorgungseinrichtungen befinden sich im nahegelegenen Ludwigsfelde und decken den täglichen Bedarf bequem ab.
Sonstige Angaben
Bei Rückfragen oder dem Wunsch einer Besichtigung, gerne auch am Wochenende, erreichen Sie mich unter 0172 3272 272 oder per Mail: rn@du-chesne.de.
Mit freundlichen Grüßen
Robert Nowak
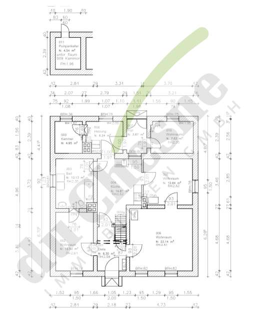
Grundriss
Grundriss Haupthaus EG
>
>
Grundriss Haupthaus DG
>
>
Haupthaus Schnitt
>
>
Nebenhaus EG
>
>
Nebenhaus DG
>
>
Nebenhaus KG
>
>
Nebenhaus Schnitt
>
>
Scheune I EG
>
>
Scheune I DG
>
>
Scheune I Schnitt
>
>
Scheune II EG
>
>
Scheune II DG
>
>
Scheune II Schnitt
>
>
Stallung EG
>
>
Adresse
14974 Ludwigsfelde
Interessante Orte
Preis- und Lageinformationen
Preistrend für Bestandsimmobilien in Ludwigsfelde