Dieses Fertighaus bringt mit seiner pastellfarbenen Fassade und dem rot geflammten Satteldach das mediterrane Flair auch in nördlichere Gefilde. An den quaderförmigen Baukörper schließen sich ein Wintergarten-Erker mit Balkon sowie ein Querhaus mit Satteldach an. Beide Architektur-Elemente sind mit bodentiefen Fenstern ausgestattet, die die Innenräume in ein sonniges Ambiente tauchen.
Die weißen Fensterrahmen fügen sich harmonisch in das Gesamtbild ein und verleihen dem Haus einen freundlichen, offenen Charakter. Da in unseren Breitengraden die Sonne nicht immer zuverlässig scheint, ist der Eingangsbereich großzügig überdacht. So kann man in aller Ruhe den Schlüssel in der Tasche suchen, ohne dass man vom Regen durchnässt wird.
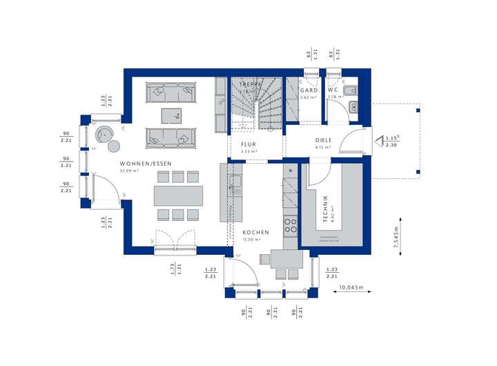
Das Innere des Hauses punktet mit einem cleveren und klar strukturierten Raumkonzept. Die Verkehrswege wurden bewusst klein gehalten, um dem Familienleben möglichst viel Platz zukommen zu lassen. Dabei wurde natürlich der Stauraum nicht vergessen: Jacken und Schuhe werden ordentlich in der Garderobe verstaut. So bleibt in der kompakten Diele genügend Bewegungsfreiheit. Weitere Abstellmöglichkeiten finden sich im Technikraum.
Alltagsmittelpunkt ist der großzügig dimensionierte Wohn-, Ess- und Kochbereich, der - nach südlichem Vorbild - zum gemütlichen Familientreffpunkt avanciert. Hier wird gemeinsam gekocht, gegessen, geplaudert und gelacht. An warmen Sommertagen können die Fenstertüren weit geöffnet werden, sodass die Terrasse zum Teil des Wohngeschehens wird.
Das Obergeschoss, das mit einem Kniestock von 1,60 m genauso viel Bewegungsfreiraum wie das Erdgeschoss bietet, wird über eine platzsparende, halbgewendelte Treppe erschlossen. Hier befinden sich drei Schlafräume und ein geräumiges Familienbad. Bei der Raumaufteilung kommt kein Bewohner zu kurz: Während der Elternschlafraum und eines der Kinderzimmer einen Zugang zum Balkon besitzen, erstreckt sich das zweite Kinderzimmer bis in das Querhaus hinein.
Im Innern heißt es: Eintreten und durchatmen. Denn im Preis jedes Bien-Zenker Hauses inbegriffen ist ein ökologischer Wandaufbau, der für ein positives, wohngesundes Raumklima sorgt. Die Basis bildet der Naturbaustoff Holz, der um weitere umweltfreundliche Materialien ergänzt wird.
Projektierung - Einfamilienhaus mit Urlaubsfeeling
85290 Geisenfeld
Die vollständige Adresse der Immobilie erhalten Sie vom Anbieter.
Auf Karte anzeigen
Die vollständige Adresse der Immobilie erhalten Sie vom Anbieter.
Finanzierungszertifikat
In nur zwei Minuten zu Ihrem persönlichen Finanzierungszertifkat.
Infos
| Haustyp | Einfamilienhaus |
|---|---|
| Etagenzahl | 2 |
| Wohnfläche ca. | 138 m2 |
| Grundstücksfläche | 692 m2 |
| Zimmer | 4 |
| Schlafzimmer | 3 |
| Badezimmer | 2 |
Kosten
| Kaufpreis |
795.000 € |
|---|
Finanzierungsrechner:
Kaufpreis:
600.000 €
Eigenkapital:
600.000 €
Monatliche Rate
0 €
Effektiver Jahreszins
0 %
Sollzinsbindung
10 Jahre
Bausubstanz & Energieausweis
| Baujahr | unbekannt |
|---|
Beschreibung des Objekts
Ausstattung
Ausstattung - Ihr Weg ins neue Zuhause
Sie möchten einfach einziehen und sich um nichts mehr kümmern ?
Dann ist die Ausbaustufe **Schlüsselfertig** von Bien-Zenker genau das Richtige für Sie. Wir übernehmen sämtliche Arbeiten - Sie bringen nur noch Ihre Möbel mit und ziehen ein.
Mit dieser Ausbaustufe entscheiden Sie sich sorgenfrei für den komfortabelsten Weg ins Eigenheim. Ihr Bien-Zenker Haus wird präzise und zügig errichtet: Innerhalb von nur wenigen Tagen montieren wir die vorgefertigten Hauselemente auf Ihrem Bauplatz. Anschließend kümmern wir uns um den kompletten Innenausbau - fachgerecht, zuverlässig und termintreu.
So gewinnen Sie Zeit & Raum für das Wesentliche: die Vorfreude auf Ihre Zukunft im neuen Zuhause, die Sie gerne mit uns gemeinsam gestalten dürfen.
Wünschen Sie mehr Flexibilität, stelle ich gemeinsam mit Ihnen ein individuelles Leistungspaket zusammen - exakt abgestimmt auf Ihre Wünsche und Vorstellungen.
Selbstverständlich genießen Sie bei allen Leistungen die volle Bien-Zenker Gewährleistung.
**WICHTIGE HINWEISE:**
Sie sehen hier den Einstiegspreis für das abgebildete Haus auf Bodenplatte und Bauplatz in schlüsselfertiger Ausführung.
Den Bauplatz erwerben Sie separat mit unserer Hilfe vom Eigentümer. Dessen aktuell ausgewiesenen Grundstückspreis haben wir bereits eingerechnet.
Sonderbauteile wie Erker, Anbauten , besondere Fassadengestaltung etc. sind nicht im Einstiegspreis enthalten.
Wollen Sie durch Eigenleistung sparen ? Wir bieten Ihnen dazu gerne alternative Ausbaustufen an. Damit senken Sie Ihren Einstiegspreis spürbar !
Lage
Lage
Geisenfeld ist eine Stadt in Oberbayern im Landkreis Pfaffenhofen an der Ilm, die für ihren historischen Stadtkern mit Kloster und Stadtpfarrkirche bekannt ist. Die Region um Geisenfeld ist Teil der Hopfenanbaugegend Hallertau und zeichnet sich durch hügelige Landschaften aus. Die Stadt bietet neben historischen Sehenswürdigkeiten wie dem ehemaligen Benediktinerinnenkloster auch zahlreiche Freizeitmöglichkeiten und ein umfangreiches Kulturangebot.
Sonstige Angaben
Im Mittelpunkt steht für uns der Bau Ihres Bien-Zenker Hauses. Den von uns projektierten Bauplatz haben wir gezielt für Sie als Hauskunden vorgesehen - damit Sie Haus & Grund aus einer Hand erhalten.
Bien-Zenker GmbH ist einer der führenden deutschen Premium-Fertighaushersteller. Über 85.000 realisierte Wohnträume in fast 115-jährigen Tradition sprechen für sich.
Überzeugen Sie sich am besten selbst von der Qualität und Vielfalt eines Bien-Zenker Hauses - machen Sie sich persönlich ein Bild z.b. in unserem Musterhaus Poing
Sie haben grundsätzliche Fragen oder möchten einfach mal den ersten Schritt gemeinsam mit uns ausprobieren ?
Einfach hier schreiben - ich melde mich gerne für ein erstes kurzes Telefonat. Ich freue mich auf den Austausch mit Ihnen!
Wie geht's dann weiter nach unserer Kontaktaufnahme ?
Bedarfsanalyse für Angebot und Bauplatz
Wir machen gemeinsam eine professionelle Bedarfsanalyse - idealerweise in unserem Musterhaus.
Sie bildet quasi das Fundament zunächst für ein individuell maßgeschneidertes Angebot, das sowohl funktional als auch gestalterisch und vor allem finanziell zu Ihnen passt.
Sollte Ihnen der vorgesehene Bauplatz wider Erwarten nicht zusagen, hilft uns die Analyse im 2. Schritt auch bei der erfolgreichen Suche nach Alternativen.
Unser bewährter Bien-Zenker Grundstücks-Service erleichtert Ihre Suche erheblich, den idealen Bauplatz zu finden.
Adresse
85290 Geisenfeld
Interessante Orte
Preis- und Lageinformationen
Preistrend für Bestandsimmobilien in Geisenfeld