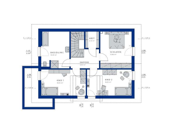
Das moderne Haus bietet in seinem Inneren ein riesiges Platzangebot von knapp 163 m², das sich auf zwei Etagen verteilt. Dank der flachen Dachneigung setzen die Schrägen des Satteldachs erst bei einer Höhe von 1,60 m an. So bietet auch das Dachgeschoss ausreichend Bewegungsfreiraum für die Bewohner und Stellfläche für die Möbel. Für zusätzliche Raumgewinne sorgt der Zwerchgiebel, der mit großzügigen Fensterpartien ausgestattet ist. Das Erdgeschoss wird durch einen eingeschossigen Übereck-Erker erweitert. Beide Architektur-Bauteile setzen nicht nur mit ihrer farblichen Gestaltung schöne Akzente am Hauptbaukörper, sondern auch mit ihrer Dacharchitektur. Der Zwerchgiebel wird von einem Pultdach gekrönt, der Erker von einem Flachdach. Der Eingang befindet sich auf der Traufseite. Hinter der Haustür werden die Bewohner und Besucher von einer geräumigen Diele empfangen, in die sich eine stilvolle, halbgewendelte Treppe integriert. Links liegen die Garderobe und das Gäste-WC.
Im Innern heißt es: Eintreten und durchatmen. Denn im Preis jedes Bien-Zenker Hauses inbegriffen ist ein ökologischer Wandaufbau, der für ein positives, wohngesundes Raumklima sorgt. Die Basis bildet der Naturbaustoff Holz, der um weitere umweltfreundliche Materialien ergänzt wird.
Projektierung - Modernes Familienhaus mit riesigem Platzangebot
85368 Moosburg an der Isar
Die vollständige Adresse der Immobilie erhalten Sie vom Anbieter.
Auf Karte anzeigen
Die vollständige Adresse der Immobilie erhalten Sie vom Anbieter.
Finanzierungszertifikat
In nur zwei Minuten zu Ihrem persönlichen Finanzierungszertifkat.
Infos
| Haustyp | Einfamilienhaus |
|---|---|
| Etagenzahl | 2 |
| Wohnfläche ca. | 163 m2 |
| Grundstücksfläche | 460 m2 |
| Zimmer | 4 |
| Schlafzimmer | 3 |
| Badezimmer | 2 |
Kosten
| Kaufpreis |
825.000 € |
|---|
Finanzierungsrechner:
Kaufpreis:
600.000 €
Eigenkapital:
600.000 €
Monatliche Rate
0 €
Effektiver Jahreszins
0 %
Sollzinsbindung
10 Jahre
Bausubstanz & Energieausweis
| Baujahr | unbekannt |
|---|
Beschreibung des Objekts
Ausstattung
Ausstattung - Ihr Weg ins neue Zuhause
Sie möchten einfach einziehen und sich um nichts mehr kümmern ?
Dann ist die Ausbaustufe **Schlüsselfertig** von Bien-Zenker genau das Richtige für Sie. Wir übernehmen sämtliche Arbeiten - Sie bringen nur noch Ihre Möbel mit und ziehen ein.
Mit dieser Ausbaustufe entscheiden Sie sich sorgenfrei für den komfortabelsten Weg ins Eigenheim. Ihr Bien-Zenker Haus wird präzise und zügig errichtet: Innerhalb von nur wenigen Tagen montieren wir die vorgefertigten Hauselemente auf Ihrem Bauplatz. Anschließend kümmern wir uns um den kompletten Innenausbau - fachgerecht, zuverlässig und termintreu.
So gewinnen Sie Zeit & Raum für das Wesentliche: die Vorfreude auf Ihre Zukunft im neuen Zuhause, die Sie gerne mit uns gemeinsam gestalten dürfen.
Wünschen Sie mehr Flexibilität, stelle ich gemeinsam mit Ihnen ein individuelles Leistungspaket zusammen - exakt abgestimmt auf Ihre Wünsche und Vorstellungen.
Selbstverständlich genießen Sie bei allen Leistungen die volle Bien-Zenker Gewährleistung.
**WICHTIGE HINWEISE:**
Sie sehen hier den Einstiegspreis für das abgebildete Haus auf Bodenplatte und Bauplatz in schlüsselfertiger Ausführung.
Den Bauplatz erwerben Sie separat mit unserer Hilfe vom Eigentümer. Dessen aktuell ausgewiesenen Grundstückspreis haben wir bereits eingerechnet.
Sonderbauteile wie Erker, Anbauten , besondere Fassadengestaltung etc. sind nicht im Einstiegspreis enthalten.
Wollen Sie durch Eigenleistung sparen ? Wir bieten Ihnen dazu gerne alternative Ausbaustufen an. Damit senken Sie Ihren Einstiegspreis spürbar !
Lage
Lage
Moosburg ist eine Stadt in Oberbayern, bekannt für ihre Lage an der Mündung von Amper und Isar sowie für ihre historische Altstadt. Die Stadt ist ein wichtiger Wirtschaftsstandort mit einer langen industriellen Geschichte. Moosburg ist auch ein beliebtes Ausflugsziel, das durch seine Nähe zur Natur und Freizeitangebote wie Radwege und die Isar-Auen geprägt ist.
Sonstige Angaben
Im Mittelpunkt steht für uns der Bau Ihres Bien-Zenker Hauses. Den von uns projektierten Bauplatz haben wir gezielt für Sie als Hauskunden vorgesehen - damit Sie Haus & Grund aus einer Hand erhalten.
Bien-Zenker GmbH ist einer der führenden deutschen Premium-Fertighaushersteller. Über 85.000 realisierte Wohnträume in fast 115-jährigen Tradition sprechen für sich.
Überzeugen Sie sich am besten selbst von der Qualität und Vielfalt eines Bien-Zenker Hauses - machen Sie sich persönlich ein Bild z.b. in unserem Musterhaus Poing
Sie haben grundsätzliche Fragen oder möchten einfach mal den ersten Schritt gemeinsam mit uns ausprobieren ?
Einfach hier schreiben - ich melde mich gerne für ein erstes kurzes Telefonat. Ich freue mich auf den Austausch mit Ihnen!
Wie geht's dann weiter nach unserer Kontaktaufnahme ?
Bedarfsanalyse für Angebot und Bauplatz
Wir machen gemeinsam eine professionelle Bedarfsanalyse - idealerweise in unserem Musterhaus.
Sie bildet quasi das Fundament zunächst für ein individuell maßgeschneidertes Angebot, das sowohl funktional als auch gestalterisch und vor allem finanziell zu Ihnen passt.
Sollte Ihnen der vorgesehene Bauplatz wider Erwarten nicht zusagen, hilft uns die Analyse im 2. Schritt auch bei der erfolgreichen Suche nach Alternativen.
Unser bewährter Bien-Zenker Grundstücks-Service erleichtert Ihre Suche erheblich, den idealen Bauplatz zu finden.
Adresse
85368 Moosburg an der Isar
Interessante Orte
Preis- und Lageinformationen
Preistrend für Bestandsimmobilien in Moosburg an der Isar