Mit dem ROOTS ist im Herzen der HafenCity ein architektonisches Wahrzeichen entstanden, Deutschlands höchstes Holzhochhaus. Entworfen vom Hamburger Architekturbüro Störmer Murphy and Partners steht es für nachhaltige Baukunst auf höchstem Niveau. Eine umlaufende Glasfassade umschließt den Baukörper, verleiht ihm eine zeitlos elegante Erscheinung und sorgt für Transparenz und Leichtigkeit. Das Gebäude vereint klare Architektur mit moderner Wohnkultur. Den Bewohnerinnen und Bewohnern stehen ein ruhig begrünter Innenhof, ein Gemeinschaftsraum sowie eine Fahrradgarage mit direktem Zugang zur Promenade zur Verfügung. Ein Restaurant im Haus ergänzt das Angebot auf angenehme Weise. Im Erdgeschoss sorgt ein Conciergeservice für zusätzlichen Komfort. Der bestehende Mietvertrag für den Tiefgaragenstellplatz kann auf Wunsch übernommen werden. Die hier angebotene Wohnung zählt zu den außergewöhnlichsten im gesamten Gebäude. Ihre Lage in der Endetage, die perfekte Ausrichtung und der unvergleichliche Panoramablick machen sie zu einem echten Unikat. Kommen Sie gerne auf uns zu und überzeugen sich selbst von dieser einmaligen Immobilie.
HafenCity Heights.
20457 Hamburg
Die vollständige Adresse der Immobilie erhalten Sie vom Anbieter.
Auf Karte anzeigen
Die vollständige Adresse der Immobilie erhalten Sie vom Anbieter.
Finanzierungszertifikat
In nur zwei Minuten zu Ihrem persönlichen Finanzierungszertifkat.
Infos
| Wohnungskategorie | Etagenwohnung |
|---|---|
| Etage | 18 von 19 |
| Wohnfläche ca. | 126 m2 |
| Bezugsfrei ab | nach Vereinbarung |
| Zimmer | 4 |
| Badezimmer | 2 |
| Garage/Stellplatz | Tiefgarage |
| Anzahl Garage/Stellplatz | 1 |
Kosten
| Kaufpreis |
2.300.000 € |
|---|---|
| Hausgeld |
652 € |
| Provision |
3,57 % inkl. MwSt. |
Finanzierungsrechner:
Kaufpreis:
600.000 €
Eigenkapital:
600.000 €
Monatliche Rate
0 €
Effektiver Jahreszins
0 %
Sollzinsbindung
10 Jahre
Bausubstanz & Energieausweis
| Baujahr | 2024 |
|---|---|
| Objektzustand | Erstbezug |
| Heizungsart | Fernwärme |
| Wesentliche Energieträger | Fernwärme |
| Energieausweis | liegt vor |
| Energieausweistyp | Bedarfsausweis |
| Energieverbrauchskennwert | 53,1 kWh/(m²*a) |
| Energieeffizienzklasse | B |
53,1
kWh/(m²*a)
Energieeffizienzklasse B
- A+
- A
- B
- C
- D
- E
- F
- G
- H
- 0
- 25
- 50
- 75
- 100
- 125
- 150
- 175
- 200
- 225
- >250
Beschreibung des Objekts
Ausstattung
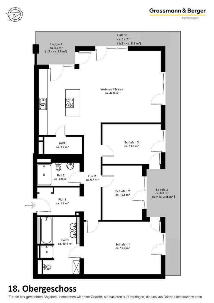
Die Wohnung befindet sich in der Endetage und nimmt innerhalb des Hauses eine besondere Stellung ein. Sie überzeugt durch ihre optimale Ausrichtung, die erhöhte lichte Raumhöhe und den unvergleichlichen Blick über die Elbe und die Hansestadt. Zwei Aufzüge ermöglichen den bequemen Zugang. Der lichtdurchflutete Wohn- und Essbereich mit bodentiefen Fenstern öffnet sich zu einem beeindruckenden Panorama und wird durch zwei geschützte Loggien harmonisch ergänzt. Die offen integrierte Küche unterstreicht den modernen, kommunikativen Charakter. Das Hauptschlafzimmer verfügt über ein Vollbad en suite und Zugang zu einer Loggia mit Blick Richtung Innenstadt. Zwei weitere Zimmer eignen sich ideal als Gäste-, Kinder- oder Arbeitszimmer. Ein Duschbad, ein Hauswirtschaftsraum mit Waschmaschinenanschluss sowie ein separater Abstellraum in der oberen Etage runden das Raumangebot ab. Hochwertige Materialien wie großformatiges Feinsteinzeug, Armaturen renommierter Hersteller und ein edler Eichenboden im Fischgrätmuster verleihen der Wohnung eine zeitlos elegante Atmosphäre. Eine neu installierte SieMatic-Küche mit perlgrauen Fronten fügt sich nahtlos in das Wohnkonzept ein.
Lage
Mit ihrer Mischung aus maritimem Charme, moderner Architektur und urbaner Lebendigkeit ist die HafenCity eines der spannendsten Stadtviertel Hamburgs. Nirgendwo sonst liegen Kaufmannstradition, zeitgemäßes Wohnen und kulturelle Vielfalt so nah beieinander. Als Europas größtes innerstädtisches Stadtentwicklungsprojekt steht sie für Pioniergeist und Zukunftsdenken. Hier trifft das UNESCO-Welterbe Speicherstadt auf die Elbphilharmonie, Hamburgs Wahrzeichen moderner Baukunst. Zahlreiche Unternehmen sowie Bildungs- und Kultureinrichtungen prägen das lebendige, weltoffene Viertel. Die Nähe zur Innenstadt, die direkte Elblage und die architektonische Vielfalt machen die HafenCity zu einem der begehrtesten Orte der Stadt. Besonders im Quartier Baakenhafen entsteht ein grünes, urbanes Stadtquartier, das nachhaltiges und gemeinschaftliches Wohnen neu interpretiert. Hier verbinden sich Lebensqualität, Vielfalt und Modernität zu einem harmonischen Ganzen. Durch die hervorragende Anbindung über die Autobahnen A255, A1 und A25 sowie die U- und S-Bahnstation Elbbrücken ist die HafenCity optimal mit dem Stadtzentrum und der gesamten Metropolregion verbunden.
Grundriss
Grundriss
>
>
Adresse
20457 Hamburg
Interessante Orte
Preis- und Lageinformationen
Preistrend für Bestandsimmobilien in HafenCity