In ruhiger Wohnlage und mit schönem Ausblick präsentiert sich dieses freistehende Einfamilienhaus aus dem Jahr 1954 mit einem wohnlich ausgebauten Anbau von 1985 und einem 2012 erneuerten Dach. Auf einem ca. 619 m² großen Grundstück gelegen, bietet das Haus ca. 100 m² Wohnfläche sowie ca. 118 m² Nutzfläche – ideal für Paare oder kleine Familien, die naturnah wohnen und dennoch nicht auf Komfort verzichten möchten. Das massiv gebaute Haus mit klassischem Mansarddach überzeugt durch eine funktionale Raumaufteilung mit insgesamt drei Zimmern. Im Erdgeschoss stehen ein großzügiger Wohn- und Essbereich, eine Einbauküche und ein Gäste-WC zur Verfügung, das Obergeschoss beherbergt ein Vollbad sowie ein Zimmer mit Zugang zum Balkon. Der Anbau ergänzt das Raumangebot im Erdgeschoss um einen gemütlichen, lichtdurchfluteten Raum mit Kamin und Blick in den Garten – perfekt als Rückzugsort oder zusätzlicher Wohnbereich. Im Jahr 2020 wurden in sämtliche Fenster doppelt verglaste Scheiben eingesetzt. Ergänzt wird die Ausstattung durch manuelle Sichtrollos, Parkett- und Fliesenböden sowie einen Glasfaseranschluss. Das Haus ist bis auf den Anbau voll unterkellert, der Keller teils wohnlich ausgebaut (Deckenhöhe ca. 2,18 m) und bietet somit praktische Zusatzfläche. Ein weiteres Plus sind zwei Stellplätze in der Garage mit modernisierter Elektronik sowie zusätzliche Parkmöglichkeiten auf dem Grundstück. Das Garagendach wurde ebenfalls bereits erneuert. Die ruhige Hanglage in einer gepflegten Nachbarschaft bietet ein hohes Maß an Lebensqualität und einen schönen Ausblick ins Grüne. Wir freuen uns auf Ihre Anfragen!
Freistehendes Einfamilienhaus mit Charme, Ausblick und Potenzial
25548 Kellinghusen
Die vollständige Adresse der Immobilie erhalten Sie vom Anbieter.
Auf Karte anzeigen
Die vollständige Adresse der Immobilie erhalten Sie vom Anbieter.
Finanzierungszertifikat
In nur zwei Minuten zu Ihrem persönlichen Finanzierungszertifkat.
Infos
| Haustyp | Einfamilienhaus |
|---|---|
| Wohnfläche ca. | 100 m2 |
| Nutzfläche | 118 m2 |
| Grundstücksfläche | 619 m2 |
| Zimmer | 3 |
| Badezimmer | 2 |
| Anzahl Garage/Stellplatz | 3 |
Kosten
| Kaufpreis |
295.000 € |
|---|---|
| Provision |
3.57 % inkl. gesetzl. MwSt. |
Finanzierungsrechner:
Kaufpreis:
600.000 €
Eigenkapital:
600.000 €
Monatliche Rate
0 €
Effektiver Jahreszins
0 %
Sollzinsbindung
10 Jahre
Bausubstanz & Energieausweis
| Baujahr | 1954 |
|---|---|
| Heizungsart | Fußbodenheizung |
| Wesentliche Energieträger | Gas |
| Energieausweis | liegt vor |
| Energieausweistyp | Bedarfsausweis |
| Energieverbrauchskennwert | 190,5 kWh/(m²*a) |
| Energieeffizienzklasse | F |
190,5
kWh/(m²*a)
Energieeffizienzklasse F
- A+
- A
- B
- C
- D
- E
- F
- G
- H
- 0
- 25
- 50
- 75
- 100
- 125
- 150
- 175
- 200
- 225
- >250
Beschreibung des Objekts
Lage
Kellinghusen, eine sympathische Kleinstadt mit ca. 7.800 Einwohnern, liegt eingebettet im grünen Naturpark Aukrug. Die nächste größere Stadt ist Itzehoe, etwa 15 km entfernt; bis nach Hamburg sind es ca. 70 km, nach Kiel rund 60 km und nach Lübeck etwa 75 km. Direkt in Kellinghusen finden sich alle wichtigen Versorgungsmöglichkeiten: mehrere Kindergärten, eine Grund und Gemeinschaftsschule, diverse Allgemeinmediziner und Fachärzte sowie Supermärkte und Bäckereien – alles bequem in unter 5 Minuten erreichbar. Auch Bank und Postfilialen sind in Ortsnähe vorhanden. Die Verkehrsanbindung ist optimal: Die Bundesstraße 206 führt direkt durch den Süden der Stadt und verbindet mit der A23 Richtung Itzehoe sowie über Anschlussstellen mit der A7 Richtung Hamburg und A20/A23 nach Kiel – ideal für Pendler und Fernreisende . Bahnstationen befinden sich in Wrist und Itzehoe, im Regionalverkehr Richtung Nord und Süd. Naturnahes Wohnen ist hier Programm: Die Immobilie liegt in ruhiger Hanglage mit Blick ins Grüne. Direkt vor der Haustür beginnen Wander und Radwege, u. a. entlang der Stör und durch das Geest und Moorgebiet. Der Rensinger See ist nur ca. 1,5 km entfernt, vier weitere Badeseen im Umkreis von 6–13 km. Kulturell bietet Kellinghusen ein reichhaltiges Angebot: das keramikgeschichtsträchtige Museum im Rathaus, die historische St.-Cyriacus-Kirche sowie regelmäßig Veranstaltungen wie Töpfer- und Geranienmarkt, Weinfest und Weihnachtsmarkt. Aktive Freizeitgestaltung ist dank Rad- und Kanutouren, Freibad, Sportanlagen und Vereinen ebenfalls gut möglich.
Sonstige Angaben
Der Makler-Vertrag mit uns und/oder unserem Beauftragten kommt durch schriftliche Vereinbarung oder durch die Inanspruchnahme unserer Maklertätigkeit auf der Basis des Objekt-Exposés und seiner Bedingungen zustande. Die Käufercourtage in Höhe von 3,57 % auf den Kaufpreis einschließlich gesetzlicher Umsatzsteuer ist bei notariellem Vertragsabschluss verdient und fällig. Die Höhe der Bruttocourtage unterliegt einer Anpassung bei Steuersatzänderung. Die EuV Wohnen GmbH (Lizenznehmer der Engel & Völkers Residential GmbH) und ggf. deren Beauftragte erhalten einen unmittelbaren Zahlungsanspruch gegenüber dem Käufer (Vertrag zugunsten Dritter, § 328 BGB). Grunderwerbssteuer, Notar- und Gerichtskosten trägt der Käufer.
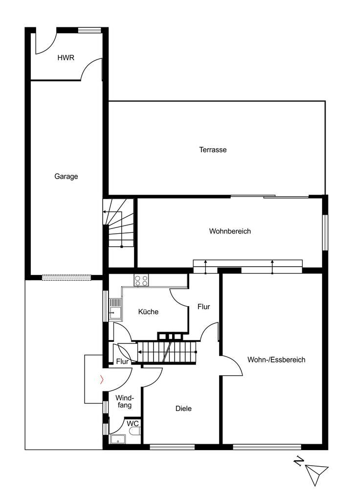
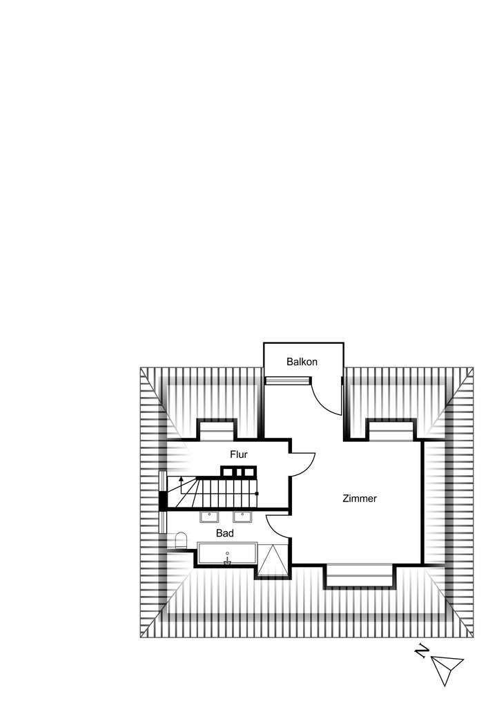
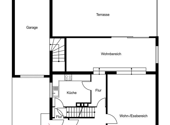
Grundriss
Erdgeschoss
>
>
Dachgeschoss
>
>
Keller
>
>
Adresse
25548 Kellinghusen
Interessante Orte
Preis- und Lageinformationen
Preistrend für Bestandsimmobilien in Kellinghusen