Objekt-Details auf einen Blick:
Wohnfläche: ca. 124 m²
Lage: Ruhige Ortsrandlage (der perfekte Mix aus Natur und Nähe)
Extras: Insektenschutz und elektrische Rollläden
Highlights: Sonniger Balkon, überdachte Terrasse, liebevoll angelegter Garten
Treten Sie ein und fühlen Sie sich sofort zu Hause!
Dieses Reihenmittelhaus bietet den idealen Rahmen für Ihre Familie. Dank der cleveren Hausbreite erleben Sie im hellen Wohn- und Essbereich ein großzügiges Raumgefühl, das zum gemeinsamen Lachen, Spielen und Entspannen einlädt. Die separate Küche, ein Gäste-WC sowie Garderobe und Windfang runden das Erdgeschoss ab.
Ruhezonen & Flexibilität pur
Im Obergeschoss finden Sie Ihr persönliches Refugium:
Elternschlafzimmer mit Zugang zum sonnigen, kürzlich sanierten Balkon – Ihr Logenplatz mit schöner Aussicht. Zwei helle Kinderzimmer, die viel Platz für individuelle Entfaltung bieten und ein großes Tageslichtbad.
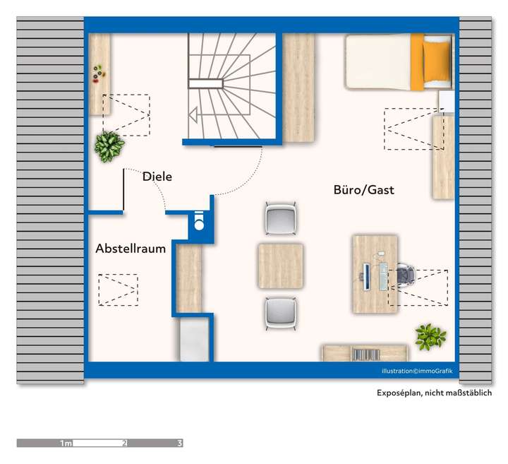
Das Dachgeschoss: Ihr Joker für alle Fälle!
Das ausgebaute Dachgeschoss ist ein echtes Highlight. Ob als ruhiges Home-Office, gemütliches Gästezimmer oder kreatives Reich für die Kinder – hier gestalten Sie Raum nach Ihren Wünschen. Clevere Stauraumlösungen unter der Schräge und ein angrenzender Abstellraum sorgen für Ordnung.
Platzwunder im Untergeschoss
Hier verbirgt sich ein weiteres Highlight: der großzügige Hobbyraum mit ca. 24 m² Nutzfläche. Ob Fitness-Studio, Partykeller oder Werkstatt – hier ist alles möglich. Daneben finden sich Heizraum, Öltanks und ein praktischer Nutzkeller.
Einziehen und Wohlfühlen
Das Haus ist sehr gepflegt, sodass Sie ohne Stress direkt einziehen können. Kleinere Modernisierungen bieten Ihnen die Chance, mit etwas Farbe und neuen Ideen Ihren ganz persönlichen Wohntraum zu verwirklichen.
Wir freuen uns auf Ihre Kontaktaufnahme!
Reihenmittelhaus mit Charme, Garten & viel Raum für Träume!
72667 Schlaitdorf
Die vollständige Adresse der Immobilie erhalten Sie vom Anbieter.
Auf Karte anzeigen
Die vollständige Adresse der Immobilie erhalten Sie vom Anbieter.
Finanzierungszertifikat
In nur zwei Minuten zu Ihrem persönlichen Finanzierungszertifkat.
Infos
| Haustyp | Reihenmittelhaus |
|---|---|
| Wohnfläche ca. | 124 m2 |
| Nutzfläche | 29 m2 |
| Grundstücksfläche | 148 m2 |
| Zimmer | 5 |
| Garage/Stellplatz | Garage |
| Anzahl Garage/Stellplatz | 1 |
Kosten
| Kaufpreis |
419.000 € |
|---|---|
| Provision |
3,57 % inkl. ges. MwSt. |
Finanzierungsrechner:
Kaufpreis:
600.000 €
Eigenkapital:
600.000 €
Monatliche Rate
0 €
Effektiver Jahreszins
0 %
Sollzinsbindung
10 Jahre
Bausubstanz & Energieausweis
| Baujahr | 1972 |
|---|---|
| Letzte Sanierung | 2023 |
| Bauphase | Haus fertig gestellt |
| Objektzustand | Gepflegt |
| Heizungsart | Zentralheizung |
| Wesentliche Energieträger | Öl |
| Energieausweis | liegt vor |
| Energieausweistyp | Bedarfsausweis |
| Energieverbrauchskennwert | 208,5 kWh/(m²*a) |
| Energieeffizienzklasse | G |
208,5
kWh/(m²*a)
Energieeffizienzklasse G
- A+
- A
- B
- C
- D
- E
- F
- G
- H
- 0
- 25
- 50
- 75
- 100
- 125
- 150
- 175
- 200
- 225
- >250
Beschreibung des Objekts
Ausstattung
Individuelle Ausstattungsmerkmale:
- Übernahme kurzfristig möglich
- Nahezu Ortsrandlage mit kurzen Wegen in die Natur
- Offen gestalteter Wohn- und Essbereich
- Bad mit Fenster
- Pflegeleichter Garten mit Sitzmöglichkeit auf der Terrasse
- Viel Platz für die Familie
- Voll unterkellert
- großzügiger Hobby-/Fitnessraum
- Sonniger Balkon
Lage
Schlaitdorf, eine charmante kleine Gemeinde mit rund 1.800 Einwohnern im Landkreis Esslingen, ist Teil der Metropolregion Stuttgart. Die Lage des Ortes ist besonders reizvoll, da sich von vielen Punkten aus eine herrliche Panoramaaussicht auf die Schwäbische Alb – von den Stauferbergen bis hin zum markanten Hohenzollern – bietet.
Die verkehrsgünstige Lage zwischen Nürtingen und Tübingen sorgt für eine gute Erreichbarkeit. Über direkte Wege sind die Autobahnen A 8 und A 81 sowie der Landesflughafen schnell erreichbar.
Ein vielfältiges Angebot an Freizeitaktivitäten und Veranstaltungen in und um Schlaitdorf sorgt für reichlich Abwechslung. In Schlaitdorf gibt es eine Grundschule und die Kindertagesstätte Hofstatt. Für die Betreuung von jüngeren Kindern gibt es außerdem Angebote der Kindertagespflege.
weitere Infos unter: www.schlaitdorf.de
Grundriss
Erdgeschoss
>
>
Obergeschoss
>
>
Dachgeschoss
>
>
Untergeschoss
>
>
Adresse
72667 Schlaitdorf
Interessante Orte
Preis- und Lageinformationen
Preistrend für Bestandsimmobilien in Schlaitdorf