• Renditestarkes Appartementhaus mit nordischem Charme und modernem Komfort
• Umfassend kernsaniert und fortlaufend modernisiert
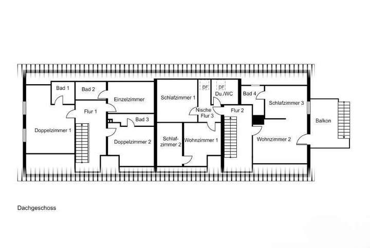
• 9 Einheiten gesamt:
• 4 Ferienzimmer (2 Doppel-, 2 Einzelzimmer)
• 4 Ferienwohnungen mit Küche, Bad & Terrasse/Balkon
• 1 Betreiberwohnung
• Option auf Erweiterung – bis zu 6 Ferienwohnungen & 4 Gästezimmer möglich
• Ferienvermietung genehmigt – sofort startklar für den Betrieb
Ausstattung & Raumaufteilung
• Betreiberwohnung mit:
• Großem Wohn- & Essbereich
• Kaminzimmer für gemütliche Abende
• Schlafzimmer, Büro & vollausgestatteter Küche (auch gewerblich nutzbar)
• Private Terrasse mit ruhigem Rückzugsbereich
• Ferienzimmer & Appartements:
• Alle mit modernen Duschbädern
• Helle, gepflegte Ausstattung & liebevolle Details
• Eigene Küchen in allen Ferienwohnungen
• Private Terrassen oder Balkone
• Teilweise separate Eingänge
Außenbereich & Technik
• Pflegeleichter Garten – gemeinschaftlich nutzbar für Gäste
• 6 Außenstellplätze, Garage, Werkstatt & Schuppen
• Gaszentralheizung, moderne Gebäudetechnik
• Vollständig renoviert & instand gehalten
• Ruhige, zentrale Lage im beliebten Ortsteil Dorf
• Hohe Auslastung & stabile Renditeaussichten
Besonderheiten
• Erweiterungspotenzial für zusätzliche Ferienwohnungen
• Ferienvermietungslizenz vorhanden
• Perfekt für Investoren oder Betreiber mit Ambition
• Etablierte Lage in Sankt Peter-Ording mit touristischer Nachfrage rund ums Jahr
Kernsaniertes Anlageobjekt mit 9 genehmigten Wohneinheiten | Renditestarke Investitionschance
25826 Sankt Peter-Ording
Die vollständige Adresse der Immobilie erhalten Sie vom Anbieter.
Auf Karte anzeigen
Die vollständige Adresse der Immobilie erhalten Sie vom Anbieter.
Finanzierungszertifikat
In nur zwei Minuten zu Ihrem persönlichen Finanzierungszertifkat.
Infos
| Haustyp | Mehrfamilienhaus |
|---|---|
| Wohnfläche ca. | 378 m2 |
| Nutzfläche | 44 m2 |
| Grundstücksfläche | 1.401 m2 |
| Zimmer | 16 |
| Badezimmer | 10 |
| Anzahl Garage/Stellplatz | 6 |
Kosten
| Kaufpreis |
1.900.000 € |
|---|---|
| Provision |
3,57 % inkl. ges. MwSt. bezogen auf den Kaufpreis |
Finanzierungsrechner:
Kaufpreis:
600.000 €
Eigenkapital:
600.000 €
Monatliche Rate
0 €
Effektiver Jahreszins
0 %
Sollzinsbindung
10 Jahre
Bausubstanz & Energieausweis
| Baujahr | 1953 |
|---|---|
| Letzte Sanierung | 2025 |
| Objektzustand | Saniert |
| Qualität der Austattung | Gehoben |
| Heizungsart | Zentralheizung |
| Wesentliche Energieträger | Gas |
| Energieausweis | liegt vor |
| Energieausweistyp | Bedarfsausweis |
| Energieverbrauchskennwert | 107,0 kWh/(m²*a) |
| Energieeffizienzklasse | D |
107,0
kWh/(m²*a)
Energieeffizienzklasse D
- A+
- A
- B
- C
- D
- E
- F
- G
- H
- 0
- 25
- 50
- 75
- 100
- 125
- 150
- 175
- 200
- 225
- >250
Beschreibung des Objekts
Ausstattung
• Voll ausgestattetes Appartementhaus – sofort startklar für Ferienvermietung
• Top gepflegter Zustand, hochwertig modernisiert & komplett eingerichtet
• Ideal für Investoren oder Betreiber, sofortige Einnahmen möglich
• Ferienvermietung genehmigt, hoher Bekanntheitsgrad & stabile Nachfrage
Ausstattung & Raumaufteilung
• Insgesamt mehrere Ferienwohnungen & Gästezimmer
• Hochwertige Ausstattung mit:
• Boxspringbetten in allen Einheiten
• Schlafsofas für Familienbelegung
• Moderne Duschbäder, vollständig erneuert
• Kaffeemaschine, Kühlschrank, TV & Sitzgelegenheiten in jeder Einheit
• Appartements mit voll ausgestatteten Küchen
• inkl. Herd, Backofen & Mikrowelle
• Terrassen oder Balkone mit Sitzmöglichkeiten in drei Einheiten
• Betreiberwohnung mit:
• Großer Küche mit Gastrogasherd – ideal für Frühstücksservice
• Wohnzimmer mit Fensterfront & Kaminzimmer
• Private Terrasse als Rückzugsort
Technik & Zustand
• Zweifach / dreifach verglaste Kunststofffenster, vollständig erneuert
• Dach grundiert, hochwertig versiegelt & mit Solarthermie ausgestattet
• Gaszentralheizung, teilweise Fußbodenheizung
• Glasfaseranschluss (1.000 Mbit/s) – Highspeed-Internet für Gäste & Betreiber
• Neue Wallbox (eichrechtskonform) für E-Auto-Ladung mit Abrechnungssystem
Außenanlage & Infrastruktur
• 6 Außenstellplätze, Garage, Werkstatt & Fahrradschuppen
• Pflegeleichter Garten, ideal für Gäste
• Ruhige Lage in Sankt Peter-Ording-Dorf, nahe Strand & Zentrum
• Vermietung & Rendite
• Etablierte eigene Homepage mit starker Google-Platzierung
• Rund 60 % der Buchungen im Jahr 2025 provisionsfrei über eigene Website
• Vollautomatisiertes Buchungs- & Zugangssystem (inkl. kontaktloser Schlüsselübergabe)
• Hohe Wiederbuchungsrate & stabile Erträge
• Exzellentes Renditepotenzial – betriebsbereit & effizient
Lage
Sankt Peter-Ording liegt an der malerischen Westküste Schleswig-Holsteins im Kreis Nordfriesland und gehört zum Nationalpark „Schleswig-Holsteinisches Wattenmeer“, einem geschützten UNESCO-Weltnaturerbe. Die Region besticht durch ihre eindrucksvolle Naturkulisse, endlose Weiten und die ikonischen Pfahlbauten, die zum unverwechselbaren Wahrzeichen der Küste geworden sind.
Als Festlandsalternative zu den Nordfriesischen Inseln bietet Sankt Peter-Ording eine ausgezeichnete Erreichbarkeit per Auto, Bahn oder Flugzeug (Verkehrslandeplatz mit der ICAO-Kennung EDXO). Der über 12 Kilometer lange und bis zu 2 Kilometer breite Sandstrand – oft als „größte Sandkiste Europas“ bezeichnet – macht den Ort zu einem der beliebtesten Ferienziele Deutschlands.
Dank der Lage auf der Halbinsel Eiderstedt herrscht hier ein ganzjährig mildes Inselklima mit frischen Brisen, angenehmen Sommern und milden Wintern.
Der Ort gliedert sich in vier charakteristische Ortsteile, die jeweils ihren eigenen Charme versprühen
• Dorf – der historische Ortskern mit Kirche, zahlreichen Restaurants, Supermärkte, der Marktplatz, die Tourist-Info, einen Reitstall, charmanten Friesenhäusern und beschaulicher Atmosphäre. Zudem befindet sich die Reha-Klinik hier. Wenn Sie in Sankt Peter Urlaub machen, sind Sie im Dorf am besten aufgehoben.
• Bad – das touristische Zentrum mit zahlreichen Hotels, Restaurants, Boutiquen, dem Kurzentrum und der Seebrücke zum Strand
• Böhl – geprägt von Reetdachhäusern, viel Grün, dem aktiven Leuchtturm, dem Golfplatz sowie Zugang zu Dünen und Salzwiesen
• Ording – sportlich und lebendig mit beliebten Surf- und Kitespots, Ferienwohnungen und Campingplätzen
Sankt Peter-Ording bietet eine herausragende Lebens- und Freizeitqualität. Neben vielfältigen Kuranwendungen und Wellnessangeboten in der Dünentherme laden Strandsegeln, Kitesurfen, Reiten, Tennis, Golf und zahlreiche Veranstaltungen ganzjährig zu Aktivität und Erholung ein.
Ein Ort, der Ruhe, Natur und Lebendigkeit perfekt vereint – und mit jedem Sonnenuntergang neu verzaubert.
Sonstige Angaben
Für nähere Informationen zu diesem Objekt steht Ihnen Herr Nico Springer unter der Mobilfunknummer 0172 288 76 10 zur Verfügung. Um eine Zeitverzögerung bei der Versendung des Exposés zu vermeiden, bitten wir Sie bei Ihrer Anfrage, Ihre vollständige Adresse, Telefonnummer sowie Ihre Email Adresse zu hinterlassen. Weitere interessante Angebote finden Sie auf unserer Firmenhomepage: www.kensington-dithmarschen.com Alle Angaben sind ohne Gewähr und basieren ausschließlich auf Informationen, die uns von unserem Auftraggeber zur Verfügung gestellt wurden. Wir übernehmen keine Gewähr für die Vollständigkeit, Richtigkeit und Aktualität dieser Angaben.
Grundriss
Grundriss Anbau
>
>
Grundriss Erdgeschoss
>
>
Grundriss Obergeschoss
>
>
Grundriss Dachboden
>
>
Adresse
25826 Sankt Peter-Ording
Interessante Orte
Preis- und Lageinformationen
Preistrend für Bestandsimmobilien in Sankt Peter-Ording