Im Herzen von Saarlouis präsentieren wir Ihnen ein äußerst gepflegtes Wohn- und Geschäftshaus, das durch seine gelungene Verbindung aus moderner Ausstattung, attraktiver Lage und stabiler Vermietung überzeugt.
Diese Immobilie vereint das Beste aus zwei Welten: die Offenheit und Frequenzlage des Vordergebäudes mit der ruhigen Struktur und Nutzungsvielfalt des Rücktrakts. Ein Haus, das Geschichte schreibt. Das Haupthaus erstreckt sich über fünf Ebenen und umfasst eine Gesamtfläche von ca. 350 m², einschließlich einer Maisonette-Wohnung sowie eines charaktervollen Gewölbekellers.
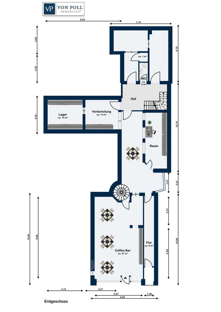
Im Erdgeschoss – direkt an der belebten Fußgängerzone – befindet sich ein seit vielen Jahren etabliertes, erfolgreich betriebenes Café. Die gemütliche Atmosphäre lädt sowohl im Innenraum als auch im überdachten, ca. 19 m² großen Innenhof ganzjährig zum Verweilen ein. Der gewerblich genutzte Bereich wird im hinteren Grundstücksteil durch ein Rückgebäude mit ca. 82 m² Nutzfläche ergänzt. Es umfasst einen großzügigen Besprechungsraum, einen Flur, ein Büro, einen Lagerraum sowie ein separates WC – ideal geeignet für eine Büro- oder Praxiseinheit. Im zweiten Obergeschoss des Rückgebäudes stehen zusätzlich ca. 58 m² zur Verfügung, bestehend aus einem hellen Flur, zwei Büroräumen und einem WC. Diese Fläche ist ruhig gelegen, funktional geschnitten und vielseitig nutzbar.
In den oberen Etagen des Hauptgebäudes liegen zwei ansprechende, teilweise modernisierte und aktuell vermietete Wohnungen.
Im Rahmen umfassender Sanierungsarbeiten in den Jahren 1980 bis 2016 wurden u.a. Elektrik, Heizung, Sanitär, Fenster sowie Oberflächen und Ausstattung zeitgemäß modernisiert, sodass die Immobilie heute einen rundum gepflegten und hochwertigen Eindruck vermittelt.
Die zentrale Lage mitten in der Innenstadt von Saarlouis macht dieses Objekt besonders attraktiv – sowohl für Kapitalanleger, die von einer soliden Rendite profitieren möchten, als auch für Eigennutzer mit dem Wunsch nach Wohnen und Arbeiten unter einem Dach oder einer Kombination aus Selbstnutzung und Vermietung.
Eine vielseitige Immobilie mit Potenzial, gepflegter Substanz und guter Mieterstruktur – eine seltene Gelegenheit in bester Stadtlage.
Da das Objekt komplett vermietet ist und wir Besichtigungen gezielt für ernsthafte Interessenten anbieten möchten, bitten wir um Verständnis, dass Termine nur nach Vorlage eines Kapitalnachweises in Höhe des Kaufpreises vereinbart werden können. Vielen Dank.
Vollvermietung; SAARLOUIS CITY Anlageobjekt mit attraktiven Wohnflächen und Ladenlokal
66740 Saarlouis
Die vollständige Adresse der Immobilie erhalten Sie vom Anbieter.
Auf Karte anzeigen
Die vollständige Adresse der Immobilie erhalten Sie vom Anbieter.
Finanzierungszertifikat
In nur zwei Minuten zu Ihrem persönlichen Finanzierungszertifkat.
Infos
| Etagenzahl | 5 |
|---|---|
| Wohnfläche ca. | 152 m2 |
| Nutzfläche | 217 m2 |
| Grundstücksfläche | 210 m2 |
| Zimmer | 5 |
| Schlafzimmer | 2 |
| Badezimmer | 2 |
Kosten
| Kaufpreis |
485.000 € |
|---|---|
| Provision |
Käuferprovision beträgt 3,98 % (inkl. MwSt.) des beurkundeten Kaufpreises |
Finanzierungsrechner:
Kaufpreis:
600.000 €
Eigenkapital:
600.000 €
Monatliche Rate
0 €
Effektiver Jahreszins
0 %
Sollzinsbindung
10 Jahre
Bausubstanz & Energieausweis
| Baujahr | 1886 |
|---|---|
| Letzte Sanierung | 2016 |
| Objektzustand | Modernisiert |
| Heizungsart | Fernwärme |
| Wesentliche Energieträger | Fernwärme |
| Energieausweis | liegt vor |
| Energieausweistyp | Bedarfsausweis |
| Energieverbrauchskennwert | 150,9 kWh/(m²*a) |
| Energieeffizienzklasse | E |
150,9
kWh/(m²*a)
Energieeffizienzklasse E
- A+
- A
- B
- C
- D
- E
- F
- G
- H
- 0
- 25
- 50
- 75
- 100
- 125
- 150
- 175
- 200
- 225
- >250
Beschreibung des Objekts
Ausstattung
V E R M I E T U N G & E R T R A G
•Das Objekt ist vollständig vermietet und bietet eine attraktive Rendite.
•Jahres-Kaltmieteinnahmen: ca. 33.840 €.
M O D E R N I E S I E R U N G E N & Z U S T A N D
•Dach: Erneuert im Jahr 2016, inklusive hochwertiger Dämmung und moderner Dachfenster.
•Elektrik: Teilweise erneuert 2015, ursprüngliche Installation aus 1980 – funktionsfähig und gepflegt.
•Fenster: Isolierverglasung aus dem Baujahr 1980.
•Bäder: In den Jahren 1980, 2012 und 2016 modernisiert – gepflegter und zeitgemäßer Zustand.
•Küchen: Zwei Einbauküchen sind bereits in den Wohneinheiten integriert.
•Wasserleitungen: Teilweise erneuert im Jahr 2020.
•Heizung: Anschluss an die Fernwärme seit 2021 – effizient, modern und umweltfreundlich.
Das Objekt präsentiert sich insgesamt in einem laufend modernisierten und soliden Gesamtzustand – ideal für Kapitalanleger, die Wert auf eine nachhaltige Vermietbarkeit und geringen Instandhaltungsaufwand legen.
Lage
Die Immobilie befindet sich direkt an der historischen Altstadt von Saarlouis, mitten in der charmanten Fußgängerzone. Für Anwohner gibt es das komfortable Jahresparkticket für 60 €. Alle Geschäfte des täglichen Bedarfs sind bequem zu Fuß erreichbar.
Naturliebhaber profitieren von der fußläufig erreichbaren grünen Vaubaninsel mit Biergarten, Feldern und Wald, ideal für Spaziergänge. Die Autobahnen A8 und A620 sind in wenigen Minuten erreichbar, ebenso die Anbindung an die französischen Autobahnen. Luxemburg liegt ca. 45 km entfernt.
Saarlouis beeindruckt mit seiner reichen Geschichte, die auf die von Sébastien Le Prestre de Vauban im 17. Jahrhundert geplante Festung zurückgeht, deren historische Überreste das Stadtbild prägen. Mit rund 35.000 Einwohnern ist Saarlouis eine lebendige Stadt und ein attraktiver Wirtschafts- und Handelsstandort, der auch Kunden aus Frankreich anzieht.
Sonstige Angaben
GELDWÄSCHE: Als Immobilienmaklerunternehmen ist die von Poll Immobilien GmbH nach § 2 Abs. 1 Nr. 14 und § 11 Abs. 1, 2 Geldwäschegesetz (GwG) dazu verpflichtet, bei der Begründung einer Geschäftsbeziehung die Identität des Vertragspartners festzustellen und zu überprüfen, bzw. sobald ein ernsthaftes Interesse an der Durchführung des Immobilienkaufvertrages besteht. Hierzu ist es erforderlich, dass wir nach § 11 Abs. 4 GwG die relevanten Daten Ihres Personalausweises festhalten (wenn Sie als natürliche Person handeln) – beispielsweise mittels einer Kopie. Bei einer juristischen Person benötigen wir eine Kopie des Handelsregisterauszugs, aus welchem der wirtschaftlich Berechtigte hervorgeht. Das Geldwäschegesetz sieht vor, dass der Makler die Kopien bzw. Unterlagen fünf Jahre aufbewahren muss. Als unser Vertragspartner haben Sie auch eine Mitwirkungspflicht nach § 11 Abs. 6 GwG.
HAFTUNG: Wir weisen darauf hin, dass die von uns weitergegebenen Objektinformationen, Unterlagen, Pläne etc. vom Verkäufer bzw. Vermieter stammen. Eine Haftung für die Richtigkeit oder Vollständigkeit der Angaben übernehmen wir daher nicht. Es obliegt daher unseren Kunden, die darin enthaltenen Objektinformationen und Angaben auf ihre Richtigkeit hin zu überprüfen. Alle Immobilienangebote sind freibleibend und vorbehaltlich Irrtümer, Zwischenverkauf- und Vermietung oder sonstiger Zwischenverwertung.
UNSER SERVICE FÜR SIE ALS EIGENTÜMER:
Planen Sie den Verkauf oder die Vermietung Ihrer Immobilie, so ist es für Sie wichtig, deren Marktwert zu kennen. Lassen Sie kostenfrei und unverbindlich den aktuellen Wert Ihrer Immobilie professionell durch einen unserer Immobilienspezialisten einschätzen. Unser bundesweites und internationales Netzwerk ermöglicht es uns, Verkäufer bzw. Vermieter und Interessenten bestmöglich zusammenzuführen.
Grundriss
Schnitt der Immobilie
>
>
Erdgeschoss
>
>
1. Obergeschosss
>
>
2. Obergeschoss-Maisonette
>
>
Adresse
66740 Saarlouis
Interessante Orte
Preis- und Lageinformationen
Preistrend für Bestandsimmobilien in Saarlouis