In diesem Angebot bieten wir Ihnen eine moderne, individuell planbare, freistehende Stadtvilla mit Garage und zentral gelegenem Grundstück in Moers-Schwafheim an.
Das Haus an sich ist lediglich ein Vorschlag und wird an Ihre individuellen Vorstellungen angepasst. Zunächst vorgesehen ist eine Wohnfläche von etwa 120m², welche sich auf Wunsch erweitern lässt. Eine Unterkellerung kann optional erworben werden.
Das entstehende Traumhaus wird in solider Bauqualität innerhalb von nur elf Monaten durch hoch qualifizierte, regionale Handwerksbetriebe erbaut und erfüllt durch die integrierte Luftwassserwärme-Pumpe selbstverständlich die aktuellsten Energienormen. So können Sie auf ein exzellentes Design und günstige Nebenkosten setzen, ohne Abstriche an Komfort machen zu müssen oder die Umwelt unnötig zu belasten.
Schwafheim - Moderne Stadtvilla mit Garage, PV-Anlage, Wärmepumpe & West-Grundstück in ruhiger Lage!
47447 Moers
Die vollständige Adresse der Immobilie erhalten Sie vom Anbieter.
Auf Karte anzeigen
Die vollständige Adresse der Immobilie erhalten Sie vom Anbieter.
Finanzierungszertifikat
In nur zwei Minuten zu Ihrem persönlichen Finanzierungszertifkat.
Infos
| Haustyp | Einfamilienhaus |
|---|---|
| Etagenzahl | 2 |
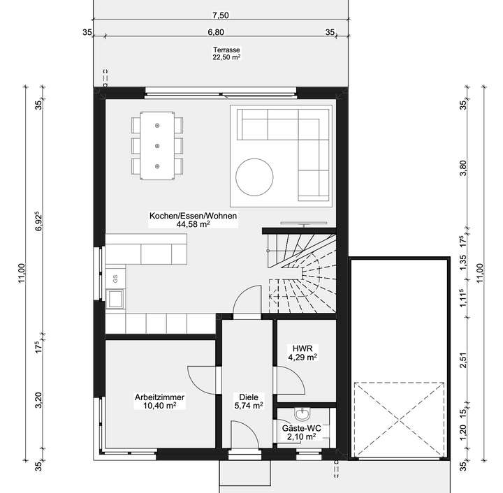
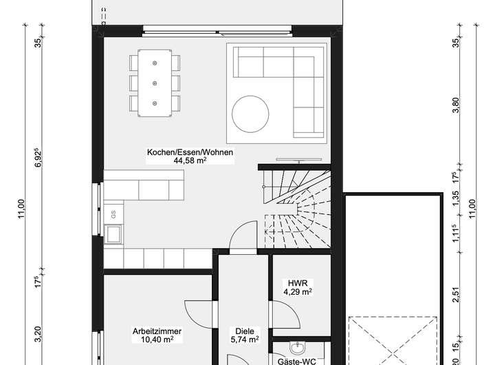
| Wohnfläche ca. | 120 m2 |
| Nutzfläche | 25 m2 |
| Grundstücksfläche | 240 m2 |
| Bezugsfrei ab | nach Vereinbarung |
| Zimmer | 4 |
| Schlafzimmer | 3 |
| Badezimmer | 1 |
| Garage/Stellplatz | Garage |
| Anzahl Garage/Stellplatz | 2 |
Kosten
| Kaufpreis |
499.999 € |
|---|---|
| Preis für Garage/Stellplatz | 11.900 € |
| Provision |
4,76% (inkl. MWSt) des Grundstück-Kaufpreises |
Finanzierungsrechner:
Kaufpreis:
600.000 €
Eigenkapital:
600.000 €
Monatliche Rate
0 €
Effektiver Jahreszins
0 %
Sollzinsbindung
10 Jahre
Bausubstanz & Energieausweis
| Baujahr | 2026 |
|---|---|
| Bauphase | Haus in Planung (projektiert) |
| Objektzustand | Erstbezug |
| Qualität der Austattung | Gehoben |
| Heizungsart | Wärmepumpe |
| Wesentliche Energieträger | Strom |
| Energieausweis | liegt zur Besichtigung vor |
Beschreibung des Objekts
Ausstattung
Ihr Haus entsteht in unabhängig geprüfter Qualität und konventioneller Bauweise. Da unsere Häuser für Qualität stehen, arbeiten wir ausschließlich mit Experten zusammen und nutzen ausnahmslos hochwertige Materialien.
Der angegebene Preis beinhaltet neben den bereits eingerechneten Grundstückskosten eine exklusive Grundausstattung von Extras und Leistungen.
Unsere Grundausstattung umfasst bereits folgende Merkmale:
- alle Architekten & Planungsleistungen sowie den Bauantrag
- Eine professionelle und unabhängige Bauleitung durch fachkundige Ingenieure vor Ort
- einen separaten Baubetreuer zur Bauvorbereitung
- TÜV Baubegleitung
- VHV Gewährleistungsversicherung
- Energiepass nach dem Standard KfW 55 (40/40QNG sind auch möglich)
- Integrierte Luft-Wasserwärmepumpe (Warmwasser & Heizung)
- Photovoltaikanlage
- Fußbodenheizung im Erd- und Obergeschoss
- 3-fach verglaste Fenster
- elektrische Rollläden im Erd- und Obergeschoss (rauf/runter Schalter)
- Fenster und Terrassentüren aus weißen/grauen/anthrazit farbigen Kunststoffprofilen (außen)
- weiß/grau beschichtete Aluminiumfensterbänke (außen)
- Sanitärobjekte der Marke Geberit iCon
- Bad-Armaturen der Marke Grohe Eurosmart
- ebenerdige Dusche (gefliest)
- Innentüren in Echtholzfunier mit Edelstahlgarnitur
- hochwertige Haustür mit Sicherheitsglas und Dreifachverriegelung
- Wand- & Bodenfliesen in Bad und Gäste-WC (Materialpreis 30,-€ / m2)
Weiterhin weisen wir offen und transparent darauf hin, dass zum kalkulierten Preis noch die Kauf- und Baunebenkosten in Höhe von ca. 50.-60.000,-EUR addiert werden müssen, da diese standardmäßig anfallen. Eine detaillierte Aufstellung aller Kosten lassen wir Ihnen gerne zukommen.
Lage
Hier wohnen Sie in einem gewachsenen Wohnumfeld sowie in zentraler Wohnlage von Moers-Schwafheim.
Die Stadt Moers bietet eine gute Infrastruktur mit Kindergärten, Grund- und weiterführenden Schulen. Alle Institutionen wie Ärzte und Einkaufsmöglichkeiten des täglichen Bedarfs sind weitestgehend fußläufig zu erreichen. Alle umliegenden Großstädte sind auf Grund der guten Autobahnanbindung schnell zu erreichen.
Das Grundstück umfasst eine Größe von 240m² und wartet nur darauf, mit Ihrem Haus geschmückt zu werden.
Sonstige Angaben
Ein Hausbau ist oftmals eine Entscheidung, die nur einmal im Leben getroffen wird und gut durchdacht sein sollte. Lassen Sie uns zusammen die Zeit nehmen, in Ruhe über Ihre Vorstellungen und Wünsche zu sprechen, um gemeinsam einen Plan für Sie zu entwickeln und auf jede Ihrer Fragen eine Antwort zu finden. Wir freuen uns bereits auf Ihre Anfrage!
Weitere Dokumente
5.Stadtvilla_133m2 + DG_Erdges5.Stadtvilla_133m2 + DG_Dachge
5.Stadtvilla_133m2 + DG__Oberg
2001 Erdgeschoss
2002 1.Obergeschoss
Grundriss
Stadtvilla 8m x 11m_Photo - 2
>
>
Grundriss EG IS24
>
>
Grundriss 1.OG IS24
>
>
Lageplan
>
PDF
Download
>
PDF Download
PDF Download
Adresse
47447 Moers
Interessante Orte
Preis- und Lageinformationen
Preistrend für Bestandsimmobilien in Moers