Sie suchen nach einem Haus mit viel Potenzial zur eigenen Gestaltung? Dann haben wir hier genau das Richtige für Sie!
Dieses sanierungsbedürftige Einfamilienhaus mit ca. 149 m² Wohnfläche bietet Ihnen auf einem ca. 1.339 m² großem Eigentumsgrundstück viele Möglichkeiten zur individuellen Gestaltung.
Das Haus wurde ca. 1920 errichtet und verfügt über insgesamt 5 Zimmer.
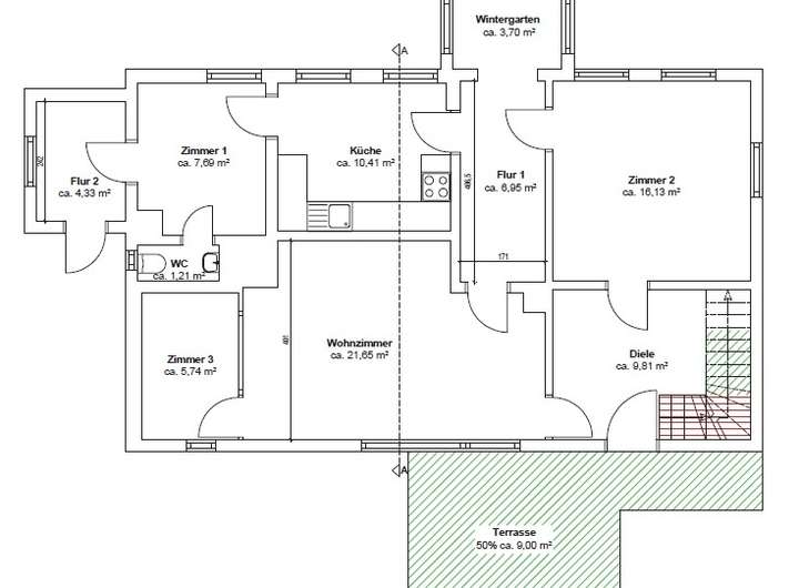
Im Erdgeschoss befinden sich eine Küche, ein großes Wohnzimmer, ein Schlafzimmer, ein kleiner Wintergarten sowie das Gäste-WC und den Heizungsraum.
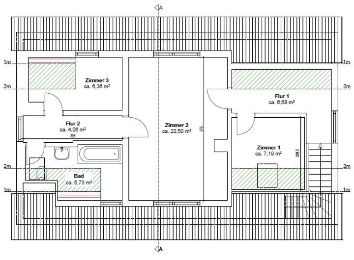
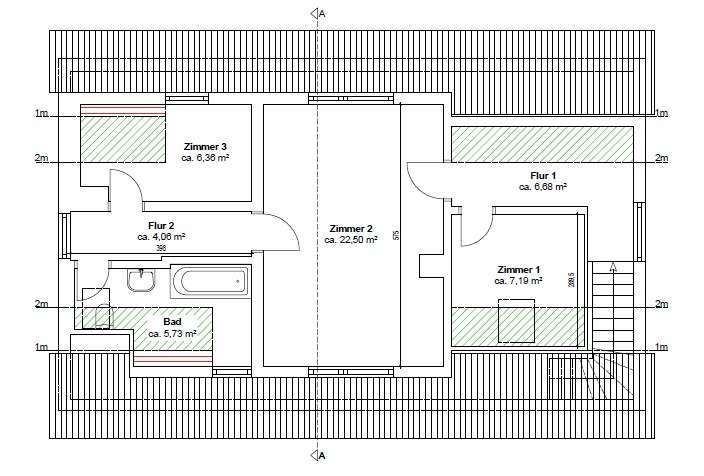
Das Dachgeschoss hält für Sie 3 weitere Zimmer und ein Wannenbad bereit.
Das Grundstück mit südlicher Ausrichtung ist von der Straße aus nicht einsichtig und bietet somit viel Privatsphäre.
Diese Immobilie hat eine großzügige Raumaufteilung und bietet Ihnen die Chance, ein Objekt ganz nach Ihren eigenen Vorstellungen zu gestalten und zu modernisieren.
Um die Immobilie in einen zeitgemäßen Zustand zu versetzen, müssen weitere Investitionen getätigt werden. Die notwendigen Arbeiten wurden bei der Preisfindung berücksichtigt und der Preis lässt Ihnen viel Spielraum, um die noch vorhandenen Arbeiten am und im Haus zu erledigen.
HINWEIS:
Der Energieausweis befindet sich in Bearbeitung und wird zu den Besichtigungen vorliegen.
**Preisreduzierung und Handwerker aufgepasst** Einfamilienhaus zu verkaufen
29499 Zernien
Die vollständige Adresse der Immobilie erhalten Sie vom Anbieter.
Auf Karte anzeigen
Die vollständige Adresse der Immobilie erhalten Sie vom Anbieter.
Finanzierungszertifikat
In nur zwei Minuten zu Ihrem persönlichen Finanzierungszertifkat.
Infos
| Haustyp | Einfamilienhaus |
|---|---|
| Wohnfläche ca. | 149 m2 |
| Nutzfläche | 30 m2 |
| Grundstücksfläche | 1.339 m2 |
| Bezugsfrei ab | sofort |
| Zimmer | 5 |
| Schlafzimmer | 3 |
| Badezimmer | 1 |
| Anzahl Garage/Stellplatz | 2 |
Kosten
| Kaufpreis |
99.000 € |
|---|---|
| Provision |
3,57 % Käuferprovision inkl. MwSt. |
Finanzierungsrechner:
Kaufpreis:
600.000 €
Eigenkapital:
600.000 €
Monatliche Rate
0 €
Effektiver Jahreszins
0 %
Sollzinsbindung
10 Jahre
Bausubstanz & Energieausweis
| Baujahr | 1920 |
|---|---|
| Objektzustand | Renovierungsbedürftig |
| Heizungsart | Zentralheizung |
| Wesentliche Energieträger | Flüssiggas |
Beschreibung des Objekts
Ausstattung
Erdgeschoss:
Wohnbereich, Küche, Schlafzimmer, HWR, Wintergarten, Diele, Gäste-WC
Dachgeschoss:
3 Zimmer, Wannenbad, Flur
- Baujahr 1920
- ca. 1.339 m² Grundstück
- ca. 149 m² Wohnfläche
- ca. 30 m² Nutzfläche
- 5 Zimmer
- überdachte Terrasse
- Grundstück mit Südausrichtung
Lage
Die Gemeinde Zernien liegt im Wendland am Rand des Biosphärenreservat Niedersächsische Elbtalaue. 17 Ortsteile gehören zur Gemeinde Zernien, mit ca. 1.700 Einwohnern. In Zernien finden Sie alles für den täglichen Bedarf: Supermarkt, Bank, Bäckerei, Ganztageskindergarten sowie eine Grundschule.
Zernien bietet zudem verschiedene Vereine, einen 18-Loch-Golfplatz (Braasche), Tennisplätze, ein beheiztes Waldschwimmbad und vieles mehr. Das Angebot an sportlichen Freizeitaktivitäten ist vielfältig.
Die wunderschöne Heidelandschaft wird von großen Waldgebieten durchzogen. Die Umgebung lädt insbesondere zu Fahrradtouren, Spaziergängen und Ausritten ein. Das Wendland ist bekannt für seine pittoresken Rundlingsdörfer und Fachwerk-Bauten.
Die kleinen Städte Dannenberg und Lüchow sind in 15 und 20 Minuten mit dem Auto zu erreichen. Lüneburg, eine der wundervollsten Städte Niedersachsens,
liegt knapp 50 Km entfernt.
Sonstige Angaben
Alle Angaben sind ohne Gewähr und basieren ausschließlich auf Informationen, die uns von unserem Auftraggeber zur Verfügung gestellt wurden. Wir übernehmen keine Gewähr für die Vollständigkeit, Richtigkeit und Aktualität der Angaben.
Der Makler-Vertrag mit uns kommt durch schriftliche Vereinbarung oder durch die Inanspruchnahme unserer Maklertätigkeit auf der Basis des Objekt-Exposés und seiner Bedingungen zustande.
***Da wir unseren Auftraggebern zur Diskretion verpflichtet sind und es sich bei den Informationen zu der Immobilie um sensible Daten handelt, bitten wir um Verständnis, dass wir Ihre Anfragen nur unter vollständiger Nennung Ihres Namens, der Anschrift und der Telefonnummer bearbeiten können!***
• Informationen zum Widerrufsrecht & EU-Verbraucherrechte-Richtlinie:
Der Gesetzgeber räumt bei allen Dienstleistungen, die per Telefon, per Internet oder über andere Fernkommunikationsmittel abgeschlossen werden, ein Widerrufsrecht ein.
Eine Widerrufsbelehrung wird Ihnen bei einer Anfrage an uns (Lüneburger Heide Immobilien) an Sie per E-Mail übersandt.
Erst wenn Sie diese Widerrufsbelehrung bestätigt haben, können wir detaillierte Informationen zum Objekt versenden (Annahme durch einen Link).
Laut der neuen EU-Verbraucherrechte-Richtlinie (Fernabsatzrecht) sind wir seit 2014 verpflichtet, von allen Interessenten bei einer Anfrage, also z. B. per Internet, E-Mail, Telefon oder Brief die Identität zu prüfen
(§ 2 Abs. 10 GwG).
Gem. § 48 GEG in Verbindung mit § 80, Abs. 4 GEG weisen wir Sie darauf hin, dass jeder Käufer eine kostenfreie Beratung zum Energieausweis mit einem zur Ausstellung Berechtigten führen soll.
Kostenfrei bieten dieses u. a. die Verbraucherzentralen Niedersachsen an.
Weitere Informationen erhalten Sie unter: www.verbraucherzentrale-niedersachsen.de/energieberatung
Grundriss
Erdgeschoss
>
>
Dachgeschoss
>
>
Adresse
29499 Zernien
Interessante Orte
Preis- und Lageinformationen
Preistrend für Bestandsimmobilien in Zernien