Dieses gepflegte Dreifamilienhaus präsentiert sich als solide Kapitalanlage mit verlässlichen Mieteinnahmen und langfristigem Werterhalt. Das Objekt wurde in den vergangenen Jahren regelmäßig instand gehalten und überzeugt durch seine gepflegte Gesamtstruktur, die gute Vermietbarkeit und die ruhige, dennoch stadtnahe Lage.
Die Immobilie verfügt über drei gut geschnittene Wohneinheiten mit insgesamt rund 229 m² Wohnfläche.
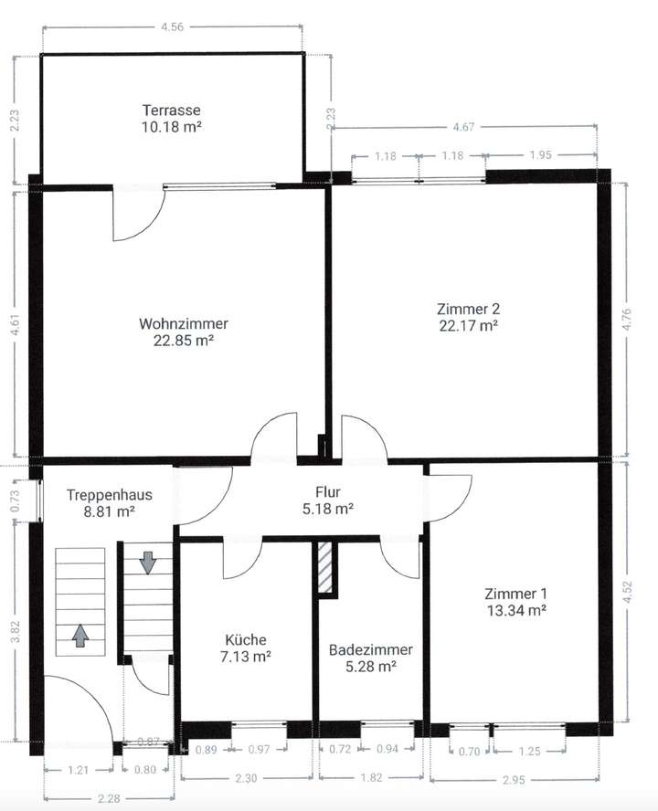
Im Erdgeschoss befindet sich eine 3-Zimmer-Wohnung mit ca. 82 m², die durch ihren schönen, großen Garten, einen Kamin im Wohnzimmer und ein Tageslichtbad besticht – ideal für Mieter, die Wert auf Wohnkomfort und Freiraum legen.
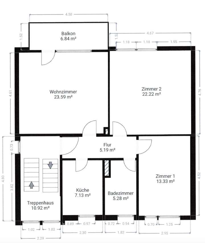
Im 1. Obergeschoss liegt ebenfalls eine 3-Zimmer-Wohnung mit ca. 80 m², ausgestattet mit Tageslichtbad und Balkon – ein klassischer und sehr gefragter Grundriss.
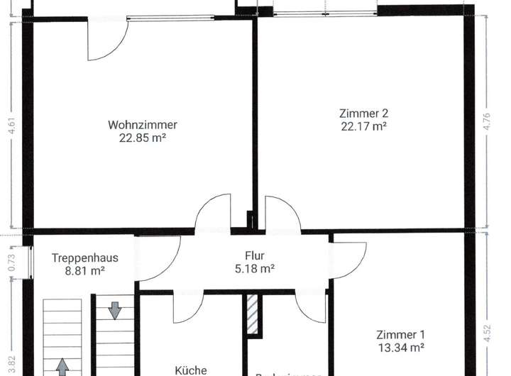
Das Dachgeschoss beherbergt eine 3-Zimmer-Wohnung mit ca. 67 m², die mit einer effizienten Aufteilung und angenehmer Wohnatmosphäre überzeugt.
Der Dachboden ist ausbaufähig und verfügt über eine Stehhöhe sowie ein großes Veluxfenster.
Das Haus ist voll unterkellert und befindet sich in einem sehr gepflegten Gesamtzustand. Sämtliche wesentlichen Modernisierungen wurden in den letzten Jahren vorgenommen – eine detaillierte Aufstellung aller durchgeführten Maßnahmen liegt vor und kann bei Interesse gerne eingesehen werden.
Die jährlichen Mieteinnahmen betragen derzeit ca. 20.400 € kalt. Damit bietet das Objekt eine stabile und sichere Basisrendite mit weiterem Entwicklungspotenzial. Der Verbrauchsausweis weist die Energieeffizienzklasse D aus – ein guter Wert für ein Mehrfamilienhaus dieser Bauart, der vor allem die energetischen Arbeiten unterstreicht.
Insgesamt handelt es sich um eine gepflegte und werthaltige Immobilie mit zuverlässiger Mieterstruktur, solider Bauqualität und kontinuierlicher Pflege – ein Investment, das Sicherheit, Beständigkeit und Perspektive vereint.
LENAU - Laufend saniertes, vollvermietetes Dreiparteienhaus in Wunstorf!
31515 Wunstorf
Die vollständige Adresse der Immobilie erhalten Sie vom Anbieter.
Auf Karte anzeigen
Die vollständige Adresse der Immobilie erhalten Sie vom Anbieter.
Finanzierungszertifikat
In nur zwei Minuten zu Ihrem persönlichen Finanzierungszertifkat.
Infos
| Haustyp | Mehrfamilienhaus |
|---|---|
| Etagenzahl | 3 |
| Wohnfläche ca. | 227 m2 |
| Nutzfläche | 70,96 m2 |
| Grundstücksfläche | 469 m2 |
| Zimmer | 9 |
| Schlafzimmer | 6 |
| Badezimmer | 3 |
| Garage/Stellplatz | Außenstellplatz |
| Anzahl Garage/Stellplatz | 4 |
Kosten
| Kaufpreis |
440.000 € |
|---|---|
| Provision |
3,57% inkl. MwSt. |
Finanzierungsrechner:
Kaufpreis:
600.000 €
Eigenkapital:
600.000 €
Monatliche Rate
0 €
Effektiver Jahreszins
0 %
Sollzinsbindung
10 Jahre
Bausubstanz & Energieausweis
| Baujahr | 1961 |
|---|---|
| Objektzustand | Saniert |
| Heizungsart | Zentralheizung |
| Wesentliche Energieträger | Gas |
| Energieausweis | liegt vor |
| Energieausweistyp | Verbrauchsausweis |
| Energieverbrauchskennwert | 118,6 kWh/(m²*a) |
| Energieeffizienzklasse | D |
118,6
kWh/(m²*a)
Energieeffizienzklasse D
- A+
- A
- B
- C
- D
- E
- F
- G
- H
- 0
- 25
- 50
- 75
- 100
- 125
- 150
- 175
- 200
- 225
- >250
Beschreibung des Objekts
Ausstattung
Weitere Bilder erhalten Sie von uns nach einer Anfrage. Wir bitten um Verständnis, dass die Mieter des Hauses keine Veröffentlichung wünschen.
Keller rundrum isoliert, 4 Parkplätze erstellt 2016
Elektrik gesamtes Haus neu 2016
Dach isoliert und repariert 2016
Fußboden verlegt mit Design- Vinyl- Platten EG und DG 2016
Fußboden OG Echtholz aus 2005
Fenster neu in EG 2018 u. OG 2019
Heizung Gas neu 2021
Treppenhaus selbst renoviert 2024
Fahrradschuppen 2021
Einbauküchen EG u. DG 2016
Lage
Dieses Mehrfamilienhaus befindet sich in Wunstorf, einer aufstrebenden Mittelstadt am Steinhuder Meer, westlich von Hannover. Dank seiner ausgezeichneten Infrastruktur, hohen Lebensqualität und stabilen Mietnachfrage zählt Wunstorf zu den attraktivsten Wohn- und Investitionsstandorten der Region Hannover – ideal für Kapitalanleger, die auf solide Rendite und langfristige Wertentwicklung setzen.
Die Stadt überzeugt durch ihre gewachsene Struktur, ein charmantes Stadtbild und eine hervorragende Anbindung an Hannover. Der historische Stadtkern mit seinen Geschäften, Cafés und Restaurants bietet urbanes Leben in überschaubarer Größe. Gleichzeitig sorgt die Nähe zum Steinhuder Meer für einen hohen Freizeitwert, der Wunstorf besonders bei Familien, Berufspendlern und Senioren beliebt macht.
Einkaufsmöglichkeiten, Schulen, Kindergärten, Ärzte und Apotheken sind im direkten Umfeld vorhanden. Die Innenstadt, der Bahnhof und verschiedene Naherholungsgebiete sind schnell erreichbar. Durch das vielseitige Angebot an Freizeit- und Sportmöglichkeiten – von Wassersport am Steinhuder Meer bis hin zu Rad- und Wanderwegen – gilt Wunstorf als besonders lebenswerte Wohnlage.
Die Verkehrsanbindung ist hervorragend: Über die B441 und die A2 gelangt man in rund 20 Minuten nach Hannover. Der Bahnhof Wunstorf bietet zudem regelmäßige Regional- und S-Bahn-Verbindungen in die Landeshauptstadt, nach Minden oder Nienburg – ein klarer Standortvorteil für Berufspendler und damit für Vermieter.
Die stetige Nachfrage nach Wohnraum, eine solide wirtschaftliche Basis und das positive demografische Umfeld machen Wunstorf zu einem renditestarken Investitionsstandort. Dieses Mehrfamilienhaus profitiert somit von einer langfristig sicheren Vermietbarkeit und attraktiven Perspektiven für Kapitalanleger.
Grundriss
Grundriss Erdgeschoss
>
>
Grundriss Obergeschoss
>
>
Grundriss Dachgeschoss
>
>
Adresse
31515 Wunstorf
Interessante Orte
Preis- und Lageinformationen
Preistrend für Bestandsimmobilien in Wunstorf