Willkommen in Minden – und seien Sie gegrüßt in dieser erlesenen Stadtvilla, die weit mehr als ein bloßer Wohn(t)raum ist. Die luxuriöse Ausstattung und die vollendete Perfektion bis ins kleinste Detail heben sie unübersehbar aus der Masse heraus. Hier erwerben Sie nicht nur ein Zuhause, sondern einen privaten Rückzugsort von unvergleichlicher Exklusivität. Diese Besitzung fasziniert vom Fundament bis zum Dachfirst – ein Wohnjuwel, das zu begeistern weiß.
Das im Jahr ca. 2007 errichtete Architektenhaus mit einer Wohnfläche von ca. 275,63 m², verteilt auf zwei Ebenen, wurde mit höchster Sorgfalt und architektonischer Raffinesse auf die Bedürfnisse eines anspruchsvollen Vier-Personen-Haushalts abgestimmt. Bereits nach dem Öffnen der Haustür empfängt Sie ein einladender Eingangsbereich mit geschickt integrierter Garderobennische und stilvoller Treppe, die Sie den hochwertigen Charakter des Hauses erahnen lassen.
Im EG eröffnet sich Ihnen ein lichtdurchfluteter Wohn- und Essbereich mit offener Küche und Kamin – ein Ort der Begegnung, des Genusses und der Entspannung. Eine angrenzende, funktional durchdachte Speisekammer führt in den Hauswirtschaftsraum. Ein flexibel nutzbares Büro/Gästezimmer sowie ein voll ausgestattetes Tageslichtbad mit Dusche komplettieren das Raumangebot dieser Ebene.
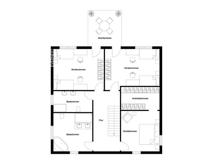
Das OG besticht durch eine intelligente Bauweise, die gänzlich auf Dachschrägen verzichtet und somit ein außergewöhnliches Raumgefühl schafft. Hier erwarten Sie zwei großzügige Kinderzimmer mit direktem Zugang zur privaten Dachterrasse, ein eigenes Kindertageslichtbad, ein luxuriöses Elternschlafzimmer mit angrenzendem Ankleidezimmer sowie ein weiteres, hochwertig ausgestattetes Tageslichtbadezimmer mit Wanne und Dusche – ein privater Rückzugsort mit Wellness-Charakter.
Das Schlagwort „Wellness“ erfährt auf dem ca. 637,5 m² umfassenden Eigentumsgrundstück in ruhiger Sackgassenlage eine wahrhaftige Umsetzung. Der Garten – oder vielmehr der exquisite Wellness- und Spabereich – besticht durch eine harmonische Gestaltung, einen mittels Wärmepumpe beheizten Pool mit Gegenstromanlage, eine großzügige Terrasse unter freiem Himmel sowie eine überdachte Außenfläche für Tage mit unbeständigem Wetter. Dieses exklusive Refugium ist eine Ruheoase, die es Ihnen ermöglicht, den Alltag augenblicklich hinter sich zu lassen. Hier erleben Sie Urlaubsfeeling in den eigenen vier Wänden – ohne Anreise, ohne Flugzeug. Ein Ort, an dem der Wunsch nach luxuriösem Wohnen in vollendeter Realität Gestalt annimmt.
Um den luxuriösen Wohnkomfort auch im Inneren des Hauses fortzuführen, wurde viel Wert auf erlesene Materialien und eine exzellente Ausstattung gelegt. Durch kontinuierliche Investitionen in modernste Technik sowie zusätzliche Ausstattungsmerkmale entsteht ein zeitgemäßes, energieeffizientes (EEK: B) und höchst anspruchsvolles Wohnambiente – stets in einem makellosem Pflegezustand.
Zu den weiteren exquisiten Ausstattungsmerkmalen zählt eine vom Küchenbauer gefertigte Einbauküche mit Natursteinplatte, ausgestattet mit zwei Wärmelampen, einer hochwertigen Berbel-Abzugshaube, zwei Weinkühlschränken, einem Dampfgarer, einer Wärmeschublade sowie allen weiteren standardisierten Einbaugeräten – selbstverständlich von renommierten Markenherstellern.
Die effiziente Erdwärmepumpe als Zentralheizung ca. aus 2012 beheizt die flächendeckende Fußbodenheizung und wird durch eine Lüftungsanlage mit Wärmerückgewinnung ca. aus 2007 ergänzt. Drei moderne Klimaanlagen in den Schlafräumen ca. aus 2023, eine neue Photovoltaikanlage sowie eine separate PV-Anlage für den Pool, beide aus diesem Jahr, eine intelligente Bewässerungsanlage, ein automatischer Mähroboter für den Garten sowie eine hochmoderne Alarmanlage mit Ultraschallraummessung komplettieren das exklusive technische Ausstattungspaket.
Luxus in jeder Facette – Architektur, Ausstattung & Zustand in Perfektion!
32425 Minden
Die vollständige Adresse der Immobilie erhalten Sie vom Anbieter.
Auf Karte anzeigen
Die vollständige Adresse der Immobilie erhalten Sie vom Anbieter.
Finanzierungszertifikat
In nur zwei Minuten zu Ihrem persönlichen Finanzierungszertifkat.
Infos
| Haustyp | Villa |
|---|---|
| Etagenzahl | 2 |
| Wohnfläche ca. | 275 m2 |
| Grundstücksfläche | 637,5 m2 |
| Zimmer | 6 |
| Schlafzimmer | 4 |
| Badezimmer | 3 |
| Garage/Stellplatz | Garage |
| Anzahl Garage/Stellplatz | 2 |
Kosten
| Kaufpreis |
1.090.000 € |
|---|---|
| Provision |
3.57 % inkl. MwSt. Bei Abschluss eines notariellen Kaufvertrages ist eine Käuferprovision vom Käufer in Höhe von 3.57 % inkl. MwSt. aus dem Kaufpreis fällig. |
Finanzierungsrechner:
Kaufpreis:
600.000 €
Eigenkapital:
600.000 €
Monatliche Rate
0 €
Effektiver Jahreszins
0 %
Sollzinsbindung
10 Jahre
Bausubstanz & Energieausweis
| Baujahr | 2007 |
|---|---|
| Objektzustand | Neuwertig |
| Qualität der Austattung | Gehoben |
| Heizungsart | Wärmepumpe |
| Wesentliche Energieträger | Strom |
| Energieausweis | liegt vor |
| Energieausweistyp | Bedarfsausweis |
| Energieverbrauchskennwert | 57,3 kWh/(m²*a) |
| Energieeffizienzklasse | B |
57,3
kWh/(m²*a)
Energieeffizienzklasse B
- A+
- A
- B
- C
- D
- E
- F
- G
- H
- 0
- 25
- 50
- 75
- 100
- 125
- 150
- 175
- 200
- 225
- >250
Beschreibung des Objekts
Ausstattung
Die Highlights im Überblick:
- Erdwärmepumpe-Zentralheizung mit Fußbodenheizung
- Lüftungsanlage mit Wärmerückgewinnung
- Klimaanlagen in den Schlafzimmern
- Kamin im Wohn-/Essbereich
- Beheizter Pool mit Gegenstromanlage
- Bewässerungsanlage und Mähroboter für den Garten
- Hochwertige Einbauküche mit Natursteinplatte
- Alarmanlage mit Ultraschallraummessung
- Zwei Weinkühlschränke
- Diverse hochwertige Einbauschränke/Einbaumöbel
- Parkettfußboden im Wohn-/Essbereich
- Garage mit elektrischem Tor + weiteren Stellplatz
- Ruhige Lage in einer Sackgasse
- Perfekter und makelloser Pflegezustand
- Drei vollwertige Badezimmer
Überzeugen Sie sich am besten persönlich: Wir halten den Schlüssel bereit und begleiten Sie durch dieses Besichtigungserlebnis – nachhaltige Faszination ist Ihnen sicher, versprochen!
Lage
Minden ist eine traditionsreiche Stadt in Ostwestfalen mit überregionaler Bedeutung. Geprägt durch die Lage an der Weser und am Wasserstraßenkreuz bietet sie eine gelungene Verbindung aus historischer Substanz, wirtschaftlicher Stabilität und hoher Lebensqualität. Die Stadt fungiert als Verwaltungs- und Dienstleistungszentrum der Region und überzeugt durch ein vielseitiges Bildungs-, Kultur- und Freizeitangebot. Die umliegende Natur sowie die Nähe zu Naherholungsgebieten machen den Standort besonders attraktiv für Familien und Berufspendler.
Die Innenstadt von Minden besticht durch ein lebendiges Stadtbild mit historischen Bauwerken, attraktiven Einkaufsstraßen und einem vielfältigen gastronomischen Angebot. Die Altstadt vereint städtisches Leben mit historischer Architektur, während moderne Versorgungsstrukturen für Komfort sorgen. Bildungseinrichtungen, Ärzte, Apotheken und öffentliche Einrichtungen sind zentral gelegen und schnell erreichbar. Regelmäßige Veranstaltungen und ein aktives Kulturleben schaffen eine lebendige Atmosphäre mit hoher Aufenthaltsqualität.
Der Bärenkamp gilt als ruhiges und gefragtes Wohngebiet mit hoher Wohnqualität. Das Quartier ist geprägt durch eine aufgelockerte Bebauung mit überwiegend Ein- und Zweifamilienhäusern sowie gepflegten Gärten. Die grüne Umgebung, kurze Wege zu Schulen, Kindergärten und Nahversorgern sowie das gewachsene nachbarschaftliche Miteinander machen diesen Stadtteil besonders familienfreundlich und lebenswert.
Die Anbindung an die Umgebung ist hervorragend. Die Bundesstraßen B61 und B65 sowie die nahegelegene Autobahn A2 ermöglichen eine zügige Erreichbarkeit der Städte BI, Hannover und OS. Der Bahnhof Minden bietet regelmäßige Verbindungen im Nah- und Fernverkehr. Buslinien und Radwege ergänzen die Verkehrsinfrastruktur und sorgen für gute Mobilität im Stadtgebiet und darüber hinaus.
Hier eine kleine Übersicht:
Supermarkt - 700 m
Schule - 550 m
Kindergarten - 750 m
Spielplatz - 350 m
Minden Stadt - 2,7 km
Grundriss
Erdgeschoss
>
>
1.Obergeschoss
>
>
Adresse
32425 Minden
Interessante Orte
Preis- und Lageinformationen
Preistrend für Bestandsimmobilien in Minden