Außen u Giebelwände:Klima Plus, Fenster&Türen Dreifachverglasung
Außenputz Mineralisch weiß
Deckenhöhe 275 cm
Neubau DHH in 2. Reihe absolut ruhige Lage im grünen München/Aubing
Altostraße 101 b,
81249 München
Auf Karte anzeigen
Finanzierungszertifikat
In nur zwei Minuten zu Ihrem persönlichen Finanzierungszertifkat.
Infos
| Haustyp | Doppelhaushaelfte |
|---|---|
| Etagenzahl | 2 |
| Wohnfläche ca. | 120 m2 |
| Nutzfläche | 10 m2 |
| Grundstücksfläche | 269 m2 |
| Zimmer | 4 |
| Schlafzimmer | 3 |
| Garage/Stellplatz | Außenstellplatz |
| Anzahl Garage/Stellplatz | 1 |
Kosten
| Kaufpreis |
780.000 € |
|---|---|
| Preis für Garage/Stellplatz | 20.000 € |
| Provision |
3,75% vom Kaufpreis |
Finanzierungsrechner:
Kaufpreis:
600.000 €
Eigenkapital:
600.000 €
Monatliche Rate
0 €
Effektiver Jahreszins
0 %
Sollzinsbindung
10 Jahre
Bausubstanz & Energieausweis
| Baujahr | 2025 |
|---|---|
| Bauphase | Haus in Planung (projektiert) |
| Objektzustand | Erstbezug |
| Qualität der Austattung | Normal |
| Heizungsart | Wärmepumpe |
| Wesentliche Energieträger | Erdwärme |
| Energieausweis | liegt zur Besichtigung vor |
Beschreibung des Objekts
Ausstattung
Ausstattung nach Wahl
Luft-Wasserpumpe mit Fußbodenheizung
Aluminum Rolläden Elektrisch
Lage
Das Grundstück befindet sich in ruhiger und familienfreundlicher Lage angrenzend an die Aubinger Lohe. Der Münchner Stadtbezirk Aubing-Lochhausen-Langwied liegt im Westen der Landeshauptstadt mit sehr guter Infrastruktur und ausgezeichneter Anbindung an das öffentliche Nah- und Fernverkehrsnetz Münchens (Bus und S4/S3). Vom S-Bahnhof Lochhausen gelangt man in ca. 20 Minuten zum Münchner Marienplatz. Die Umgebung ist geprägt von Ein- und Zweifamilienhäusern mit großen Gärten und teilweise altem Baumbestand. Mit den öffentlichen Verkehrsmitteln wie Bus und S-Bahn gelangt man rasch in Münchner City. Das Autobahnkreuz München-West ist für Autofahrer schnell zu erreichen.
Aubing bietet trotz Nähe zur Großstadt einen dörflichen Charakter aufgrund des historischen Ortskerns und die Kirche St. Quirin sowie den liebevoll gestalteten Hofläden. Alle Einkaufsmöglichkeiten des täglichen Bedarfs befinden sich im Ortszentrum des Stadtteils. Darüber hinaus befinden sich Schulen und Kindergärten in der Umgebung. Auch für Naturliebhaber bietet der Stadtbezirk insbesondere mit dem Langwieder See und dem Naherholungsgebiet Aubinger Lohe zahlreiche Möglichkeiten zur Entspannung. Das Bergson Kunstkraftwerk bietet neben Hörerlebnissen Zusammentreffen mit Kunst und Gastronomie.
Sonstiges: Der Makler übernimmt keine Haftung für die oben angegeben Daten – diese stammen vom Verkäufer.
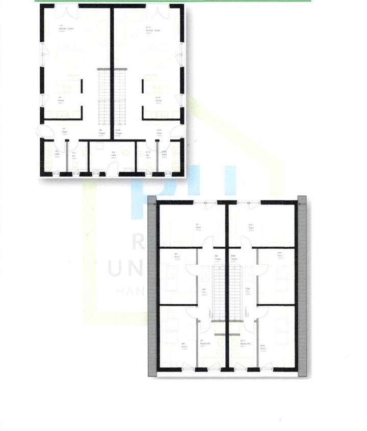
Grundriss
möglich Grundrissplanung für D
>
>
Adresse
Altostraße 101 b, 81249 München
Interessante Orte
Preis- und Lageinformationen
Preistrend für Bestandsimmobilien in Lochhausen