Herzlich willkommen in Ihrer harmonischen Oase! Diese Immobilie wurde sorgfältig gestaltet, um ein Gefühl von Ruhe und Ausgeglichenheit zu vermitteln. Jedes Detail strahlt zeitlose Eleganz aus und schafft eine wohltuende Atmosphäre für Ihren Alltag.
Traumhaus auf großem Grundstück – Unser Angebot für Ihre Zukunft
77836 Rheinmünster
Die vollständige Adresse der Immobilie erhalten Sie vom Anbieter.
Auf Karte anzeigen
Die vollständige Adresse der Immobilie erhalten Sie vom Anbieter.
Finanzierungszertifikat
In nur zwei Minuten zu Ihrem persönlichen Finanzierungszertifkat.
Infos
| Haustyp | Einfamilienhaus |
|---|---|
| Wohnfläche ca. | 103 m2 |
| Nutzfläche | 0 m2 |
| Grundstücksfläche | 465 m2 |
| Zimmer | 5 |
| Schlafzimmer | 3 |
| Badezimmer | 1 |
| Anzahl Garage/Stellplatz | 1 |
Kosten
| Kaufpreis |
509.476 € |
|---|---|
| Provision | Nein |
Finanzierungsrechner:
Kaufpreis:
600.000 €
Eigenkapital:
600.000 €
Monatliche Rate
0 €
Effektiver Jahreszins
0 %
Sollzinsbindung
10 Jahre
Bausubstanz & Energieausweis
| Baujahr | 2026 |
|---|---|
| Bauphase | Haus in Planung (projektiert) |
| Qualität der Austattung | Gehoben |
| Heizungsart | Wärmepumpe |
Beschreibung des Objekts
Ausstattung
Die Ausbaustufe Fastvollendet bietet eine perfekte Mischung aus hochwertiger Grundausstattung und der Flexibilität, persönliche Akzente zu setzen. Diese Ausbaustufe ermöglicht es den Bauherren, ihr Traumhaus mit Eigenleistungen zu gestalten, ohne dabei auf die Vorteile eines durchdachten Grundkonzepts zu verzichten.
Jedes Schwabenhaus verfügt standardmäßig über:
- Mögliche KFW QNG/KFN Zertifizierung (Energieberater/ Ökobilanz inklusive)
- Variable Wärmepumpen-Technik. (Luft/Wasser; Doppel-Wärmepumpe; Erdwärme;...)
- Zentrale kontrollierte Wohnraum Be- und Entlüftung mit Wärmerückgewinnung
- 3-Scheiben-Wärmeschutzglas
- elektrische Rollladensteuerung*
- Smart-Home-Technologie: Intelligentes Gebäude-Management für die Licht- und Rollladen-Steuerung*
- Schwimmender Estrich mit Wärmedämmung
- 10 Jahre Gewährleistung nach BGB (üblich: 5 Jahre) und 30 Jahre Garantie auf die Grundkonstruktion
Mögliche Eigenleistungen:
- Spachtel und Malerarbeiten
- Wand,- Bodenfliesen + Sanitärobjekte
- Innentüren und/oder Bodenbeläge
Diesem Angebot liegt die beliebte Schwabenhaus-Ausbaustufe "Fast-Vollendet" zugrunde. Diese kann selbstverständlich noch entsprechend Ihrer geplanten Eigenleistungen angepasst werden.
*In Verbindung mit dem Technologie + Komfort-Paket „Blue-Edition“
Lage
Attraktives Baugrundstück (463 m²) in Rheinmünster-Greffern
Sonstige Angaben
Zzgl. Kauf-Nebenkosten und Bau-Nebenkosten.
Bitte senden Sie uns eine schriftliche Anfrage über die Nachrichtenfunktion, wir werden Sie schnellstmöglich kontaktieren. Deshalb achten Sie bei Ihrer Anfrage bitte auf die Vollständigkeit und Richtigkeit Ihrer Daten, insbesondere auf die Angabe einer Telefonnummer.
Anfragen zur genauen Adresse des Objektes beantworten wir ihnen dann umgehend.
Anbauteile, Carport, Garage und Keller können Extras sein, die als Sonderausstattung angeboten werden. Abbildungen, Grundrisse und Flächenangaben sind beispielhaft und können Extras zeigen. Flächenangaben nach DIN 277.
Profitieren Sie jetzt von der Schwabenhaus Online Beratung und verwirklichen Sie Ihr Traumhaus https://www.schwabenhaus.de/anmeldung-hausbau-beratung-online/
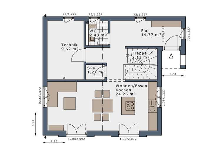
Grundriss
Erdgeschoss
>
>
Obergeschoss
>
>
Adresse
77836 Rheinmünster
Interessante Orte
Preis- und Lageinformationen
Preistrend für Bestandsimmobilien in Rheinmünster