Charmantes Reihenmittelhaus in gefragter Lage von Bremen-Osterholz!
Wir freuen uns, Ihnen dieses gepflegte Reihenmittelhaus in ruhiger und ansprechender Wohnlage von Bremen-Osterholz vorstellen zu dürfen. Das Haus wurde ca. 1982 in massiver Bauweise errichtet und überzeugt durch eine durchdachte Raumaufteilung, helle Wohnräume und vielfältige Nutzungsmöglichkeiten.
Raumaufteilung und Ausstattung
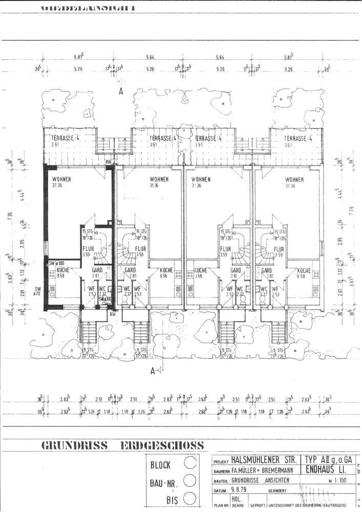
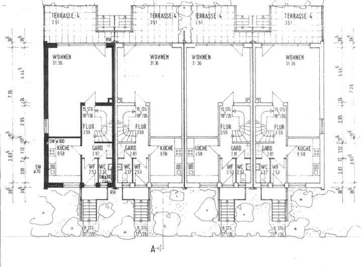
Im Hochparterre (Erdgeschoss) erwartet Sie eine Küche mit Einbauküche, ein Gäste-Duschbad mit Tageslicht, der Flur sowie das großzügige Wohnzimmer mit Zugang zur sonnigen Terrasse. Hier lässt sich der Feierabend in angenehmer Atmosphäre genießen.
Über eine offene Holztreppe mit Holzgeländer gelangen Sie ins Obergeschoss, das über zwei Kinderzimmer, ein Elternschlafzimmer, eine zur Sonnenseite ausgerichtete Loggia sowie ein Badezimmer mit Badewanne verfügt.
Das Dachgeschoss ist bereits über die Treppe erreichbar und bietet Ihnen Ausbaupotenzial (Baugenehmigung erforderlich) – ideal für zusätzlichen Wohnraum, ein Büro oder ein Gästezimmer (Nutzfläche ca. 35,94m²).
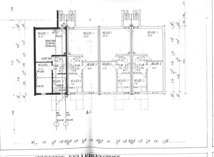
Das Haus ist voll unterkellert und bietet hier neben einem Hobbyraum mit Heizanlage, einem Flur und Lagerräumen auch einen praktischen Außenkellerzugang.
Zum Angebot gehört außerdem eine Einzelgarage auf einem nahegelegenen Garagenhof, die im Kaufpreis enthalten ist.
Haben wir Ihr Interesse an diesem Einfamilienhaus geweckt? Dann senden Sie uns zunächst Ihre Anfrage per Mail. Sie erhalten hiernach unser Immobilienexposé und können auch eine Aussenbesichtigung durchführen. Möchten Sie die Immobilie von Innen besichtigen, sprechen Sie uns gerne an.
Reihenhaus m. Ausbaureserve und Garage in begehrter Wohnlage von Bremen-Osterholz/Kuhkampsiedlung!
28307 Bremen
Die vollständige Adresse der Immobilie erhalten Sie vom Anbieter.
Auf Karte anzeigen
Die vollständige Adresse der Immobilie erhalten Sie vom Anbieter.
Finanzierungszertifikat
In nur zwei Minuten zu Ihrem persönlichen Finanzierungszertifkat.
Infos
| Haustyp | Reihenmittelhaus |
|---|---|
| Etagenzahl | 4 |
| Wohnfläche ca. | 102 m2 |
| Nutzfläche | 88,1 m2 |
| Grundstücksfläche | 218 m2 |
| Bezugsfrei ab | nach Vereinbarung |
| Zimmer | 4 |
| Schlafzimmer | 3 |
| Badezimmer | 2 |
Kosten
| Kaufpreis |
315.000 € |
|---|---|
| Provision |
Die zu zahlende Käuferprovision beträgt 3,57% inkl. gesetzl. Mwst. vom beurkundeten Kaufpreis. |
Finanzierungsrechner:
Kaufpreis:
600.000 €
Eigenkapital:
600.000 €
Monatliche Rate
0 €
Effektiver Jahreszins
0 %
Sollzinsbindung
10 Jahre
Bausubstanz & Energieausweis
| Baujahr | 1982 |
|---|---|
| Objektzustand | Renovierungsbedürftig |
| Heizungsart | Zentralheizung |
| Wesentliche Energieträger | Gas |
| Energieausweis | liegt vor |
| Energieausweistyp | Bedarfsausweis |
| Energieverbrauchskennwert | 150,4 kWh/(m²*a) |
| Energieeffizienzklasse | E |
150,4
kWh/(m²*a)
Energieeffizienzklasse E
- A+
- A
- B
- C
- D
- E
- F
- G
- H
- 0
- 25
- 50
- 75
- 100
- 125
- 150
- 175
- 200
- 225
- >250
Beschreibung des Objekts
Ausstattung
Ausstattung im Überblick
•Gaszentralheizung Junkers Cerasmart (ca. 2002, mit Warmwasserspeicher)
•3-adrige Elektroleitungen, Sicherungsautomaten
•Terrassenüberdachung
•Aussenkellerzugang
•Kunststoffrahmenfenster (ca. 2014, 3-fach verglast, abschließbar)
•Außenrollläden (manuell/elektrisch)
•Moderne Hauseingangstür mit Glasausschnitt
•Loggiatür als Kunststoffrahmentür (ca. 2014, 3-fach verglast)
•Holzinnentüren mit Stahlzargen
•Gäste-Duschbad mit Fenster und Echtglastüren
•Wannenbad im Obergeschoss
•Einbauküche mit hochwertigen Elektrogeräten (Miele, Bosch, Siemens)
•Stahlbetondecken
•Dachgeschoss ausbaufähig (Baugenehmigung erforderlich)
• Einzelgarage mit Metalltor
• kein Erbbaugrundstück, das Grundstück ist bereits Eigentum und wird Ihnen mitverkauft!
Lage
Die Immobilie befindet sich im östlichen Bereich von Bremen, im Ortsteil Bremen-Osterholz. Das Wohnumfeld ist überwiegend von Wohnhäusern mit angelegten Gärten geprägt und sorgt somit für eine angenehme, familienfreundliche Wohnatmosphäre.
Für den täglichen Bedarf bietet die Umgebung eine solide Versorgung: Supermärkte, Apotheken und kleinere Einzelhandelsgeschäfte sind bequem mit dem Fahrrad oder kurzen Fahrten erreichbar. Hierzu zählt auch der nahegelgene Weser-Park. So profitieren Sie von einer Kombination aus ruhigem Wohnumfeld und guter Nahversorgung. Zudem zählt die Straße selbst zu einem Wohngebiet mit geringem Durchgangsverkehr, was die Wohnqualität zusätzlich steigert.
Die Lage zeichnet sich durch eine gute Erreichbarkeit sowohl mit dem Auto als auch mit öffentlichen Verkehrsmitteln aus. Die Anbindung an das städtische Verkehrsnetz ermöglicht eine zügige Verbindung in andere Stadtteile Bremens sowie zur Innenstadt. Der Stadtteil Osterholz befindet sich im Stadtbezirk Ost, was eine verkehrsgünstige Positionierung im Gesamtgebiet der Hansestadt unterstreicht.
Osterholz bietet eine Mischung aus Wohn- und Grünflächen sowie eine familienfreundliche Struktur mit Kindergärten, Schulen und Freizeitmöglichkeiten in Reichweite. Die Nähe zu naturnahen Ausflugszielen und Erholungsräumen macht das Wohnumfeld attraktiv für Menschen, die sowohl Ruhe als auch Stadtnähe suchen.
Zusammenfassung
In der Wohnstraße ergibt sich damit eine optimale Kombination: ruhiges Wohnquartier mit guter Infrastruktur und Verkehrsanbindung sowie einer angenehmen, familienorientierten Umgebung. Die Lage spricht sowohl Eigennutzer als auch Kapitalanleger an, die Wert auf eine solide Basis in Bremen Ost legen.
Sonstige Angaben
Sie suchen einen Immobiliensachverständigen? Sie benötigen ein Verkehrswertgutachten für das Finanzamt (z.B. bei einer Erbschaft) oder für eine Ehescheidung? Sie möchten Streitigkeiten in der Familie vermeiden und benötigen ein Kurzgutachten für Ihre Immobilie? Marco Tietjen, Dipl.-Sachverständiger (DIA) und zertifizierter Gutachter (DIAZert 17024) bewertet Ihre Immobilie in Bremen und Niedersachsen. Nähere Infos unter www.gutachter-kanzlei.de.
Marco Tietjen ist seit 30 Jahren als Sachverständiger in Bremen und Umgebung tätig . Durch seine Zertifizierung (DIAZert) sichert er Ihnen Verkehrswertgutachten gemäß § 194 BauGB nach den aktuellen Standards zu. Im persönlichen Gespräch werden Ihnen alle Fragen ausführlich und gerne beantwortet.
Grundriss
Hausansicht
>
>
Hausansicht
>
>
Schnitt des Hauses
>
>
Erdgeschoss
>
>
Obergeschoss
>
>
Dachgeschoss
>
>
Kellergeschoss
>
>
Adresse
28307 Bremen
Interessante Orte
Preis- und Lageinformationen
Preistrend für Bestandsimmobilien in Osterholz