Verkauf modernes Einfamilienhaus auf großem Gartengrundstück
Es handelt sich um ein geschmackvoll ausgestattetes Einfamilienhaus mit Geräteschuppen auf einem ca. 1.015 m² großen Gartengrundstück. Das Wohnhaus wurde ca. 1997 in Massivbauweise errichtet. Das Haus teilt sich in Erdgeschoss, Dachgeschoss und Teilkeller auf.
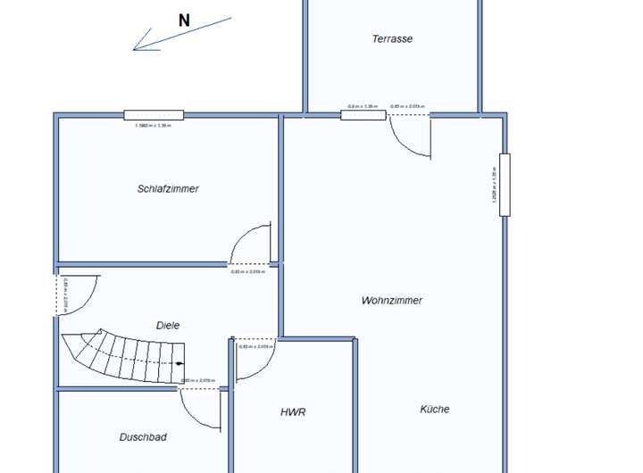
Im Erdgeschoss befinden sich ein großes und helles Wohn- und Esszimmer mit schönem Kaminofen und Zugang zur Terrasse, eine zum Wohnzimmer offene Küche mit hochwertiger Einbauküche und Markengeräten, ein Schlafzimmer, ein Hausanschlussraum mit der Heiztechnik, ein Duschbad sowie eine Diele. Von der Diele gelangt man über eine Treppe in das Dachgeschoss.
Die Wohnfläche im Erdgeschoss beträgt ca. 64 m² (inkl. halber Terrasse).
Im Dachgeschoss befinden sich zwei geräumige Zimmer,
Die Wohnfläche im Dachgeschoss beträgt ca. 22 m².
Der Teilkeller befindet sich unter der Terrasse und dient zur Zeit nur als zusätzlicher Abstellplatz.
Die Nutzfläche im Teilkeller beträgt ca. 12 m².
Auf dem sonnigen und idyllisch angelegten Gartengrundstück befinden sich noch ein Holzschuppen.
Die Nutzfläche dort beträgt ca. 10 m².
Modernes Einfamilienhaus mit Teilkeller in ruhiger Lage
16833 Fehrbellin
Die vollständige Adresse der Immobilie erhalten Sie vom Anbieter.
Auf Karte anzeigen
Die vollständige Adresse der Immobilie erhalten Sie vom Anbieter.
Finanzierungszertifikat
In nur zwei Minuten zu Ihrem persönlichen Finanzierungszertifkat.
Infos
| Haustyp | Einfamilienhaus |
|---|---|
| Etagenzahl | 0 |
| Wohnfläche ca. | 86 m2 |
| Grundstücksfläche | 1.015 m2 |
| Bezugsfrei ab | nach Absprache |
| Zimmer | 4 |
| Badezimmer | 1 |
| Anzahl Garage/Stellplatz | 2 |
Kosten
| Kaufpreis |
268.000 € |
|---|---|
| Provision |
2,99 % inkl. MwSt. Die Käuferprovision beträgt 2,99% (inkl. MwSt.) vom Kaufpreis. |
Finanzierungsrechner:
Kaufpreis:
600.000 €
Eigenkapital:
600.000 €
Monatliche Rate
0 €
Effektiver Jahreszins
0 %
Sollzinsbindung
10 Jahre
Bausubstanz & Energieausweis
| Baujahr | 1997 |
|---|---|
| Letzte Sanierung | 2010 |
| Bauphase | Haus fertig gestellt |
| Objektzustand | Gepflegt |
| Qualität der Austattung | Normal |
| Heizungsart | Fußbodenheizung |
| Wesentliche Energieträger | Flüssiggas |
| Energieausweis | liegt vor |
| Energieausweistyp | Bedarfsausweis |
| Energieverbrauchskennwert | 178,9 kWh/(m²*a) |
| Energieeffizienzklasse | F |
178,9
kWh/(m²*a)
Energieeffizienzklasse F
- A+
- A
- B
- C
- D
- E
- F
- G
- H
- 0
- 25
- 50
- 75
- 100
- 125
- 150
- 175
- 200
- 225
- >250
Beschreibung des Objekts
Ausstattung
- ruhige und idyllische Wohnlage
- Massivbauweise, Baujahr ca. 1997
- überdachter Eingang
- glasierte Dachziegel
- moderne Einbauküche mit hochwertigen Elektrogeräten
- lichtdurchfluteter Wohn- und Essbereich
- Fensterläden
- Terrasse unterkellert
- Duschbad mit Handtuchtrockner
- Gasbrennwerttherme der Firma Buderus
- Flüssiggastank als Erdtank
- Warmwassererzeugung mittels Durchlauferhitzer
- Fußbodenheizung im Erdgeschoss
- Kaminofen
- Geräteschuppen aus Holz
- voll erschlossen
- SAT-Leitung im Haus
- Straße neu befestigt und asphaltiert
- Link zum virtuellen Rundgang: https://my.matterport.com/show/?m=9Aq75hyp9eB
Lage
Brunne ist ein Ortsteil der Gemeinde Fehrbellin im Landkreis Ostprignitz-Ruppin in Brandenburg. Zwei Kilometer entfernt östlich verläuft die A 24. Am nördlichen Ortsrand fließt der Rhinkanal. Bis zur Berliner Stadtgrenze fährt man mit dem PKW ca. eine halbe Stunde. Der nächste Bahnhof befindet sich in Friesack, ca. 20 Minuten mit PKW entfernt.
Grundriss
Grundriss EG
>
>
Grundriss DG
>
>
Adresse
16833 Fehrbellin
Interessante Orte
Preis- und Lageinformationen
Preistrend für Bestandsimmobilien in Fehrbellin