Willkommen in Ihrem zukünftigen Zuhause - einem projektierten Einfamilienhaus, das modernes Wohnen neu definiert. Hier verschmelzen klare Architektur, intelligente Ausstattung und durchdachte Raumkonzepte zu einem Lebensraum, der nicht nur überzeugt, sondern begeistert.
Schon beim ersten Blick spürt man die besondere Handschrift dieses Hauses: Die elegante Fassadengestaltung, großzügige Fensterflächen und die harmonische Linienführung schaffen ein Ambiente, das Offenheit und Geborgenheit zugleich vermittelt. Der lichtdurchflutete Wohn- und Essbereich lädt zu entspannten Familienmomenten ein, während die Küche Raum für kulinarische Kreativität bietet. Rückzugsorte wie das Elternschlafzimmer mit Ankleide und die gleichwertigen Kinderzimmer sind ebenso Teil des Konzepts wie hochwertige Bäder und praktische Nebenräume.
Technisch ist das Haus auf dem neuesten Stand: Elektrische Rollläden, eine Haustüre mit Fingerprint und Motorschloss sowie eine moderne Luft-Wasser-Wärmepumpe mit Fußbodenheizung und kontrollierter Wohnraumlüftung sorgen für Komfort, Sicherheit und Effizienz. Die massive Doppelgarage mit elektrischem Anschluss und Sektionaltor rundet das Gesamtbild ab - funktional, stilvoll und direkt mit dem Haus verbunden.
Dieses Haus ist mehr als ein Bauprojekt. Es ist eine Einladung, das Leben neu zu gestalten - mit Raum für Ideen, für Familie, für Zukunft. Vereinbaren Sie einen Beratungstermin und entdecken Sie, wie exklusiv Wohnen sein kann.
Mehr als Wohnen - projektiertes Haus, das begeistert
84100 Niederaichbach
Die vollständige Adresse der Immobilie erhalten Sie vom Anbieter.
Auf Karte anzeigen
Die vollständige Adresse der Immobilie erhalten Sie vom Anbieter.
Finanzierungszertifikat
In nur zwei Minuten zu Ihrem persönlichen Finanzierungszertifkat.
Infos
| Etagenzahl | 2 |
|---|---|
| Wohnfläche ca. | 171 m2 |
| Grundstücksfläche | 660 m2 |
| Zimmer | 5 |
| Schlafzimmer | 1 |
| Badezimmer | 1 |
Kosten
| Kaufpreis |
684.963 € |
|---|
Finanzierungsrechner:
Kaufpreis:
600.000 €
Eigenkapital:
600.000 €
Monatliche Rate
0 €
Effektiver Jahreszins
0 %
Sollzinsbindung
10 Jahre
Bausubstanz & Energieausweis
| Baujahr | unbekannt |
|---|---|
| Bauphase | Haus in Planung (projektiert) |
| Heizungsart | Wärmepumpe |
Beschreibung des Objekts
Ausstattung
Dieses projektierten massa-Ausbauhaus überzeugt durch eine durchdachte Planung, hochwertige Materialien und eine Ausstattung, die Maßstäbe setzt. Ab Oberkante Kellerdecke entsteht ein Wohnhaus, das Funktionalität, Energieeffizienz und Design in perfekter Harmonie vereint.
Bereits im Fundament zeigt sich die Qualität: Ein massiv ausgeführter Fertigbetonkeller inklusive Baugrundgutachten bildet die solide Basis. Die Kellerdecke wird mit einer 100 mm starken Dämmung versehen - Bestandteil des Effizienzhaus-55-Pakets, das auch die Luft-Wasser-Wärmepumpe, Fußbodenheizung in allen Wohngeschossen sowie eine kontrollierte Be- und Entlüftungsanlage umfasst. Damit ist das Haus nicht nur zukunftssicher, sondern auch energetisch auf dem neuesten Stand.
Die Elektroinstallation wird durch ein erweitertes Technikpaket ergänzt, das unter anderem die Vorbereitung und den Anschluss elektrischer Rollläden umfasst. Die Aluminium-Rollläden in edlem Silberton sind nicht nur ein optisches Highlight, sondern bieten auch Komfort und Sicherheit - elektrisch bedienbar und einbruchhemmend. Die Haustüre ist mit einem Motorschloss und einem modernen Fingerprint-System ausgestattet, das den Zugang zum Haus auf ein neues Niveau hebt.
Ein weiteres architektonisches Highlight ist der integrierte CLASSICO-Heizkamin mit raumluftunabhängigem Schornstein - inklusive Trittsteinen und Standrost. Er verbindet behagliche Wärme mit stilvoller Wohnkultur und ist bereits im Lieferumfang enthalten.
Die Treppenanlagen sind ebenso hochwertig ausgeführt: Vom Keller ins Erdgeschoss führt eine massive Betonfertigtreppe, während die Geschosse darüber durch keilgezinkte Holztreppen aus Buche verbunden sind - ein Ausdruck von handwerklicher Qualität und zeitloser Eleganz.Besonders hervorzuheben ist die großzügige Doppelgarage mit modernem Sektionaltor und elektrischem Anschluss. Sie bietet nicht nur Platz für zwei Fahrzeuge, sondern auch Raum für Technik, Hobby und Stauraum - komfortabel, sicher und direkt mit dem Haus verbunden.
Zusätzliche Architektenleistungen wie eine individuelle Entwässerungsplanung (inkl. Rigolensystem oder Versickerungsanlage) sowie die Vermessung gemäß aktueller Bau- und Leistungsbeschreibung runden das Gesamtpaket ab.
Lage
Hinweis zum Grundstück:
Bitte hab Verständnis dafür, dass wir Fragen rund um das Grundstück ausschließlich im Rahmen eines persönlichen Beratungstermins besprechen können. So stellen wir sicher, dass wir auf deine Wünsche und Vorstellungen individuell eingehen können.
Nicht das richtige Grundstück dabei? Nutze gern den kostenlosen Grundstücksservice von uns, der dir dabei hilft, passende Grundstücke in deiner Wunschregion zu finden - kompetent und mit persönlicher Unterstützung.
Wir freuen uns auf deine Kontaktaufnahme und ein erstes Gespräch!
Sonstige Angaben
Ein Zuhause, das genauso individuell ist wie Sie
Dieses Angebot umfasst Ihr projektiertes Ausbauhaus inklusive Bodenplatte - gemeinsam mit dem passenden Bauplatz, auf dem Ihre Zukunft Wurzeln schlagen kann.
Doch was ein Haus wirklich zu einem Zuhause macht, das sind Ihre Ideen, Ihre Wünsche - und genau darauf stimme ich alles mit Ihnen ab. Ob handwerklich erfahrener oder kompletter Neueinsteiger: Ich begleite Sie dabei, ein Ausbaupaket zu finden, das genau zu Ihnen passt.
Der Aufbau Ihres Hauses? In nur 2 bis 4 Tagen steht das Herzstück Ihrer Zukunft. Die restlichen Schritte besprechen wir ganz in Ruhe und persönlich - so, wie man es macht, wenn man gemeinsam etwas Besonderes schafft.
Denn jeder Mensch bringt eigene Fähigkeiten mit - deshalb biete ich Ihnen verschiedene Ausbauvarianten an, aus denen wir Ihr ganz persönliches Zuhause entstehen lassen. Ich freue mich darauf, diesen Weg mit Ihnen zu gehen.
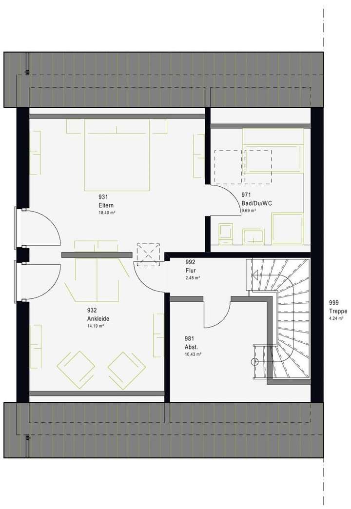
Grundriss
45157-3483-3-g
>
>
45158-3483-4-g
>
>
45159-3483-5-g
>
>
Adresse
84100 Niederaichbach
Interessante Orte
Preis- und Lageinformationen
Preistrend für Bestandsimmobilien in Niederaichbach