Dieses Einfamilienhaus aus dem Jahr 1963 bietet rund 135 m² Wohnfläche und überzeugt vor allem durch seine traumhafte Lage: direkt am Feldrand, wo Rehe und Hasen zum Alltag gehören und die Natur zum Greifen nah ist. Das 1.250 m² große Grundstück ist liebevoll eingewachsen und schenkt ein Gefühl von Weite und Ruhe – perfekt für alle, die ein naturnahes Zuhause mit viel Gestaltungsfreiheit suchen.
Das Haus befindet sich in einem renovierungsbedürftigen Zustand und eignet sich ideal für Paare oder Familien, die Freude daran haben, ein Objekt mit Charakter Schritt für Schritt zu modernisieren und in ein persönliches Zuhause zu verwandeln. Die Fassade und einzelne Ausstattungsdetails warten auf frische Ideen, während solide Grundlagen bereits vorhanden sind: Eine Gasheizung aus dem Jahr 2016 sorgt für zuverlässige Wärme, Kunststofffenster mit 2-fach-Verglasung und Außenrollläden bieten eine funktionale Basis, und ein Glasfaseranschluss sichert eine stabile Internetverbindung.
Im Erdgeschoss empfängt Sie ein praktischer Eingangsbereich mit Garderobennische, von dem sich alle Räume erschließen. Der großzügige Wohn- und Essbereich überzeugt mit großen Fenstern und schönem Blick ins Grüne. Direkt daneben liegt die separate Küche mit Zugang zum Wintergarten – ein gemütlicher Rückzugsort für entspannte Stunden inmitten der Natur. Von hier aus gelangen Sie außerdem direkt in den Garten sowie auf den Hof mit Stellplätzen – ideal, um Einkäufe bequem zu verstauen oder frische Zutaten direkt aus dem Garten zu holen. Ein Tageslichtbad mit Badewanne, Dusche und WC rundet das Erdgeschoss ab.
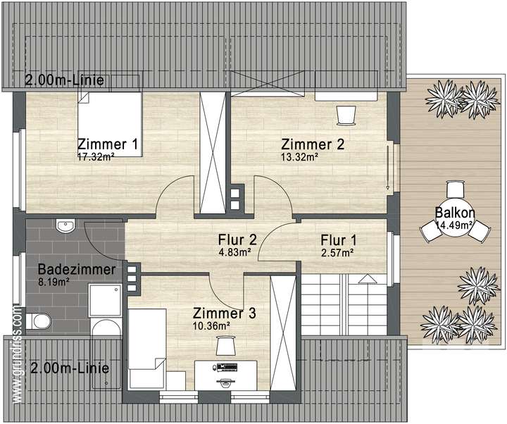
Im Obergeschoss stehen drei Zimmer zur Verfügung, die sich flexibel als Schlaf-, Kinder-, Gäste- oder Arbeitszimmer nutzen lassen. Eines davon verfügt über eine obere Terrasse mit herrlichem Blick über die angrenzenden Felder. Ein zweites Bad mit Tageslicht, Badewanne, Dusche und WC ergänzt die Etage.
Der Keller bietet mehr als nur Stauraum: Neben der Haustechnik finden Sie hier drei Lagerräume, eine Waschküche sowie den beheizten Raum unter dem Wintergarten mit direktem Zugang zum Garten und Hof – praktisch, um Wege kurz zu halten und Alltagsabläufe zu erleichtern.
Ergänzend steht auf dem Grundstück ein geräumiger Schuppen mit zusätzlichem Stauraum im Dachbereich zur Verfügung – perfekt für Gartengeräte, Fahrräder oder Hobbybedarf. Ein angrenzender Freizeitraum schafft zusätzlichen Platz für individuelle Nutzungsideen, etwa als Werkstatt, Hobbyraum oder kleine Wohlfühlecke.
Zwei Garagenstellplätze sowie weitere Parkmöglichkeiten im Hof vervollständigen das Angebot.
Wer den Charme älterer Häuser schätzt und das Potenzial erkennt, findet hier die perfekte Basis, um ein Zuhause mit Charakter in eine persönliche Wohlfühloase zu verwandeln – eingebettet in eine Lage, die Ruhe, Natur und Alltag auf wunderbare Weise verbindet.
Zwischen Feld und Freiheit – Einfamilienhaus mit Charme und Entwicklungspotenzial in Brechtorf
38471 Rühen
Die vollständige Adresse der Immobilie erhalten Sie vom Anbieter.
Auf Karte anzeigen
Die vollständige Adresse der Immobilie erhalten Sie vom Anbieter.
Finanzierungszertifikat
In nur zwei Minuten zu Ihrem persönlichen Finanzierungszertifkat.
Infos
| Haustyp | Einfamilienhaus |
|---|---|
| Wohnfläche ca. | 135 m2 |
| Grundstücksfläche | 1.250 m2 |
| Bezugsfrei ab | sofort |
| Zimmer | 4 |
| Schlafzimmer | 3 |
| Badezimmer | 2 |
| Garage/Stellplatz | Garage |
| Anzahl Garage/Stellplatz | 5 |
Kosten
| Kaufpreis |
249.000 € |
|---|---|
| Provision |
3,57 % Käuferprovision inkl. gesetzl. MwSt. Die Käufer-Provision beträgt 3,57% vom Kaufpreis inkl. MwSt. Die Käufer-Provision ist verdient und fällig mit notarieller Beurkundung. Der Immobilienmakler hat einen provisionspflichtigen Maklervertrag in gleicher Höhe mit dem Verkäufer abgeschlossen. |
Finanzierungsrechner:
Kaufpreis:
600.000 €
Eigenkapital:
600.000 €
Monatliche Rate
0 €
Effektiver Jahreszins
0 %
Sollzinsbindung
10 Jahre
Bausubstanz & Energieausweis
| Baujahr | 1963 |
|---|---|
| Objektzustand | Renovierungsbedürftig |
| Heizungsart | Gas-Heizung |
| Wesentliche Energieträger | Gas |
| Energieausweis | liegt vor |
| Energieausweistyp | Bedarfsausweis |
| Energieverbrauchskennwert | 435,6 kWh/(m²*a) |
| Energieeffizienzklasse | H |
435,6
kWh/(m²*a)
Energieeffizienzklasse H
- A+
- A
- B
- C
- D
- E
- F
- G
- H
- 0
- 25
- 50
- 75
- 100
- 125
- 150
- 175
- 200
- 225
- >250
Beschreibung des Objekts
Ausstattung
• Massivbauweise
• Feldrandlage
• renovierungsbedürftig
• großer Wohn- und Essbereich
• Kamin(e) möglich
• beheizter Wintergarten (2006)
• …mit Blick ins Grüne und Zugang in den Garten
• Küche im eigenen Raum inkl. Einbauküche
• 2 Badezimmer im EG und OG
• 1 Badezimmer im Keller
• 3 Schlafzimmer
• 2-fach verglaste Kunststofffenster (2015)
• Außenrollläden
• Glasfaseranschluss
• Gasheizung (2016)
• Keller teilweise beheizt und für Hobbys oder als Gästezimmer nutzbar
• zwei Garagenstellplätze & weitere Stellplätze auf dem Hof
• großzügiger Garten mit Nutzgartenflächen
Lage
Brechtorf ist ein Ortsteil der Gemeinde Rühen im Landkreis Gifhorn und liegt nur wenige Minuten von Wolfsburg entfernt. Die ruhige Feldrandlage macht den kleinen Ort besonders für Familien attraktiv, die naturnah wohnen und dennoch schnell in der Stadt sein möchten. Hier genießt man den Blick ins Grüne, eine angenehme Nachbarschaft und ein ländliches Umfeld mit hoher Lebensqualität.
Der Ort selbst bietet eine erstaunlich gute Infrastruktur: Es gibt einen Kindergarten, einen aktiven Sportverein mit eigenem Sportheim für verschiedene Sportarten, eine Praxis für Krankengymnastik, einen Reitstall sowie einen Raiffeisen-Markt. Darüber hinaus liegt der Wald nur wenige Schritte entfernt und eröffnet vielfältige Möglichkeiten für Spaziergänge, Laufrunden und Radtouren durch Wald und Feldmark – perfekt für alle, die Natur und Bewegung lieben.
Im nahegelegenen Rühen finden sich weitere Einrichtungen des täglichen Bedarfs: eine Grund-, Haupt- und Realschule, Ärzte, Friseure, eine Apotheke, Sparkasse, Tankstelle, zwei Supermärkte, eine Bäckerei sowie ein Fitnessstudio.
Die Nähe zu Wolfsburg sorgt für kurze Wege zu Arbeitgebern, Einkaufsmöglichkeiten und kulturellen Angeboten – und macht Brechtorf zu einem Wohnort, der Ruhe, Natur und Alltag auf besonders harmonische Weise miteinander verbindet.
Sonstige Angaben
Gerne sind wir für weitere Fragen und Informationen unter Tel. 05361/83446-70 erreichbar.
Bei Kauf verpflichtet sich der Käufer an die Kristin Krumm Immobilien GmbH eine Maklerprovision in der angegebenen Höhe nach notariellem Kaufvertrag zu leisten. Durch Ihre Objektanfrage bestätigen Sie die Vereinbarung und Anerkennung dieser Maklercourtage.
Anfragen über die Immobilienportale werden nur mit vollständiger Adresse und Telefonnummer bearbeitet.
HAFTUNGSAUSSCHLUSS: Alle Angaben stammen vom Eigentümer. Trotz regelmäßiger Prüfung von Daten, Bildern und Informationen übernehmen wir keine Haftung für die Richtigkeit der Angaben. Ebenso wenig für die Verfügbarkeit des Angebotes.
Es gelten unsere Allgemeinen Geschäftsbedingungen.
Grundriss
Grundriss Erdgeschoss
>
>
Grundriss Obergeschoss
>
>
Grundriss Kellergeschoss
>
>
Adresse
38471 Rühen
Interessante Orte
Preis- und Lageinformationen
Preistrend für Bestandsimmobilien in Rühen