Dieses charmante Einfamilienhaus in massiver Mauerwerksbauweise präsentiert sich in ruhiger und familienfreundlicher Lage von Burgwedel-Wettmar. Die klassische Architektur und die gut durchdachte Raumaufteilung bieten einen besonders angenehmen Wohnkomfort. Die 135 m² ebenerdige Wohnfläche bieten sowohl Paaren als auch Familien ideale Voraussetzungen.
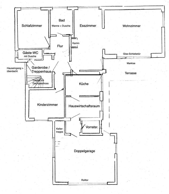
Herzstück des Hauses ist der großzügige Wohn- und Essbereich, ausgestattet mit hochwertigem Parkettboden und Kamin. Große Fensterflächen lassen viel Tageslicht herein und ermöglichen einen weitläufigen Blick in den Garten. Aus dem Wohn- und Esszimmer gelangen Sie direkt auf die großzügige, überdachte Westterrasse mit elektrischer Markise. Auch die voll ausgestattete Küche hat einen direkten Zugang zur Terrasse.
Das Haus verfügt über zwei Bäder: ein Gäste-Duschbad sowie ein großzügiges, voll ausgestattetes Bad mit Dusche und Badewanne. Der Lichteinfall in Schlafzimmer und Esszimmer mit Ostausrichtung sorgt für einen optimalen Start in den Tag.
Wertvolles Ausbaupotenzial befindet sich unter dem Walmdach, im großzügigen Dachboden, ausgestattet mit allen nötigen Anschlüssen.
Technisch ist die Immobilie bestens aufgestellt mit Glasfaseranschluss und Gasbrennwertheizung aus dem Jahr 2023, die für einen für energieeffizienten Betrieb sorgt. Die solide Massivbauweise schafft darüber hinaus eine langfristige, wertstabile Grundlage.
Die Immobilie kann zusätzlich zum Haupteingang auch direkt durch die geräumige Doppelgarage mit elektrischem Garagentor betreten werden. Von dort führt auch eine Treppe in den geräumigen, ca. 47 qm großen Keller. Der Garten ist weitläufig angelegt und bietet mit einer großen Rasenfläche und separatem Nutzgarten vielfältige Möglichkeiten und kann durch einen hauseigenen Brunnen bewässert werden.
Dieses Einfamilienhaus vereint solide Bauqualität mit einem sehr durchdachten Grundriss auf einer Ebene und attraktivem Erweiterungspotenzial – eine seltene Gelegenheit in bester Lage von Wettmar.
Von Privat: Einfamilienhaus mit Ausbaupotential in Wettmar
30938 Burgwedel
Die vollständige Adresse der Immobilie erhalten Sie vom Anbieter.
Auf Karte anzeigen
Die vollständige Adresse der Immobilie erhalten Sie vom Anbieter.
Finanzierungszertifikat
In nur zwei Minuten zu Ihrem persönlichen Finanzierungszertifkat.
Infos
| Haustyp | Einfamilienhaus |
|---|---|
| Wohnfläche ca. | 135 m2 |
| Grundstücksfläche | 778 m2 |
| Zimmer | 4 |
| Schlafzimmer | 2 |
| Badezimmer | 2 |
Kosten
| Kaufpreis |
550.000 € |
|---|---|
| Provision | Nein |
Finanzierungsrechner:
Kaufpreis:
600.000 €
Eigenkapital:
600.000 €
Monatliche Rate
0 €
Effektiver Jahreszins
0 %
Sollzinsbindung
10 Jahre
Bausubstanz & Energieausweis
| Baujahr | 1986 |
|---|---|
| Letzte Sanierung | 2023 |
| Qualität der Austattung | Gehoben |
| Heizungsart | Gas-Heizung |
| Wesentliche Energieträger | Gas |
| Energieausweis | liegt zur Besichtigung vor |
Beschreibung des Objekts
Lage
Dieses Einfamilienhaus befindet sich im beliebten Burgwedeler Ortsteil Wettmar, in einer ruhigen und gepflegten Wohnsiedlung mit Einfamilienhäusern. Durch die Nähe zum Feldrand und Wald genießen Sie hier eine angenehm grüne, naturnahe Wohnlage mit hohem Erholungswert.
Wettmar bietet eine hervorragende Infrastruktur direkt vor Ort: Supermärkte, Ärzte, eine Apotheke, ein Restaurant, eine Bäckerei, Kita, Kindergarten und die Grundschule sind bequem zu Fuß oder mit dem Fahrrad zu erreichen. Die Grundschule liegt nur ca. 10 Gehminuten entfernt, der Kindergarten etwa 7 Gehminuten – ideal für Familien mit kleinen Kindern.
Das nur rund 5 Minuten entfernte Großburgwedel erweitert das Angebot auf ideale Weise. Hier finden Sie vielfältige Einkaufsmöglichkeiten, zahlreiche Restaurants, alle Schulformen, Ärzte aller Fachrichtungen inklusive eines Krankenhauses, ein Freibad, Fitnessstudios und vieles mehr.
Die Umgebung rund um Wettmar besticht durch weite Wiesen, Weiden und Wälder – ideal zum Spazierengehen, Joggen, Radfahren oder Reiten. Mehrere Sportvereine sowie verschiedene Golfclubs in der Region bieten ein breites Spektrum an Freizeitmöglichkeiten.
Dank der Nähe zur A7 und A2 ist Wettmar hervorragend angebunden. Über Landstraße, Autobahn oder Messeschnellweg erreichen Sie die hannoversche Innenstadt in ca. 20 Minuten und den Flughafen Hannover-Langenhagen in ca. 25 Minuten.
Mit der Regionalbahn ab Großburgwedel profitieren Sie zudem von einer schnellen ÖPNV-Anbindung: Im Stundentakt gelangen Sie nach Hannover (ca. 17 Min.) oder Celle (ca. 9 Min.).
Sonstige Angaben
Die Vorteile auf einen Blick:
• Ebenerdiges Einfamilienhaus mit ca. 135 m² Wohnfläche
• Massive Mauerwerksbauweise mit klassischem Walmdach
• Großzügiger Wohn- und Essbereich mit hochwertigem Parkettboden und Kamin
Rolläden in Schlaf, Wohn- und Esszimmer, Kinderzimmer, Hauswirtschaftsraum und Bädern.
• Überdachte Westterrasse mit elektrischer Markise
• Zwei Bäder: Gäste-Duschbad + Vollbad mit Dusche und Badewanne
• Ausbaubarer Dachboden mit zusätzlichem Flächenpotenzial und bereits verlegten Anschlüssen
• Moderne Gasbrennwertheizung von 2023
• Große Doppelgarage und komfortable Zufahrt mit elektrischem Garagentor
• Ruhige Wohnlage, nahe dem Feldrand und Wald
• Grundschule und Kindergarten in ca. 10 Minuten fußläufig erreichbar
• Weitläufiger Garten mit vielen Nutzungsmöglichkeiten
Grundriss
Grundriss Erdgeschoss
>
>
Adresse
30938 Burgwedel
Interessante Orte
Preis- und Lageinformationen
Preistrend für Bestandsimmobilien in Burgwedel