Ihr neues Zuhause mit viel Potenzial: Gestalten Sie dieses Reihenmittelhaus in der Göttinger Weststadt nach Ihren Wünschen!
Willkommen in einer Immobilie, die nur darauf wartet, von Ihnen wachgeküsst zu werden. Dieses solide, in massiver Bauweise ca.1936 errichtete Reihenmittelhaus bietet auf ca. 113 m² Wohnfläche und mit insgesamt 6 Zimmern eine außergewöhnliche Leinwand für Ihre Wohnträume. Die Immobilie präsentiert sich in einem renovierungsbedürftigen Zustand – die perfekte Gelegenheit für Handwerker, Kreative und Familien, die ein Zuhause mit Charakter suchen und es von Grund auf nach eigenen Vorstellungen sanieren und modernisieren möchten.
Die Substanz des Hauses ist vielversprechend. Das Haus ist zudem voll unterkellert und bietet auf ca. 38 m² Nutzfläche wertvollen Stauraum für Hobby, Vorräte oder eine Werkstatt.
Das Wohngefühl wird durch die attraktiven Außenbereiche definiert. Das Grundstück umfasst ca. 177 m² und bietet damit ausreichend Platz für einen charmanten Garten hinter dem Haus – eine grüne Oase mitten in der Stadt. Die großzügige Terrasse mit einer Fläche von ca. 20 m² (anteilig mit Balkon) lädt zu entspannten Sommerabenden ein, während der zusätzliche Balkon einen schönen Rückzugsort an der frischen Luft bietet.
Mit insgesamt 6 Zimmern, darunter 4 potenziellen Schlafzimmern, bietet das Haus eine flexible Raumstruktur für Familien, Paare mit Home-Office-Bedarf oder als Mehrgenerationenprojekt. Nutzen Sie die seltene Chance, in einer zentralenund dennoch ruhigen Göttinger Lage ein Haus mit solider Basis und enormem Entwicklungspotenzial zu erwerben.Nachfolgend presentieren wir Ihnen für jeden Raum eine Viualisierung, wie die Räume nach der Renovierung und Sanierung aussehen könnten.
Reihenmittelhaus in Top Lage mit viel Potenzial
37081 Göttingen
Die vollständige Adresse der Immobilie erhalten Sie vom Anbieter.
Auf Karte anzeigen
Die vollständige Adresse der Immobilie erhalten Sie vom Anbieter.
Finanzierungszertifikat
In nur zwei Minuten zu Ihrem persönlichen Finanzierungszertifkat.
Infos
| Haustyp | Reihenmittelhaus |
|---|---|
| Etagenzahl | 4 |
| Wohnfläche ca. | 113 m2 |
| Nutzfläche | 38 m2 |
| Grundstücksfläche | 229 m2 |
| Bezugsfrei ab | sofort |
| Zimmer | 6 |
| Schlafzimmer | 5 |
| Badezimmer | 1 |
Kosten
| Kaufpreis |
249.000 € |
|---|---|
| Provision | Nein |
Finanzierungsrechner:
Kaufpreis:
600.000 €
Eigenkapital:
600.000 €
Monatliche Rate
0 €
Effektiver Jahreszins
0 %
Sollzinsbindung
10 Jahre
Bausubstanz & Energieausweis
| Baujahr | 1936 |
|---|---|
| Objektzustand | Renovierungsbedürftig |
| Qualität der Austattung | Einfach |
| Heizungsart | Zentralheizung |
| Wesentliche Energieträger | Gas |
| Energieausweis | liegt vor |
| Energieausweistyp | Bedarfsausweis |
| Energieverbrauchskennwert | 212,0 kWh/(m²*a) |
| Energieeffizienzklasse | G |
212,0
kWh/(m²*a)
Energieeffizienzklasse G
- A+
- A
- B
- C
- D
- E
- F
- G
- H
- 0
- 25
- 50
- 75
- 100
- 125
- 150
- 175
- 200
- 225
- >250
Beschreibung des Objekts
Ausstattung
Enormes Gestaltungspotenzial: Renovierungsbedürftige Basis zur Verwirklichung eigener Wohnvorstellungen.
Solide Bausubstanz: Massivbauweise aus dem Jahr 1936.
Flexibler Grundriss: 6 Zimmer, davon 4 als Schlafzimmer nutzbar, auf ca. 113 m² Wohnfläche.
Großzügiger Keller: Voll unterkellert mit ca. 38 m² Nutzfläche für Hobby und Lagerung.
Eigene zuwegung. Über das 52 M² Grundstück das ihnen zu 50% mit dem Nachbarn gehört haben Sie die möglichkeit ihren Garten zu befahren.
Sonne genießen: Große Terrasse und separater Balkon (zusammen ca. 20 m² Fläche).
Praktisch: Ein Badezimmer sowie ein separates Gäste-WC vorhanden.
Lage
Die Immobilie liegt in einer ruhigen Wohnstraße im westlichen Stadtbereich von Göttingen – angenehm zurückgezogen, zugleich mit kurzen Wegen in die Innenstadt. Das Umfeld ist gewachsen und gepflegt, mit überwiegend wohnbaulicher Prägung. Einkaufsmöglichkeiten für den täglichen Bedarf, Bäcker, Cafés, Restaurants, Ärzte und Apotheken erreichen Sie bequem zu Fuß oder per Fahrrad. Familien profitieren von nahegelegenen Kitas und Schulen, Berufspendler von der guten ÖPNV-Anbindung in Richtung Zentrum, Bahnhof und Universitätsstandorte.
Für Freizeit und Erholung bietet die Lage ideale Voraussetzungen: Grünflächen und Spielplätze sind schnell erreicht, ebenso beliebte Naherholungsziele der Stadt wie der Göttinger Stadtwald, der Kiessee oder die historische Altstadt mit ihren Fachwerkfassaden und dem Wochenmarkt. Joggen, Spazieren, Eisdiele oder Abendessen – alles liegt nah beieinander.
Die verkehrliche Anbindung ist stark: Buslinien in die City und zum Bahnhof, zügiger Anschluss an die B-Straßen sowie an die A7 für regionale und überregionale Ziele. So verbindet diese Adresse ruhiges Wohnen mit urbaner Infrastruktur – eine solide, nachgefragte Lage innerhalb Göttingens.
Sonstige Angaben
Gerne sind wir für weitere Fragen und Informationen unter Tel.: 015788729211 erreichbar.
Tipp-Provision!!
Sie kennen jemanden, der seine Immobilie veräußern möchte? Wir sind ständig für unsere Kunden auf der Suche nach geeigneten Objekten. Bei erfolgreicher Vermittlung und Vertragsabschluss zahlen wir Ihnen als Dankeschön eine Tipp-Provision! Nähere Informationen auf Anfrage.
HAFTUNGSAUSSCHLUSS: Trotz regelmäßiger Prüfung von Daten, Bildern und Informationen übernehmen wir keine Haftung für die Richtigkeit der Angaben. Ebenso wenig für die Verfügbarkeit des Angebotes bei Vermietung oder Verkauf. Es gelten unsere Allgemeinen Geschäftsbedingungen.
GELDWÄSCHE: Als Immobilienmaklerunternehmen ist die Bricks & Mortar Immobilien National GmbH nach § 2 Abs. 1 Nr. 14 und § 11 Abs. 1, 2 Geldwäschegesetz (GwG) dazu verpflichtet, bei der Begründung einer Geschäftsbeziehung die Identität des Vertragspartners festzustellen und zu überprüfen, bzw. sobald ein ernsthaftes Interesse an der Durchführung des Immobilienkaufvertrages besteht. Hierzu ist es erforderlich, dass wir nach § 11 Abs. 4 GwG die relevanten Daten Ihres Personalausweises festhalten (wenn Sie als natürliche Person handeln) – beispielsweise mittels einer Kopie. Bei einer juristischen Person benötigen wir eine Kopie des Handelsregisterauszugs, aus welchem der wirtschaftlich Berechtigte hervorgeht. Das Geldwäschegesetz sieht vor, dass der Makler die Kopien bzw. Unterlagen fünf Jahre aufbewahren muss. Als unser Vertragspartner haben Sie auch eine Mitwirkungspflicht nach § 11 Abs. 6 GwG.
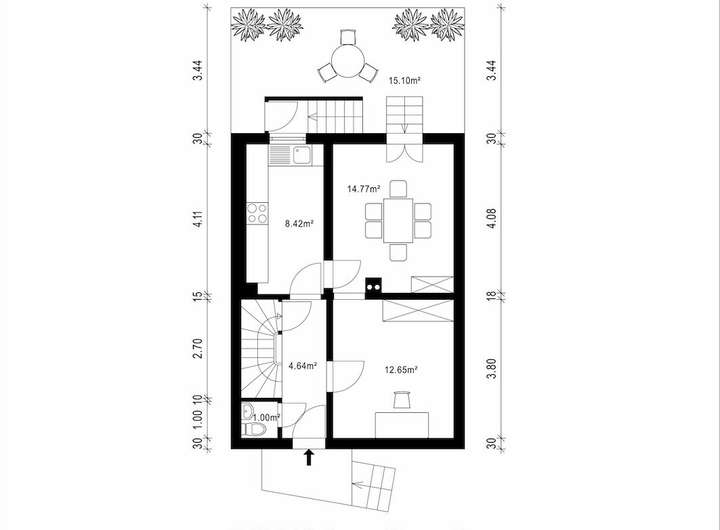
Grundriss
Obergeschoss
>
>
Erdgeschoss
>
>
Keller
>
>
Dachgeschoss
>
>
Adresse
37081 Göttingen
Interessante Orte
Preis- und Lageinformationen
Preistrend für Bestandsimmobilien in Göttingen