Angeboten wird ein Baugrundstück mit einer Gesamtgröße von ca. 2.453,00 m² und eine bereits vorhandene Projektierung für 2 Gebäude bestehend aus Haus A und C in einem allgemeinen Wohngebiet (WA).
Haus A (GRZ 0,4 und GFZ 1,2) ist als 3 geschossiges Wohn- und Geschäftshaus mit einer Wohn- und Mietfläche von ca. 2.696,56 m² geplant und als Seniorenresidenz mit 28 Wohneinheiten samt Tiefgarage konzipiert.
Haus C (GRZ 0,4 und GFZ 0,8) ist ein 2 geschossiges Wohn - und Geschäftshaus mit einer Wohn- und Mietfläche von ca. 312,75 m² und als Dienstleistungsgebäude mit 2 Wohnungen angelegt.
Der Neubaukomplex liegt in einem gut angebundenen Wohngebiet in zentrumsnaher Lage Bremerhavens.
Die Planung sieht einen modernen Wohn- und Geschäftskomplex mit einem ausgewogenen Mix aus Seniorenwohnungen, regulärem Wohnraum und ergänzenden Gewerbeflächen vor.
Nochmal das Wichtigste in Kürze:
• Grundstücksfläche: ca. 2.453,00 m²
• Allgemeines Wohngebiet (WA)
• Vorhandene Projektierung für 2 Gebäude
• Sofortiger Baustart möglich durch bestehende Baugenehmigung
• Gute Anbindung an Infrastruktur, Nahversorgung und ÖPNV
• Tiefgarage geplant
• Fahrstuhl geplant
• Option auf das gegenüberliegende Grundstück ebenfalls mit vorhandener Projektierung
Gelegenheit! Projektiertes Baugrundstück für 2 Wohn- und Geschäftshäuser mit Baugenehmigung
Georg Büchner Straße 16-18a,
27574 Bremerhaven
Auf Karte anzeigen
Finanzierungszertifikat
In nur zwei Minuten zu Ihrem persönlichen Finanzierungszertifkat.
Infos
| Vermarktungsart | Kaufen |
|---|---|
| Grundstücksfläche | 2.453 m2 |
| Erschließung | Erschlossen |
| Grundflächenzahl (GRZ) | 0.4 |
| Geschossflächenzahl (GFZ) | 1.2 |
| Verfügbar ab | sofort |
Kosten
| Miete pro Jahr |
790.000 € |
|---|---|
| Provision |
5,95% inkl. 19% MwSt. des beurkundeten Kaufpreises. |
Finanzierungsrechner:
Kaufpreis:
600.000 €
Eigenkapital:
600.000 €
Monatliche Rate
0 €
Effektiver Jahreszins
0 %
Sollzinsbindung
10 Jahre
Beschreibung des Objekts
Lage
Die Immobilie befindet sich im Bremerhavener Stadtteil Geestemünde einem etablierten und gut angebundenen Wohngebiet in zentrumsnaher Lage. Die Umgebung zeichnet sich durch eine gewachsene Infrastruktur und eine ruhige, aber verkehrsgünstige Anbindung aus.
Der Standort ist hervorragend in das Bremerhavener Nahverkehrsnetz eingebunden: Die Buslinien 506 und 507 verkehren in direkter Nähe und bieten eine schnelle Anbindung an das Stadtzentrum, den Hauptbahnhof sowie angrenzende Stadtteile. Der Bremerhavener Hauptbahnhof ist in wenigen Minuten erreichbar, ebenso wie die Havenwelten, das Krankenhaus Reinkenheide und weitere zentrale Einrichtungen.
Einkaufsmöglichkeiten, Apotheken, Ärzte, Cafés und soziale Einrichtungen befinden sich in unmittelbarer Umgebung und sind bequem zu Fuß erreichbar. Die Lage bietet somit ideale Voraussetzungen für Wohnkonzepte mit Service, betreutes Wohnen oder urbane Mikroapartments – eingebettet in ein lebenswertes, gut erschlossenes Umfeld.
Sonstige Angaben
Gerne stehen wir Ihnen für weitere Auskünfte und für die Vereinbarung eines Besichtigungstermins zur Verfügung.
Objektnummer: 826526
Um Ihre Anfrage schnellstmöglich bearbeiten zu können, bitten wir Sie Ihre vollständigen Kontaktdaten mit anzugeben. Vielen Dank.
HBV-Immobilien haftet nicht und gibt auch keine Gewähr für die Richtigkeit oder Aktualität der Informationen über das Auftragsobjekt, welche vom Auftraggeber oder Dritten zur Verfügung gestellt wurden. Änderungen, Irrtum und Zwischenverkauf vorbehalten.
Mit der Inanspruchnahme unserer Maklerleistungen, einschließlich der Anforderung eines Exposés, schließt der Interessent einen Maklerauftrag mit HBV-Immobilien e.K., Bremer Str. 64, 27749 Delmenhorst. Der Käufer zahlt nach Beurkundung des gewünschten Grundstückskaufvertrags, eine Käuferprovision in Höhe von 5,95% inkl. 19% MwSt. des notariell beurkundeten Kaufpreises.
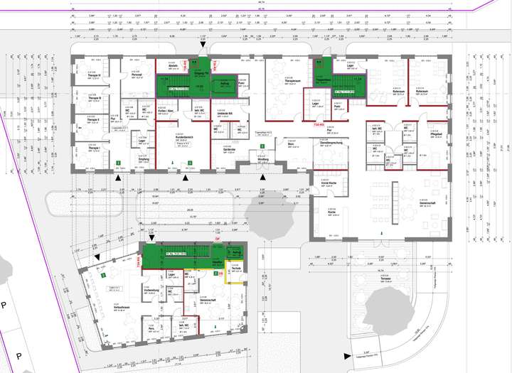
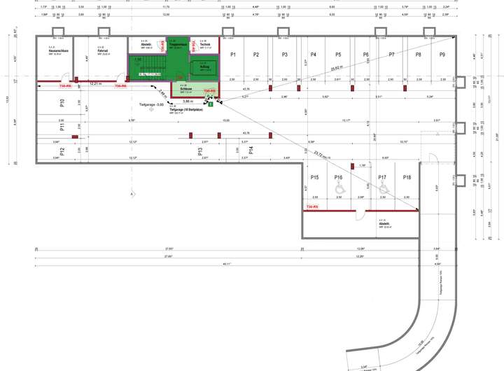
Grundriss
Haus A+C - Erdgeschoss
>
>
Haus A+C - I. Obergeschoss
>
>
Haus A - II. Obergeschoss
>
>
Haus A - Staffelgeschoss
>
>
Haus A - Untergeschoss
>
>