Diese moderne und barrierefreie 3,5-Zimmer-Wohnung im 2. Obergeschoss eines neuwertigen 11-Parteienhauses bietet Ihnen höchsten Wohnkomfort in zentraler und beliebter Lage von Neu-Ulm/Pfuhl. Die im Jahr 2020 errichtete Immobilie erfüllt moderne Wohnansprüche – sowohl in puncto Ausstattung als auch Energieeffizienz.
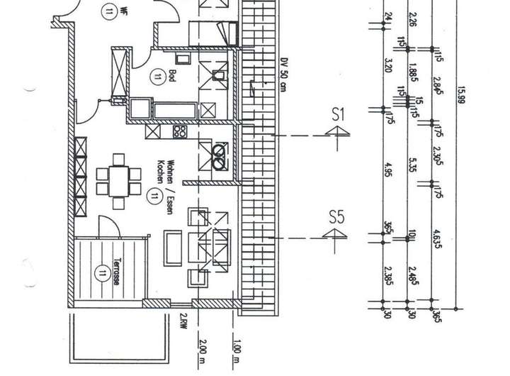
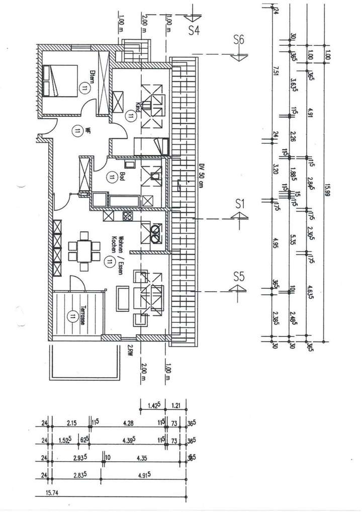
Die sonnendurchflutete 3,5 Zimmer-Wohnung ist zur Rückseite des Gebäudes in eine ruhige Seitenstraße hin ausgerichtet. Sie ist mit Echtholzparkett und Fliesenböden ausgestattet, verfügt über 2 Schlafzimmer, eine moderne Einbauküche, ein Tageslichtbad mit bodengleicher Dusche, und einen geräumigen Flur. Vom offen gestalteten Wohn-, Ess-, und Kochbereich aus gelangen Sie auf die Loggia und können hier in Süd-Ostausrichtung die Aussicht in die ruhige Umgebung genießen.
Mit dem Aufzug gelangen Sie bequem zu den Kellerräumen und in die Tiefgarage. Hausmeisterservice sowie ein Keller-, Fahrrad- und Trockenraum runden dieses Angebot ab.
In der Tiefgarage steht Ihnen praktischerweise ein Stellplatz zur Verfügung, welcher für € 28.000,00 zusätzlich zu erwerben ist. Zudem wurde das Gebäude aktuell mit einer neuen PV-Anlage ausgestattet.
MODERNE 3,5-ZIMMER DG-WOHNUNG MIT LOGGIA, LIFT, TG-STELLPLATZ UND PV-ANLAGE
89233 Neu-Ulm
Die vollständige Adresse der Immobilie erhalten Sie vom Anbieter.
Auf Karte anzeigen
Die vollständige Adresse der Immobilie erhalten Sie vom Anbieter.
Finanzierungszertifikat
In nur zwei Minuten zu Ihrem persönlichen Finanzierungszertifkat.
Infos
| Wohnungskategorie | Etagenwohnung |
|---|---|
| Etage | 2 von 3 |
| Wohnfläche ca. | 92 m2 |
| Zimmer | 3,5 |
| Schlafzimmer | 2 |
| Badezimmer | 1 |
| Garage/Stellplatz | Tiefgarage |
Kosten
| Kaufpreis |
419.000 € |
|---|---|
| Preis für Garage/Stellplatz | 28.000 € |
| Provision |
3,57 % inkl. MwSt. |
Finanzierungsrechner:
Kaufpreis:
600.000 €
Eigenkapital:
600.000 €
Monatliche Rate
0 €
Effektiver Jahreszins
0 %
Sollzinsbindung
10 Jahre
Bausubstanz & Energieausweis
| Baujahr | 2020 |
|---|---|
| Objektzustand | Neuwertig |
| Qualität der Austattung | Gehoben |
| Heizungsart | Fußbodenheizung |
| Wesentliche Energieträger | Pelletheizung |
| Energieausweis | liegt vor |
| Energieausweistyp | Bedarfsausweis |
| Energieverbrauchskennwert | 68,3 kWh/(m²*a) |
| Energieeffizienzklasse | B |
68,3
kWh/(m²*a)
Energieeffizienzklasse B
- A+
- A
- B
- C
- D
- E
- F
- G
- H
- 0
- 25
- 50
- 75
- 100
- 125
- 150
- 175
- 200
- 225
- >250
Beschreibung des Objekts
Ausstattung
– Massivbauweise - 2020
– Echtholzparkett und Fliesenböden
– Isolierverglasung dreifach mit elektrischen Jalousien
– Tageslichtbad mit Waschmaschinenanschluss
– Markeneinbauküche inkl. Elektrogroßgeräten
– Sicherheitseingangstür
– Fußbodenheizung
– Pelletheizung
– PV-Anlage - 2025
– Loggia mit Süd-Ostausrichtung
– Personenaufzug
– Tiefgaragenstellplatz zuzüglich € 28.000,00
– Keller-, Fahrrad- und Trockenraum
– Hausmeisterservice
Lage
Pfuhl liegt ungefähr 3 km nordöstlich von Neu-Ulm und gehört zu den begehrtesten und einwohnerreichsten Stadtteilen der Kreisstadt. Kindergärten, Grundschulen, weiterführende Schulen, zahlreiche Einkaufsmöglichkeiten, Ärzte und Banken sind vorhanden und gut zu erreichen.
In nur wenigen Autominuten erreichen Sie die Innenstädte von Neu-Ulm und Ulm. Eine schnelle Anbindung an die Autobahnen A7 und A8 ist über die nahegelegene B10 gegeben. Eine regelmäßige Busverbindung ist ebenfalls gewährleistet. Zudem verfügt Pfuhl mit dem Badesee im Naherholungsgebiet, dem Golfplatz und seiner Umgebung über zahlreiche Freizeitmöglichkeiten.
Sonstige Angaben
Wir sind der allein beauftragte Makler und freuen uns auf Sie und Ihre Anfrage und einen Besichtigungstermin mit Ihnen in dieser beliebten Lage.
Wir weisen Sie darauf hin, dass sämtliche Objektinformationen vom Eigentümer stammen. Eine Gewähr für deren Richtigkeit oder Vollständigkeit können wir daher nicht übernehmen.
Der Grundriss ist nicht maßstabsgetreu.
Wir vermitteln - mit Sicherheit.
Grundriss
Grundriss
>
>
ImmoScout24 Gold Partner
>
>
Top 10 Immobilienpreis
>
>
Immowelt Platin Partner
>
>
Adresse
89233 Neu-Ulm
Interessante Orte
Preis- und Lageinformationen
Preistrend für Bestandsimmobilien in Neu-Ulm