Diese außergewöhnliche, denkmalgeschützte Immobilie in Verden bietet auf einem großzügigen Grundstück von 1.071 m² ein enormes Entwicklungspotenzial in absolut zentraler Lage. Das historische Gebäude befindet sich zwar in einem stark sanierungsbedürftigen Zustand, überzeugt jedoch durch seine beeindruckende Substanz und einen spannenden Grundriss, der vielfältige Gestaltungsmöglichkeiten eröffnet. Mit rund 481 m² Wohnfläche und insgesamt 23 Zimmern sowie zusätzlichen 129 m² Nutzfläche, die sich auf den Spitzboden und Teilkeller aufteilen, eignet sich das Objekt ideal für Visionäre, die dieses historische Gebäude in eine moderne Nutzung überführen möchten.
Ob die Realisierung attraktiver Wohnformen, die Schaffung von Gewerbeflächen oder eine Kombination aus beidem, das Gebäude erlaubt zahlreiche Konzepte. Bereits erarbeitete Ansätze zeigen eindrucksvoll, welche Perspektiven sich hier bieten. Eine Nutzung als Arztpraxis oder medizinisches Zentrum, ein Wohncampus für Auszubildende und Pflegekräfte oder auch ein Boardinghouse sind ebenso denkbar wie weitere individuelle Ideen. Zudem besteht die Möglichkeit eines teilweisen Anbaus, um zusätzliche Flächen zu schaffen und das Projekt zielgerichtet zu erweitern.
Besonders attraktiv wird das Objekt durch die steuerlichen Vorteile, die mit der Sanierung eines denkmalgeschützten Gebäudes verbunden sind. Nach §§ 7h und 7i EStG können bis zu 100 % der anerkannten Sanierungskosten über zwölf Jahre steuerlich geltend gemacht werden. In den ersten acht Jahren jeweils bis zu 9 %, in den folgenden vier Jahren jeweils bis zu 7 %. Ergänzend greift die reguläre AfA für Altbauten mit jährlich 2,5 % gemäß § 7 Abs. 4 EStG. Diese Fördermöglichkeiten bieten erhebliche finanzielle Entlastungen und steigern die Wirtschaftlichkeit des Projekts erheblich.
Die Lage unmittelbar am Verdener Bahnhof unterstreicht den besonderen Wert der Immobilie. Die hervorragende Erreichbarkeit, die Nähe zu Einkaufsmöglichkeiten, Gastronomie und der Innenstadt sowie die ausgezeichnete Anbindung machen den Standort sowohl für Wohn- als auch Gewerbenutzungen äußerst attraktiv.
Insgesamt bietet dieses historische Gebäude eine seltene Gelegenheit, ein Stück Verdener Baukultur zu bewahren und zugleich ein zukunftsorientiertes Nutzungskonzept zu realisieren. Ein Projekt mit Charakter, Geschichte und Perspektive.
Projektentwickler aufgepasst: Vielseitig nutzbares Denkmal in bester Verkehrslage
27283 Verden (Aller)
Die vollständige Adresse der Immobilie erhalten Sie vom Anbieter.
Auf Karte anzeigen
Die vollständige Adresse der Immobilie erhalten Sie vom Anbieter.
Finanzierungszertifikat
In nur zwei Minuten zu Ihrem persönlichen Finanzierungszertifkat.
Infos
| Haustyp | Besondere Immobilie |
|---|---|
| Wohnfläche ca. | 481 m2 |
| Nutzfläche | 128,84 m2 |
| Grundstücksfläche | 1.071 m2 |
| Zimmer | 23 |
Kosten
| Kaufpreis |
680.000 € |
|---|---|
| Provision | Nein |
Finanzierungsrechner:
Kaufpreis:
600.000 €
Eigenkapital:
600.000 €
Monatliche Rate
0 €
Effektiver Jahreszins
0 %
Sollzinsbindung
10 Jahre
Bausubstanz & Energieausweis
| Baujahr | unbekannt |
|---|---|
| Denkmalschutzobjekt | Ja |
| Qualität der Austattung | Einfach |
| Energieausweis | laut Gesetz nicht erforderlich |
Beschreibung des Objekts
Ausstattung
- 23 Zimmer
- 481m² Wohnfläche
- Echtholzparkett
- Teilunterkellert
- Unausgebauter Spitzboden
- Großzügiges Grundstück
Lage
Die Immobilie befindet sich in ausgesprochen attraktiver und verkehrsgünstiger Lage von Verden (Aller), unmittelbar am Bahnhof und damit in einem der zentralsten und bestangebundenen Bereiche der Stadt. Diese Position verbindet eine hervorragende Infrastruktur mit kurzen Wegen in alle wichtigen Bereiche des täglichen Lebens und macht das Objekt sowohl für Wohn- als auch für gewerbliche Nutzungen überaus interessant.
Der unmittelbare Zugang zum Verdener Bahnhof bietet einen unschätzbaren Vorteil: Von hier aus bestehen schnelle und regelmäßige Verbindungen nach Bremen, Hannover und Nienburg, was die Immobilie ideal für Pendler, Berufstätige, Patienten oder Gäste macht. Die Nähe zu regionalen und überregionalen Bahnlinien sorgt für maximale Flexibilität – ganz ohne Auto. Auch der Busbahnhof liegt nur wenige Schritte entfernt und ermöglicht eine perfekte lokale Anbindung in alle Stadtteile und umliegenden Gemeinden.
Das direkte Umfeld ist geprägt von einer gewachsenen städtischen Struktur mit einer Mischung aus Wohnhäusern, kleineren Dienstleistungsbetrieben sowie Gastronomie- und Einzelhandelseinrichtungen. Zahlreiche Geschäfte des täglichen Bedarfs, Supermärkte, Bäckereien, ärztliche Versorgung und Apotheken sind fußläufig erreichbar. Ebenso schnell erreicht man die Verdener Innenstadt mit ihrer charmanten Fußgängerzone, vielfältigen Einkaufsmöglichkeiten, gemütlichen Cafés und abwechslungsreicher Gastronomie.
Auch für Freizeit und Erholung bietet die Lage hervorragende Bedingungen. Die Aller mit ihren grünen Uferbereichen und Radwegen liegt nur wenige Minuten entfernt und lädt zu Spaziergängen, Radtouren und sportlichen Aktivitäten ein. Schulen, Kindergärten, Sportvereine und kulturelle Einrichtungen wie das Theater oder das Historische Museum Verden befinden sich ebenfalls in komfortabler Nähe.
Die sehr gute Lage direkt am Bahnhof bedeutet zudem eine hohe Sichtbarkeit und Präsenz – ein wichtiger Faktor für alle, die das Gebäude geschäftlich nutzen möchten, etwa als Arztpraxis, Office-Standort oder Boardinghouse. Gleichzeitig profitieren Bewohner von einer perfekten Erreichbarkeit und kurzen Wegen im Alltag. Durch die zentrale Position ist die Nachfrage nach Wohn- und Gewerberaum in diesem Bereich traditionell hoch und wird auch langfristig als sehr stabil bewertet.
Insgesamt handelt es sich um eine Lage, die urbanes Leben, hervorragende Infrastruktur und angenehme Wohnqualität miteinander verbindet. Die Kombination aus direkter Bahnhofs¬nähe, Nähe zur Innenstadt und gewachsenem Stadtumfeld macht diese Adresse zu einem Standort mit erstklassigen Zukunftsperspektiven.
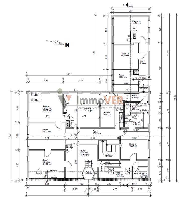
Grundriss
Grundriss EG
>
>
Grundriss OG
>
>
Grundriss KG
>
>
Grundriss Spitzboden
>
>
Adresse
27283 Verden (Aller)
Interessante Orte
Preis- und Lageinformationen
Preistrend für Bestandsimmobilien in Verden (Aller)