In der beliebten Wachmannstraße wartet dieses sanierungsbedürftige Reihenmittelhaus aus dem Jahr 1928 darauf, von Ihnen neu entdeckt und individuell gestaltet zu werden. Die rund 249 m² Wohnfläche verteilen sich auf insgesamt vier Etagen und einen ausgebautem Spitzboden. Mit einer Grundstücksfläche von rund 193 m² erleben Sie ein großzügiges Wohnerlebnis mitten in einem der beliebtesten Viertel der Stadt.
Die Immobilie verfügt über sieben Zimmer, drei Badezimmer und ein separates WC, sodass ausreichend Platz für unterschiedlichste Wohnkonzepte nach vollständiger Sanierung vorhanden ist. Es gibt zwei Balkone und eine Terrasse.
Die Räume sind lichtdurchflutet und bieten dank ihrer Größe und der hohen Decken ein luftiges, offenes Wohngefühl. Die Holztreppe verbindet alle Etagen miteinander und sollte restauriert werden.
Aktuell ist das Souterrain von der restlichen Wohnfläche abgetrennt und als eigenständige Wohneinheit nutzbar. Die vorhandene Verbindungstreppe zum Haupthaus wurde mit Holz verschlossen, lässt sich jedoch ohne Weiteres wieder öffnen, falls Sie die Souterrainwohnung in die restliche Wohnfläche integrieren möchten. Dank eigener Anschlüsse bleibt Ihnen jedoch auch die Möglichkeit, die separate Einheit als Gäste- oder Einliegerwohnung zu nutzen.
Das Haus bietet dabei eine ideale Grundlage, um es umfassend und nach Ihren ganz persönlichen Vorstellungen zu gestalten. Aufgrund eines Wasserschadens ist das Dach vollständig zu erneuern. Der Sanierungsbedarf bietet Ihnen aber auch die Freiheit, die historischen Elemente mit modernem Komfort zu vereinen und etwas ganz Besonderes zu schaffen. Ob ein großzügiges Einfamilienhaus oder eine Immobilie mit Einliegerwohnung – hier haben Sie die Möglichkeit, Ihre Visionen in die Realität umzusetzen und Ihr Traumhaus zu erschaffen. Vereinbaren Sie gerne Ihren persönlichen Besichtigungstermin mit uns.
Wohnen in der Wachmannstraße – Sanierungsbedürftiges Reihenhaus mit großem Potenzial
28209 Bremen
Die vollständige Adresse der Immobilie erhalten Sie vom Anbieter.
Auf Karte anzeigen
Die vollständige Adresse der Immobilie erhalten Sie vom Anbieter.
Finanzierungszertifikat
In nur zwei Minuten zu Ihrem persönlichen Finanzierungszertifkat.
Infos
| Haustyp | Reihenmittelhaus |
|---|---|
| Etagenzahl | 4 |
| Wohnfläche ca. | 249 m2 |
| Grundstücksfläche | 193 m2 |
| Zimmer | 7 |
| Badezimmer | 3 |
Kosten
| Kaufpreis |
590.000 € |
|---|---|
| Provision |
3,57% inkl. der gesetzlichen MwSt. bezogen auf den Kaufpreis |
Finanzierungsrechner:
Kaufpreis:
600.000 €
Eigenkapital:
600.000 €
Monatliche Rate
0 €
Effektiver Jahreszins
0 %
Sollzinsbindung
10 Jahre
Bausubstanz & Energieausweis
| Baujahr | 1928 |
|---|---|
| Objektzustand | Renovierungsbedürftig |
| Heizungsart | Etagenheizung |
| Wesentliche Energieträger | Gas |
| Energieausweis | liegt vor |
| Energieausweistyp | Bedarfsausweis |
| Energieverbrauchskennwert | 182,0 kWh/(m²*a) |
| Energieeffizienzklasse | F |
182,0
kWh/(m²*a)
Energieeffizienzklasse F
- A+
- A
- B
- C
- D
- E
- F
- G
- H
- 0
- 25
- 50
- 75
- 100
- 125
- 150
- 175
- 200
- 225
- >250
Beschreibung des Objekts
Ausstattung
_Reihenmittelhaus mit Einliegerwohnung
_Baujahr 1928
_ca. 249 m² Wohnfläche
_ca. 193 m² Grundstücksfläche
_vollständig sanierungsbedürftig
_Dacherneuerung erforderlich
_Gasheizung von 1999
_Vier Etagen
_Separate Souterrainwohnung
_Ausgebauter Spitzboden
_Sieben Zimmer
_Drei Badezimmer
_Ein separates WC
_Zwei Balkone
_Terrasse
_Garten
Lage
_die Immobilie befindet sich im Stadtteil Schwachhausen im beliebten Wachmannquartier
_die Lage gehört zu den zentralsten der Bremer City
_die Bebauung besteht überwiegend aus Villen & Altbremer Häusern
_Kitas, Schulen, Arztpraxen, Krankenhäuser und Einkaufsmöglichkeiten des täglichen Bedarfs sind zeitnah zu erreichen
_das beliebte Wachmannquartier begeistert mit Cafés, Restaurants und Bars
_der Hauptbahnhof und auch die Innenstadt liegen in unmittelbarer Nähe
_im direkt angrenzenden Bürgerpark können Sie Ihre Runden drehen oder einfach nur Entspannen
_Bus- und Straßenbahnlinien sowie den Holler- und Stadtwaldsee finden Sie fußläufig vor
_circa 15 Minuten benötigen Sie zum Flughafen und zur Bremer Universität circa fünf Minuten
_die Autobahnen A1 und A27 erreichen Sie ebenfalls in wenigen PKW Minuten
Sonstige Angaben
Haben wir Ihr Interesse geweckt?
Dann melden Sie sich gerne bei uns!
Ansprechpartnerin:
Nadine Ranz
Mobil: +49 1517 2083093
E-Mail: nadine.ranz@dahler.com
Ich freue mich auf Sie!
Unsere Objektangaben basieren auf den uns erteilten Informationen. Eine Haftung für Richtigkeit und Vollständigkeit können wir daher nicht übernehmen.
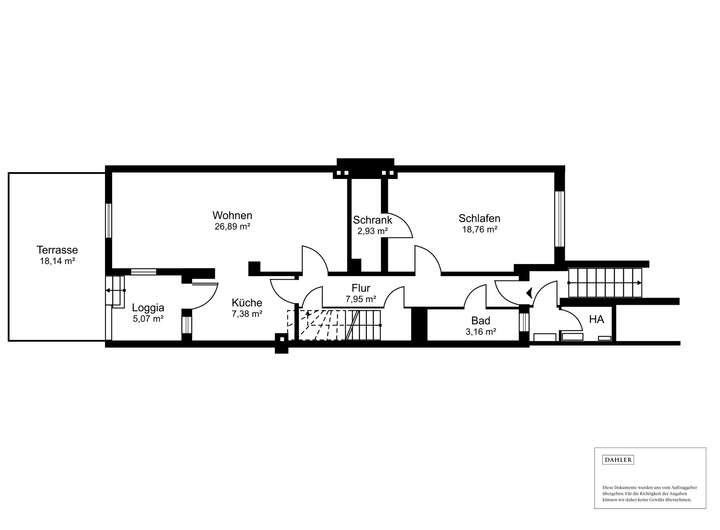
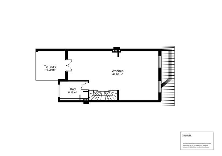
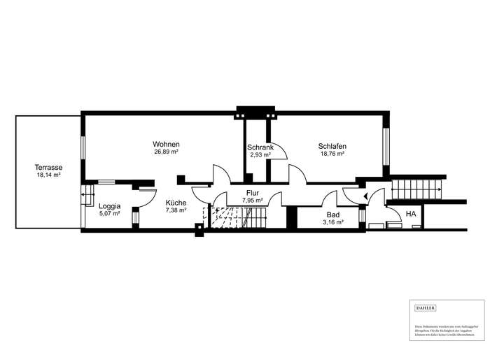
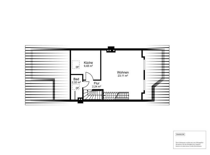
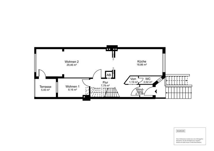
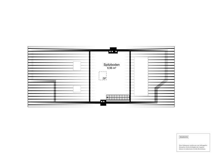
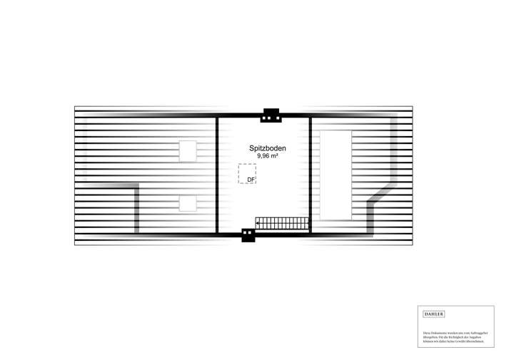
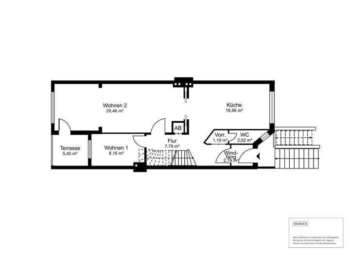
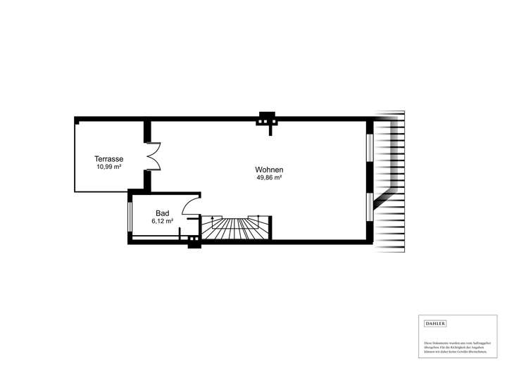
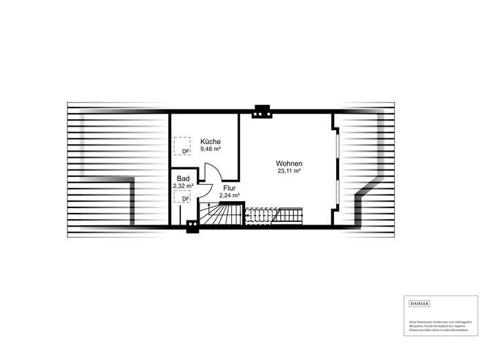
Grundriss
Grundriss Souterrain
>
>
Grundriss Hochparterre
>
>
Grundriss Obergeschoss
>
>
Grundriss Dachgeschoss
>
>
Grundriss Spitzboden
>
>
Adresse
28209 Bremen
Interessante Orte
Preis- und Lageinformationen
Preistrend für Bestandsimmobilien in Schwachhausen