Diese moderne Doppelhaushälfte vereint höchsten Wohnkomfort mit energieeffizienter Technik. Ausgestattet mit einer umweltfreundlichen Erdwärmepumpe, Fußbodenheizung im gesamten Haus, elektrischen Aluminiumrollläden und 3-fach verglasten Fenstern, bietet sie ein rundum durchdachtes und zukunftssicheres Zuhause. Die hochwertige Küche mit Granitboden und -arbeitsplatten sowie Miele-Einbaugeräten erfüllt höchste Ansprüche. Weitere Highlights sind Klimaanlagen im Obergeschoss, ein pflegeleichter Garten mit elektrischer Markise und einem gemauerter Gartenschuppen. Ein begehbarer Dachboden sorgt für zusätzlichen Stauraum oder Ausbaumöglichkeiten. Der Außenbereich punktet mit einer massiven Klinkerfassade und einem Doppel-Carport, mit bis zu vier Stellplätzen. Eine teilmöblierte Übergabe ist auf Wunsch möglich – einziehen und wohlfühlen!
Hinweis: Es werden ausschließlich Anfragen mit einer aktuellen Finanzierungs- zusage/fähigkeit berücksichtigt und bearbeitet. Keine Makleranfragen!
Doppelhaushälfte mit gehobener Innenausstattung & energieffizienten Erdwärmepumpe
Zuckerberg 26,
38179 Schwülper
Auf Karte anzeigen
Finanzierungszertifikat
In nur zwei Minuten zu Ihrem persönlichen Finanzierungszertifkat.
Infos
| Haustyp | Doppelhaushaelfte |
|---|---|
| Etagenzahl | 2 |
| Wohnfläche ca. | 121 m2 |
| Nutzfläche | 42 m2 |
| Grundstücksfläche | 445 m2 |
| Zimmer | 4 |
| Schlafzimmer | 2 |
| Badezimmer | 2 |
| Garage/Stellplatz | Carport |
| Anzahl Garage/Stellplatz | 2 |
Kosten
| Kaufpreis |
459.000 € |
|---|---|
| Preis für Garage/Stellplatz | 459.000 € |
| Provision | Nein |
Finanzierungsrechner:
Kaufpreis:
600.000 €
Eigenkapital:
600.000 €
Monatliche Rate
0 €
Effektiver Jahreszins
0 %
Sollzinsbindung
10 Jahre
Bausubstanz & Energieausweis
| Baujahr | 2011 |
|---|---|
| Letzte Sanierung | 2023 |
| Bauphase | Haus fertig gestellt |
| Objektzustand | Modernisiert |
| Qualität der Austattung | Gehoben |
| Heizungsart | Fußbodenheizung |
| Wesentliche Energieträger | Erdwärme |
Beschreibung des Objekts
Lage
Die Immobilie liegt in Schwülper, OT Rothemühle
Weitere Dokumente
Zuckerberg 26_Expose_FSUGrundriss
Erdgeschoss Zuckerberg26
>
>
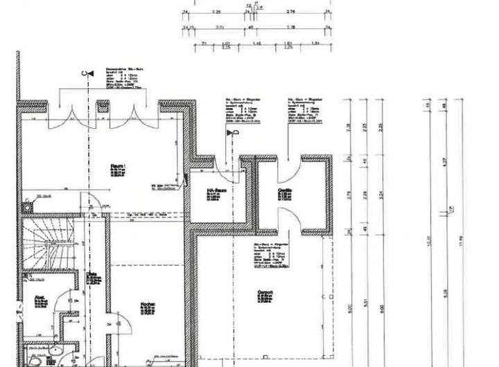
Grundriss_EG
>
>
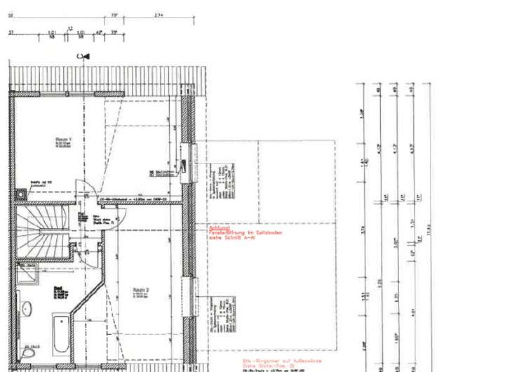
Grundriss_OG
>
>
Adresse
Zuckerberg 26, 38179 Schwülper
Interessante Orte
Preis- und Lageinformationen
Preistrend für Bestandsimmobilien in Schwülper