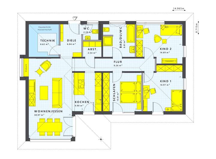
Das Einfamilienhaus Sunshine 112 V2 in Schwielowsee wird ganz nach deinen Wünschen und Vorstellungen projektiert und bietet dir eine Wohnfläche von 110 m² auf einem großzügigen Grundstück von 750 m². Es beeindruckt durch sein modernes Satteldach mit einem Kniestock von 2 Metern, was dir ein maximum an Raumhöhe und ein angenehmes Wohngefühl garantiert. Der durchdachte Design-Dachüberstand verleiht dem Haus nicht nur einen ästhetischen Reiz, sondern auch zusätzlichen Schutz vor Witterungseinflüssen. Der große Erker mit Flachdach bringt viel Licht in den Wohnbereich und schafft eine einladende Atmosphäre für die ganze Familie. Mit drei Schlafzimmern und zwei Badezimmern hast du ausreichend Platz für alle Bedürfnisse. Die Bodenbeläge können ganz nach deinem persönlichen Geschmack ausgewählt werden, sodass du dein individuelles Zuhause bis ins kleinste Detail gestalten kannst.
LivingHaus bietet dir zahlreiche zusätzliche Leistungen, die dein Bauprojekt zu einem stressfreien Erlebnis machen. Die hochwertige Traumküche wird passgenau nach deinem Grundriss konzipiert und bietet nicht nur modernste Technik, sondern auch clevere Stauraumlösungen und ein ansprechendes Design. Damit kannst du direkt nach dem Einzug in dein neues Zuhause loslegen und deine Kochkünste entfalten. Das LivingHaus Bau-Cockpit sorgt dafür, dass du jederzeit den Überblick über dein Bauprojekt behältst. Alle wichtigen Informationen sind digital und einfach zugänglich, was dir eine stressfreie Bauzeit ermöglicht.
Das I-KON System kombiniert nachhaltiges Bauen mit modernster Technik und sorgt dafür, dass dein neues Zuhause energieeffizient und umweltfreundlich ist. Du profitierst von einem Effizienzhaus 55, das nur 55 % der Energie eines Standardhauses benötigt. Mit dem Zuhause-Darlehen kannst du dein Traumhaus zu einem besonders attraktiven Zinssatz finanzieren und dabei von staatlichen Förderprogrammen profitieren. Das Zuhause-Paket bietet dir eine hochwertige Grundausstattung mit modernen Böden, edlen Türen und stilvollen Sanitäranlagen, alles optimal aufeinander abgestimmt und schnell lieferbar. Falls du den Innenausbau selbst in die Hand nehmen möchtest, steht dir das DIY-Ausbau-Coaching zur Verfügung, bei dem dir Experten zeigen, wie du dein Zuhause selbst gestalten kannst. So wird der Weg zu deinem individuellen Traumhaus nicht nur möglich, sondern auch zu einem spannenden Abenteuer!
Individuell und nachhaltig mit LivingHaus - Dein Traumhaus in Schwielowsee
14548 Schwielowsee
Die vollständige Adresse der Immobilie erhalten Sie vom Anbieter.
Auf Karte anzeigen
Die vollständige Adresse der Immobilie erhalten Sie vom Anbieter.
Finanzierungszertifikat
In nur zwei Minuten zu Ihrem persönlichen Finanzierungszertifkat.
Infos
| Haustyp | Bungalow |
|---|---|
| Etagenzahl | 1 |
| Wohnfläche ca. | 110 m2 |
| Nutzfläche | 118 m2 |
| Grundstücksfläche | 750 m2 |
| Zimmer | 4 |
| Schlafzimmer | 3 |
| Badezimmer | 2 |
Kosten
| Kaufpreis |
763.199 € |
|---|
Finanzierungsrechner:
Kaufpreis:
600.000 €
Eigenkapital:
600.000 €
Monatliche Rate
0 €
Effektiver Jahreszins
0 %
Sollzinsbindung
10 Jahre
Bausubstanz & Energieausweis
| Baujahr | 2026 |
|---|---|
| Bauphase | Haus in Planung (projektiert) |
| Qualität der Austattung | Gehoben |
| Heizungsart | Wärmepumpe |
| Energieausweis | liegt vor |
| Energieausweistyp | Bedarfsausweis |
| Energieverbrauchskennwert | 18,0 kWh/(m²*a) |
| Energieeffizienzklasse | A+ |
18,0
kWh/(m²*a)
Energieeffizienzklasse A+
- A+
- A
- B
- C
- D
- E
- F
- G
- H
- 0
- 25
- 50
- 75
- 100
- 125
- 150
- 175
- 200
- 225
- >250
Beschreibung des Objekts
Ausstattung
Dein Fertighaus von LivingHaus kommt mit einer Vielzahl von hochwertigen Ausstattungsmerkmalen, die dein Wohnerlebnis auf ein neues Level heben. Dazu gehören moderne und stilvolle Böden, die du nach deinen Wünschen wählen kannst. Edle Innentüren und hochwertige Sanitäranlagen sorgen für Eleganz in deinem neuen Zuhause. Außerdem erhältst du eine individuell geplante Küche mit modernster Technik und cleveren Stauraumlösungen, die perfekt auf deinen Grundriss abgestimmt ist. Im Zuhause-Paket sind sämtliche Innenausbaumaterialien wie Fliesen für das gesamte Erdgeschoss sowie bodengleiche Duschen mit Echtglasabtrennung enthalten. Du kannst dich auf ein durchdachtes Gesamtkonzept freuen, das dir nicht nur ein schönes Zuhause, sondern auch ein sicheres und behagliches Wohngefühl bietet. Das alles zusammen macht dein Fertighaus zum "Wie ich es will Fertighaus".
Lage
Schwielowsee ist ein idyllischer Ort, der dir eine hohe Lebensqualität und zahlreiche Freizeitmöglichkeiten bietet. In der Umgebung findest du eine Vielzahl von Schulen und Kindergärten, was besonders für Familien von Vorteil ist. Die Grundschule Schwielowsee wird von Eltern gut bewertet und bietet eine freundliche Lernumgebung. Für die Kleinsten gibt es mehrere gut ausgestattete Kindergärten, die fußläufig erreichbar sind.
Die medizinische Versorgung ist dank mehrerer Arztpraxen und Apotheken in der Nähe gesichert. Supermärkte und Geschäfte des täglichen Bedarfs sind ebenfalls schnell zu erreichen, sodass du alles für deinen Alltag bequem einkaufen kannst. Schwielowsee bietet zudem eine Vielzahl an Freizeitmöglichkeiten, sei es am Wasser oder in der Natur. Die malerische Umgebung lädt zum Wandern und Radfahren ein und ist ideal für Naturliebhaber und Sportbegeisterte.
Die Anbindung an den öffentlichen Nahverkehr ist hervorragend, sodass du problemlos nach Potsdam oder Berlin pendeln kannst. Die Autobahn A10 ist in kurzer Zeit erreichbar, was dir eine schnelle Verbindung zu den größeren Städten der Region ermöglicht. Schwielowsee vereint somit die Vorzüge eines ruhigen Lebens in der Natur mit der Nähe zu urbanen Zentren - ideal für Familien, Naturliebhaber und Pendler!
Sonstige Angaben
Das hier angebotene Grundstück ist im obigen Preis eingerechnet, es wird ohne zusätzliche Provision an einen Living Haus-Bauherren bereitgestellt.
Zusätzliche Baunebenkosten müssen noch hinzugerechnet werden, hierüber beraten wir dich gern.
Wir bieten auch interessante Finanzierungsmöglichkeiten inklusive Beantragung aller Fördermittel!
Die Hausabbildungen und die Bilder der Inneneinrichtung zeigen möglicherweise Extras, die nicht im angegebenen Kaufpreis inbegriffen sind.
Gute Beratung ist der Anfang von Allem. Deshalb analysieren wir gemeinsam mit euch eure Vorstellungen, Wünsche und Bedürfnisse und finden so das für Dich und Deine Familie passende Living Haus.
Interessiert? Kontaktiere mich und vereinbare noch heute einen kostenlosen und unverbindlichen Beratungstermin unter +49 0176/21774090
.
Adresse
14548 Schwielowsee
Interessante Orte
Preis- und Lageinformationen
Preistrend für Bestandsimmobilien in Schwielowsee