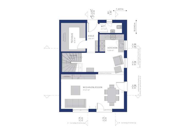
Endlich zu Hause! Dieses Gefühl gibt Ihnen unser Doppelhaus CELEBRATION 139 mit den komfortablen Außenmaßen von rund
7,40 x 11,30 Metern. Im Erdgeschoss lädt es zu offenem Wohnen auf über 40 Quadratmetern ein und bietet Ihrer drei- bis
vierköpfigen Familie oben die nötige Privatsphäre. Und Sie haben die Möglichkeit, diesen Entwurf ganz auf Ihre persönlichen
Bedürfnisse und Vorstellungen zuzuschneiden.
Machen Sie das CELEBRATION 139 zu Ihrem individuellen Traumhaus.
Grundstück für Ihre Doppelhaushälfte sofort verfügbar, jetzt Eigenheim realisieren!
86420 Diedorf
Die vollständige Adresse der Immobilie erhalten Sie vom Anbieter.
Auf Karte anzeigen
Die vollständige Adresse der Immobilie erhalten Sie vom Anbieter.
Finanzierungszertifikat
In nur zwei Minuten zu Ihrem persönlichen Finanzierungszertifkat.
Infos
| Haustyp | Doppelhaushaelfte |
|---|---|
| Etagenzahl | 2 |
| Wohnfläche ca. | 140 m2 |
| Grundstücksfläche | 463 m2 |
| Bezugsfrei ab | sofort |
| Zimmer | 4 |
| Schlafzimmer | 2 |
| Badezimmer | 2 |
Kosten
| Kaufpreis |
766.000 € |
|---|---|
| Provision | Nein |
Finanzierungsrechner:
Kaufpreis:
600.000 €
Eigenkapital:
600.000 €
Monatliche Rate
0 €
Effektiver Jahreszins
0 %
Sollzinsbindung
10 Jahre
Bausubstanz & Energieausweis
| Baujahr | 2026 |
|---|---|
| Bauphase | Haus in Planung (projektiert) |
| Qualität der Austattung | Luxus |
| Energieausweis | liegt zur Besichtigung vor |
Beschreibung des Objekts
Ausstattung
Gemeinsam schaffen wir die Grundlagen für Ihren Hausbau.
Die Grundrisse können individuell geplant werden.
Es stehen die Ausbaustufen ´Schlüsselfertig´, ´Zur Ausstattung fertig´ und ´Ausbauhaus´ zur Verfügung.
* Best- und Festpreisgarantie
* Crefo zertifiziert
* höchste Kundenzufriedenheit
* frei planbare Architektenhäuser
* Bienenpatenschaft zu jedem Haus
* SmartHome Steuerung über I-Pad von Bien-Zenker
* kompetente und gewissenhafte Betreuung während des kompletten Baus
* Premium Versicherungspaket inklusive
* Bauherren-App
* starkes Unternehmen seit 120 Jahren
Erfahren Sie jetzt mehr über tolle Förder- und Finanzierungsmöglichkeiten.
Planen Sie Ihren Traum vom eigenen Haus mit Bien-Zenker. Wir beraten Sie ausführlich und ehrlich.
Lage
Grundstück in Diedorf sofort verfügbar.
Sofortiger Baubeginn möglich.
Für dieses Grundstück gilt ein Bebauungsplan.
2 Vollgeschosse mit Satteldach möglich.
Zzgl. ortsüblichen Baunebenkosten.
Sonstige Angaben
Es werden nur vollständige Kontaktanfragen beantwortet.
Gerne vereinbaren wir einen persönlichen Beratungstermin.
Grundstück nur in Verbindung eines Bien-Zenker Hauses erwerbbar.
Grundriss
6264-383-28-g
>
>
6263-383-27-g
>
>
Adresse
86420 Diedorf
Interessante Orte
Preis- und Lageinformationen
Preistrend für Bestandsimmobilien in Diedorf