Diese imposante Villa überzeugt durch eine großzügige Wohnraumgestaltung, die mit insgesamt zehn Zimmern ein Höchstmaß an Platz und Vielseitigkeit bietet. Im Mittelpunkt steht ein repräsentativer Wohn- und Essbereich von schätzungsweise ca. 80 Quadratmetern, der durch eine offene Architektur besticht und eine beeindruckende Deckenhöhe von 3,3 Metern aufweist. Ein offener Kamin schafft eine gemütliche, wärmende Atmosphäre, während zwei Wintergärten lichtdurchflutete Ruheoasen bilden, in denen man das ganze Jahr über die Umgebung genießen kann. Die großzügigen Panoramafenster eröffnen einen malerischen Blick auf Burgthann und laden dazu ein, das Naturschauspiel direkt vom Innenraum aus zu beobachten.
Bei Bedarf lässt sich eine Einliegerwohnung abtrennen, was vielseitige Nutzungsmöglichkeiten ermöglicht – ideal für Mehrgenerationen-Haushalte, Gäste oder eine separate Vermietung. Die Privatzufahrt bietet ausreichend Platz für bis zu fünf PKW, und eine Doppelgarage sorgt für komfortables, sicheres Parken direkt vor der Tür. Der parkähnliche Garten beeindruckt mit altem Baumbestand, mehreren Springbrunnen und drei überdachten Terrassen sowie einem großzügigen Westbalkon. Hier finden sich perfekte Rückzugsorte zum Entspannen, Picknicken oder geselligen Abenden im Freien – sei es bei Sonnenuntergang oder in klaren Sommernächten.
Technisch zeigt sich das Anwesen zukunftsorientiert: Eine Glasfaseranbindung ermöglicht ultraschnelles Internet, während eine neu installierte fernsteuerbare Zentralheizung für komfortable Wärme sorgt. Hochwertige Fensterkonstruktionen, energiesparende Details und erstklassige Materialien prägen den Innen- wie Außenbereich und spiegeln die hohe Verarbeitungsqualität wider. Die Lage in Burgthann vereint ländliche Ruhe mit einer familienfreundlichen Atmosphäre und bietet dennoch eine gute Anbindung an Nürnbergs städtische Infrastruktur. Man genießt hier die Vorteile des ländlichen Lebens bei gleichzeitig schneller Erreichbarkeit von Einkaufsmöglichkeiten, Schulen und Verkehrsanbindungen.
Exklusive Villa mit Panoramablick zur Burg Burgthann
90559 Burgthann
Die vollständige Adresse der Immobilie erhalten Sie vom Anbieter.
Auf Karte anzeigen
Die vollständige Adresse der Immobilie erhalten Sie vom Anbieter.
Finanzierungszertifikat
In nur zwei Minuten zu Ihrem persönlichen Finanzierungszertifkat.
Infos
| Haustyp | Villa |
|---|---|
| Etagenzahl | 2 |
| Wohnfläche ca. | 386 m2 |
| Grundstücksfläche | 1.819 m2 |
| Zimmer | 10 |
| Schlafzimmer | 3 |
| Badezimmer | 2 |
| Anzahl Garage/Stellplatz | 7 |
Kosten
| Kaufpreis |
1.370.000 € |
|---|---|
| Provision |
3,57 % inkl. MwSt. |
Finanzierungsrechner:
Kaufpreis:
600.000 €
Eigenkapital:
600.000 €
Monatliche Rate
0 €
Effektiver Jahreszins
0 %
Sollzinsbindung
10 Jahre
Bausubstanz & Energieausweis
| Baujahr | 1970 |
|---|---|
| Objektzustand | Modernisiert |
| Heizungsart | Öl-Heizung |
| Wesentliche Energieträger | Öl |
| Energieausweis | liegt vor |
| Energieausweistyp | Bedarfsausweis |
| Energieverbrauchskennwert | 163,0 kWh/(m²*a) |
| Energieeffizienzklasse | F |
163,0
kWh/(m²*a)
Energieeffizienzklasse F
- A+
- A
- B
- C
- D
- E
- F
- G
- H
- 0
- 25
- 50
- 75
- 100
- 125
- 150
- 175
- 200
- 225
- >250
Beschreibung des Objekts
Ausstattung
Großzügige Wohnraumgestaltung mit insgesamt 10 Zimmern
Repäsentativer Wohn- und Essbereich ca. 80 m², offene Architektur, Deckenhöhe 3,3 m
- Offener Kamin und zwei Wintergärten
- Panoramafenster mit Blick auf Burgthann
- Bei Bedarf abtrennbare Einliegerwohnung
- Privatzufahrt mit Parkfläche für 5 PKW und Doppelgarage
- Parkähnlicher Garten mit altem Baumbestand und mehreren Springbrunnen
- Drei überdachte Terrassen, großer Westbalkon
- Glasfaseranbindung für ultraschnelles Internet
- Neue fernsteuerbare Zentralheizung
- Hochwertige Fensterkonstruktionen und energiesparende Details
- Edle Materialien und hochwertige Verarbeitung im Innen- und Außenbereich
Lage
Die Villa befindet sich in Burgthann, einer ruhigen, familienfreundlichen Gemeinde nahe Nürnberg. Die Lage kombiniert ländliche Ruhe mit einer hervorragenden Anbindung an städtische Nah- und Einkaufszentren.
Gute Verkehrsanbindung: Schnell erreichbar über die nahegelegenen Bundesstraßen B14/B. Direkte Anbindung an den öffentlichen Nahverkehr in Burgthann und umliegende Orte. Nürnberg ist in ca. 25 Minuten erreichbar.
Einkaufsmöglichkeiten: Supermärkte, Bäcker, Apotheken und Wochenmärkte im Ortskern von Burgthann sowie im nahen Schnaittach bzw. Feucht.
Bildung und Freizeit: Grund- und weiterführende Schulen in Burgthann bzw. umliegenden Gemeinden; vielfältige Freizeitmöglichkeiten wie Rad- und Wanderwege, Kultur- und Naturreservate, Golfplatz in der Region.
Naherholung: Nähe zu fränkischer Landschaft, Wald- und Felderflächen; idyllische Ausblicke in Richtung Burg Burgthann.
Freier Fern- und Burgblick von der Villa, unverbautes Panorama in Hanglage.
Infrastrukturentwicklung: ruhiges, gewachsenes Wohnumfeld mit Potenzial für weitere hochwertige Bebauung in moderatem Entwicklungstempo.
Burgblicklage mit ruhiger Wohnqualität und ausgeprägtem Pendel- sowie Erholungswert.
Geringe Lärmexposition durch ländliche Umfeldstruktur, dennoch kurze Wege zu wichtigen Einrichtungen.
Gute Infrastruktur, kombiniert mit einem naturnahen Ambiente und einer ausgezeichneten Lebensqualität.
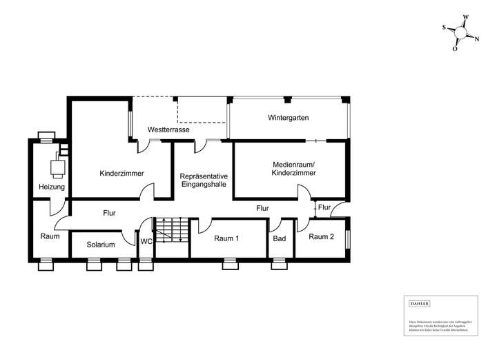
Grundriss
Grundriss OG
>
>
Grundriss EG
>
>
Adresse
90559 Burgthann
Interessante Orte
Preis- und Lageinformationen
Preistrend für Bestandsimmobilien in Burgthann